← Exmoor National Park Authority
6/10/25/005
Exmoor National Park Authority
Status
Decision Made
House extension
Received
24 Mar 2025
New homes
0
Summary
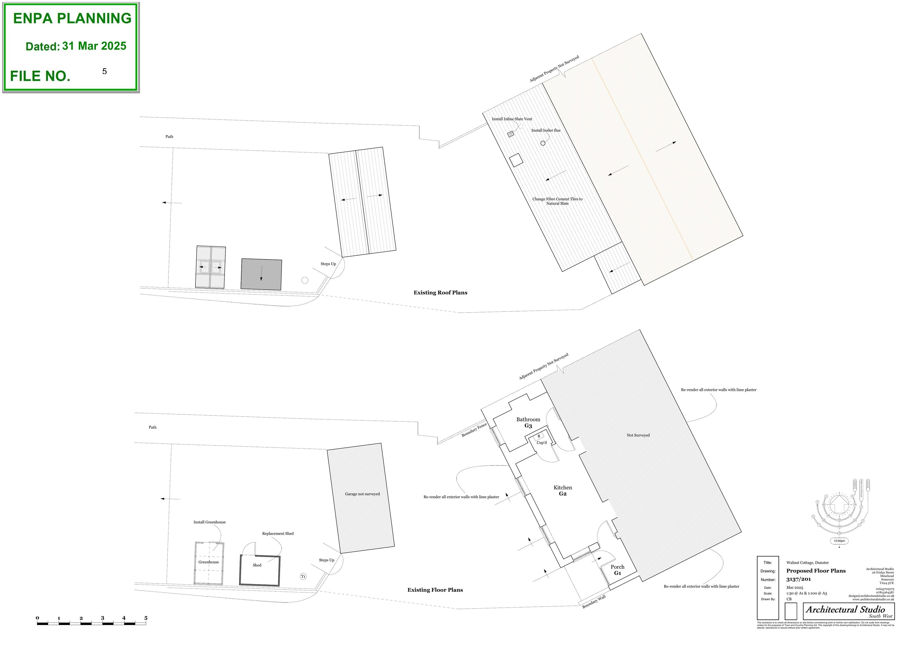
Erect greenhouse and shed, install fence; replace rear-extension slate, replace render and add boiler flue.
Full proposal
Proposed erection of greenhouse, shed, and fence along with replacement natural slate to rear extension, replacement render and installation of boiler flue and slate vent.
Documents
Have your say
Your comment matters. Councils must consider every representation that raises material planning considerations.