← Exmoor National Park Authority
6/10/25/009
Exmoor National Park Authority
Status
Decision Made
House extension
Received
24 Mar 2025
New homes
0
Full proposal
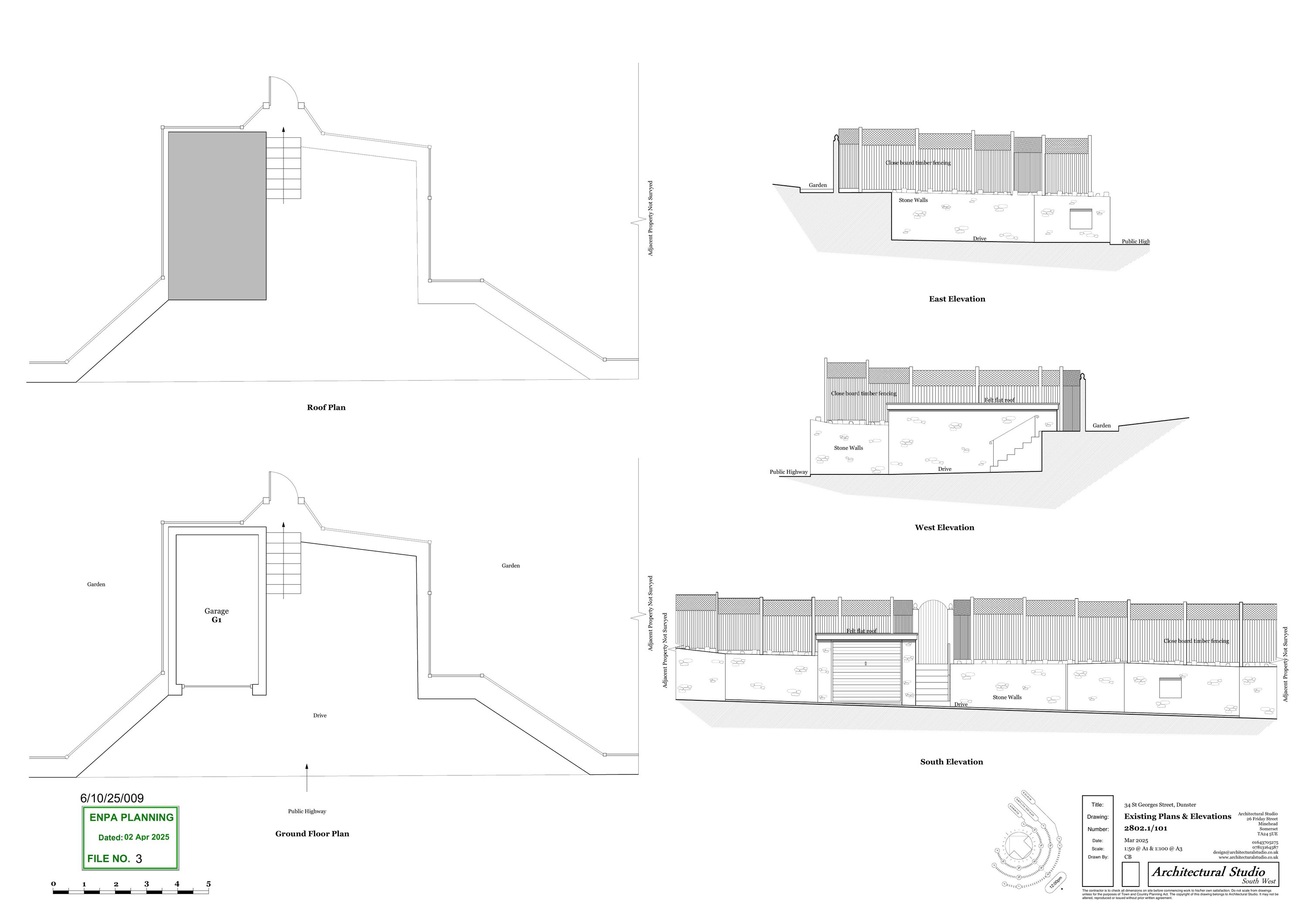
Proposed erection of a dual pitch natural slate roof to detached garage replace flat roof, together with, erection of a stone boundary wall to the street frontage and extension of the garden area over the hard standing area (amended description) (as amended).
Documents
Have your say
Your comment matters. Councils must consider every representation that raises material planning considerations.