← Exmoor National Park Authority
6/20/25/002
Exmoor National Park Authority
Status
Decision Made
House extension
Received
30 Apr 2025
New homes
0
Full proposal
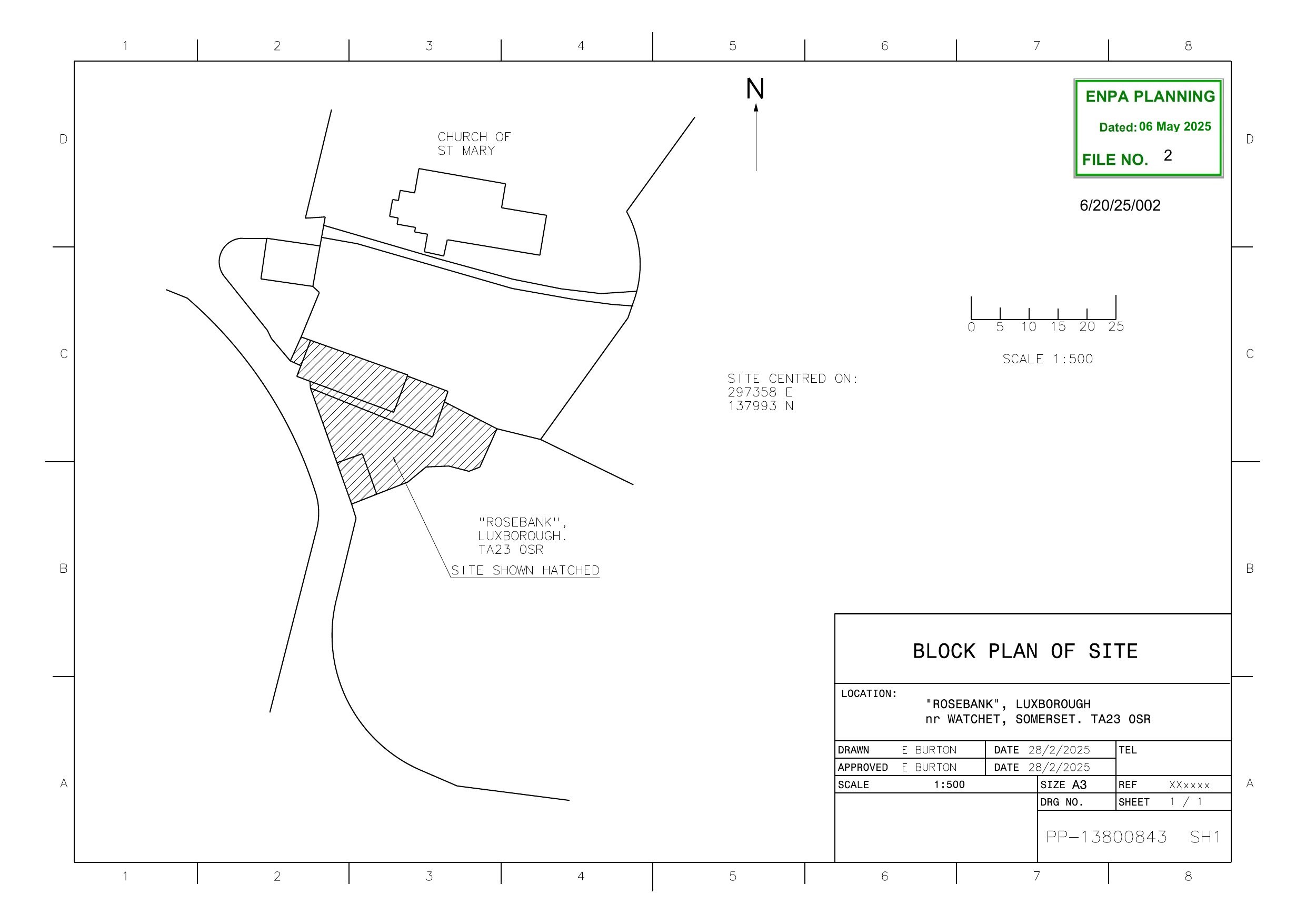
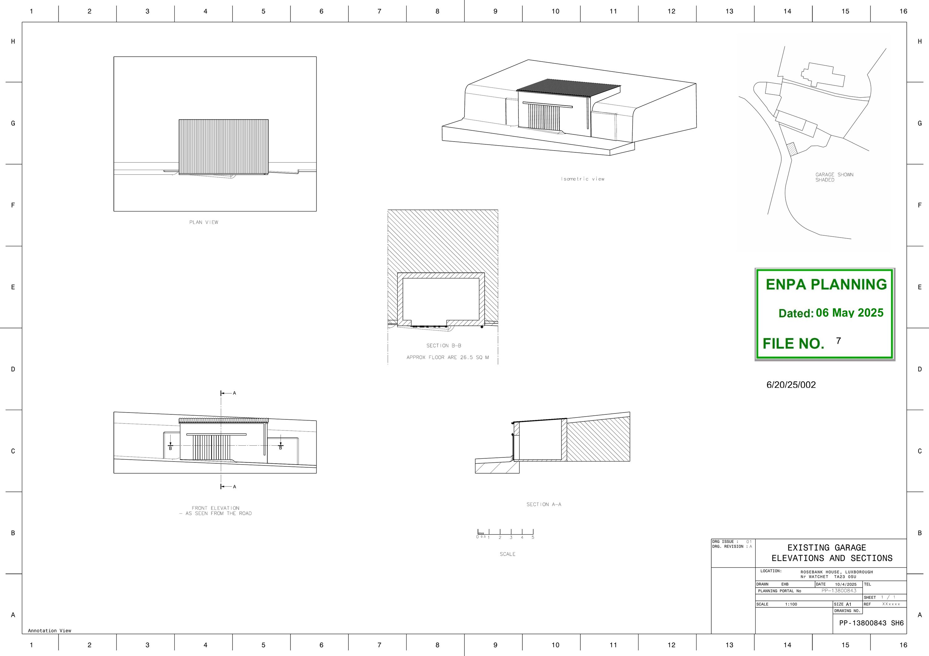
Proposed demolition of existing, single storey lean-to kitchen extension and erection of two storey pitched-roof extension with kitchen on ground floor and en-suite bathroom on first floor. Subterranean extension to existing garage to provide parking for 2-3 cars.
Documents
Have your say
Your comment matters. Councils must consider every representation that raises material planning considerations.