← Exmoor National Park Authority

Status

Decision Made New housing
Received
04 Jun 2025
New homes
1

Summary

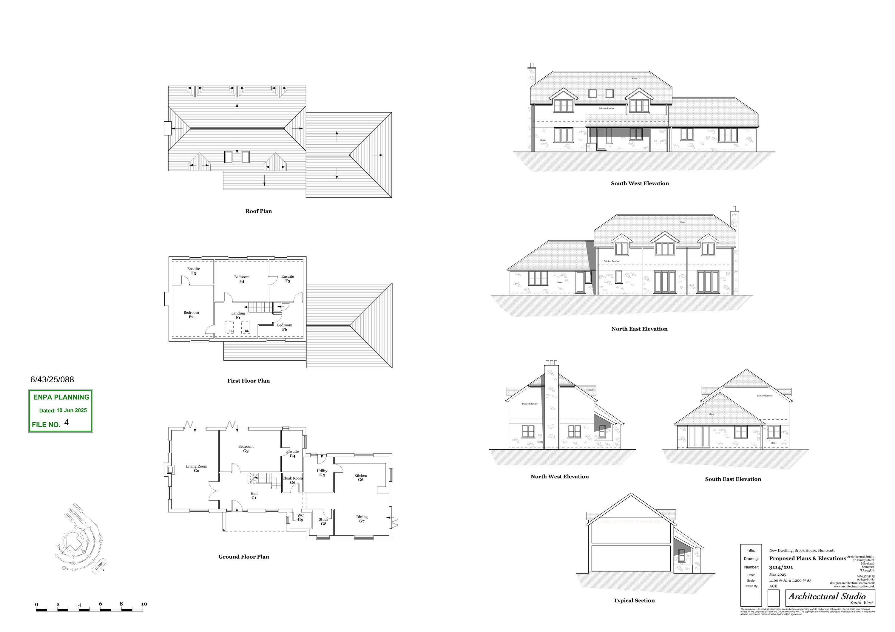
Erection of one four-bedroom dwelling.

Full proposal

Proposed erection of 1no 4 bed dwelling.

Documents

6.43.25.008.0 Application Form.pdf
Documents
Not yet archived · Original link
6.43.25.008.0 Decision Notice.pdf
Decision Notice
Not yet archived · Original link
6.43.25.008.0 Delegated Report.pdf
Officer Report
Not yet archived · Original link
6.43.25.008.0 Design and Access Statement.pdf
Documents
Not yet archived · Original link
6.43.25.008.0 Exmoor Biodiversity Trigger.pdf
Documents
Not yet archived · Original link
6.43.25.008.0 Flood Map.pdf
Documents
Not yet archived · Original link
6.43.25.008.0 Flood Risk Assessment.pdf
Documents
Not yet archived · Original link
6.43.25.008.0 Screen Assessment.pdf
Documents
Not yet archived · Original link
6.43.25.008.0 Visibility Photos.pdf
Documents
Not yet archived · Original link
6.43.25.008.0 Wildlife Statement and Photos.pdf
Documents
Not yet archived · Original link
6.43.25.008.3 Existing Elevations.pdf
Plans
Not yet archived · Original link
6.43.25.008.5 Existing Floor Plans.pdf
Plans
Not yet archived · Original link
Amended
Plans
Not yet archived · Original link
Superseded
Plans
Not yet archived · Original link

Have your say

Your comment matters. Councils must consider every representation that raises material planning considerations.

Write a comment