← Flintshire County Council

Status

Notice of Decision Issued Change of use
Received
20 Mar 2025
New homes
1

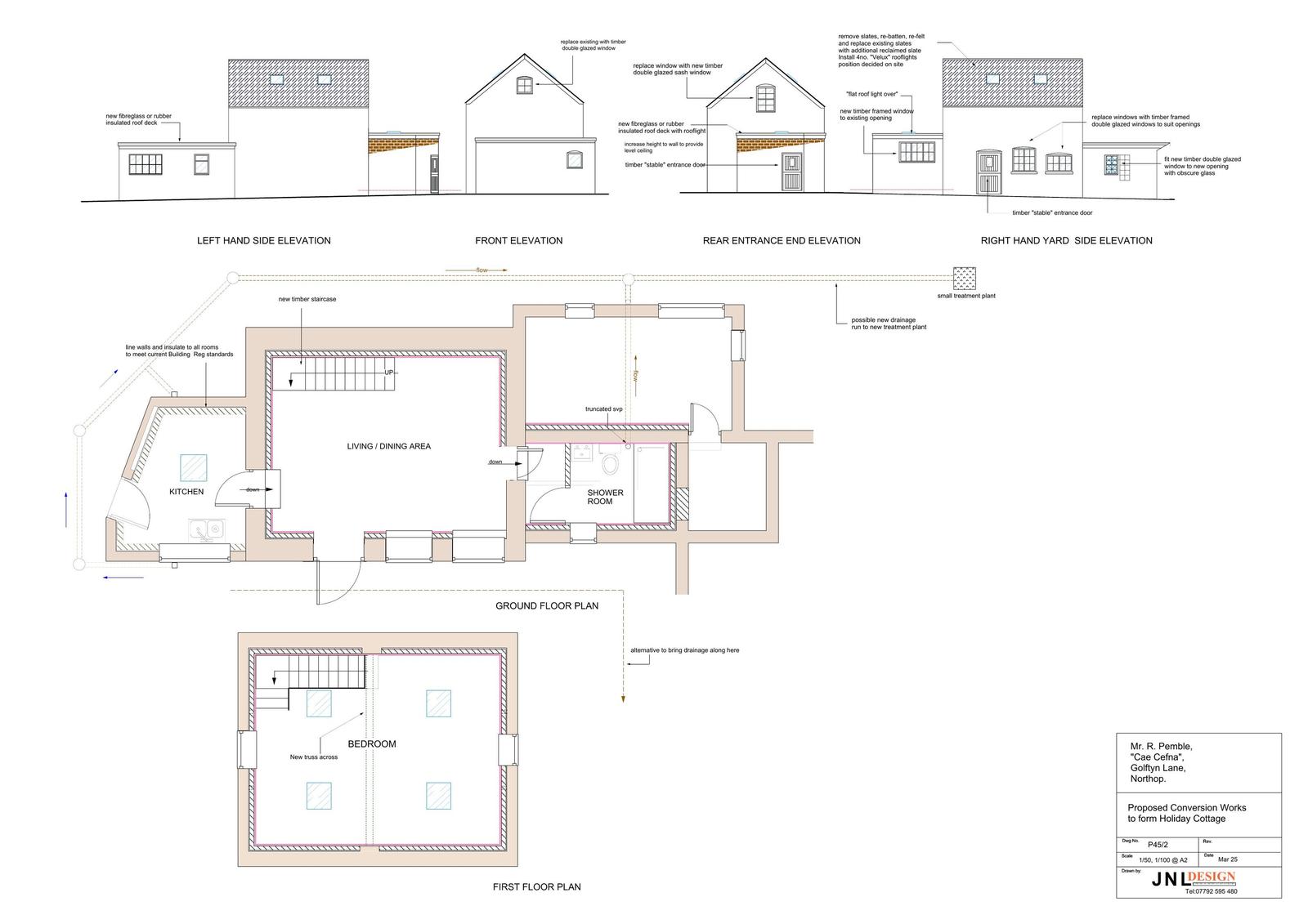
Full proposal

Conversion and change of use of farm buildings into 1 holiday cottage/flat

Have your say

Your comment matters. Councils must consider every representation that raises material planning considerations.

Write a comment