FUL/000062/25
Flintshire County Council
Status
Notice of Decision Issued
Industrial
Received
21 Jan 2025
New homes
0
Summary
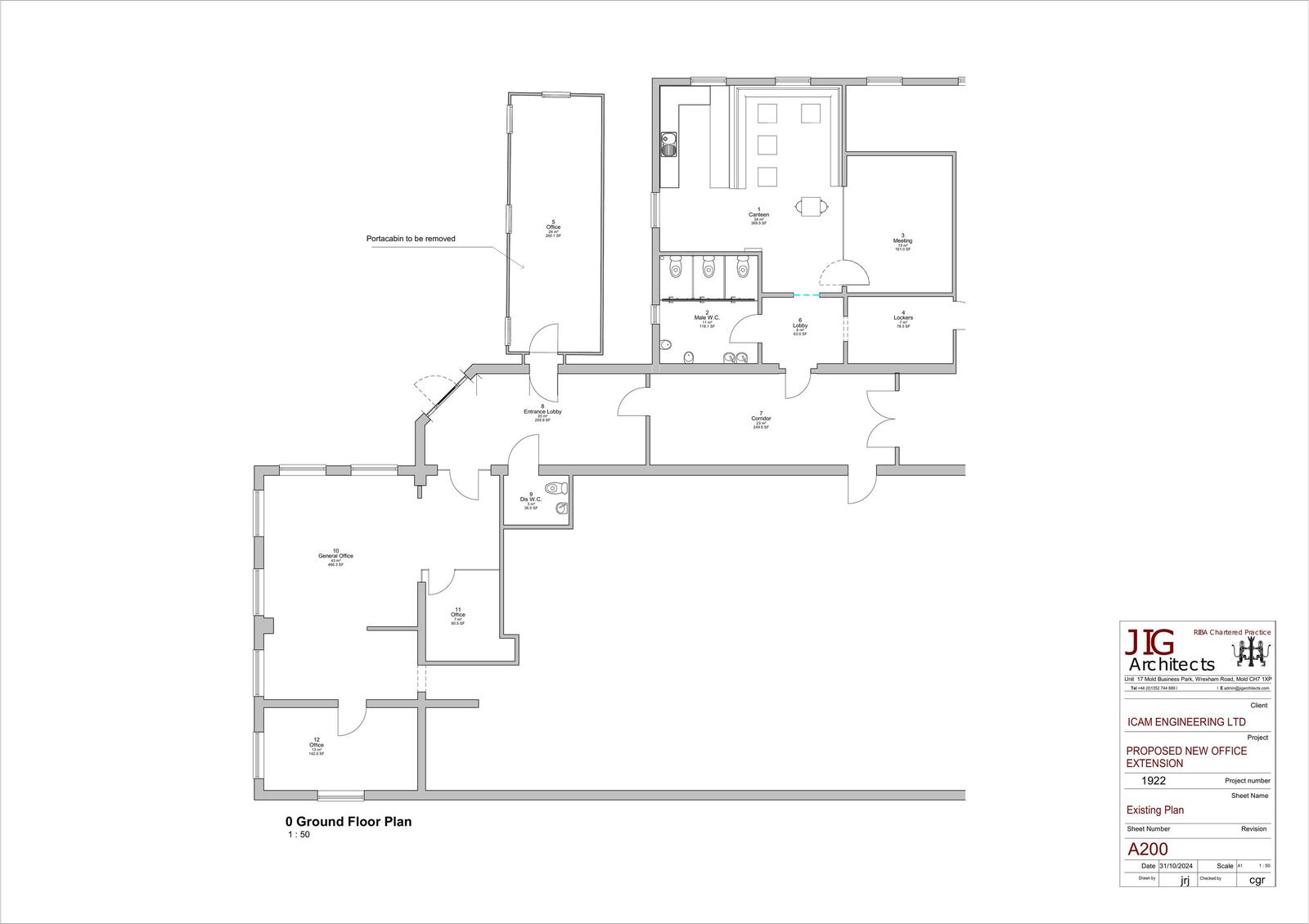
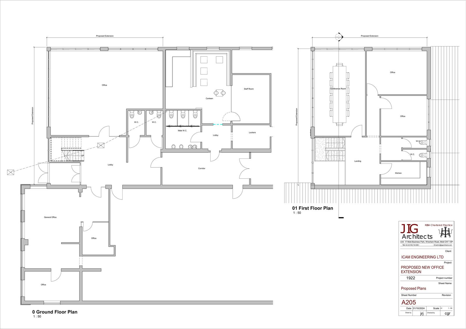
Remove portacabin and construct two-storey factory extension adding entrance, offices and meeting space.
Full proposal
Proposed removal of an existing portacabin office and the construction of a two storey extension to the existing factory to provide a new entrance, additonal office and meeting space, with some minor internal remodelling.
Documents
Additional Information
Archived
· Original link
Consultation Response
Archived
· Original link
Consultation Response
Archived
· Original link
Have your say
Your comment matters. Councils must consider every representation that raises material planning considerations.