← Flintshire County Council

Status

Under Consideration House extension
Received
04 Feb 2026
New homes
0

Full proposal

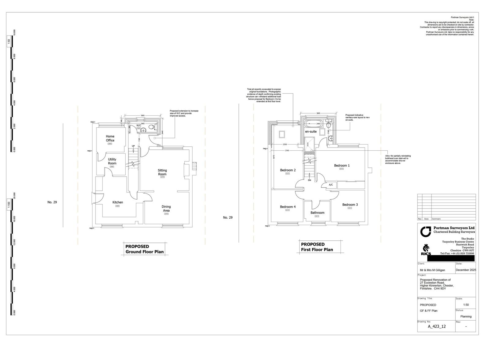
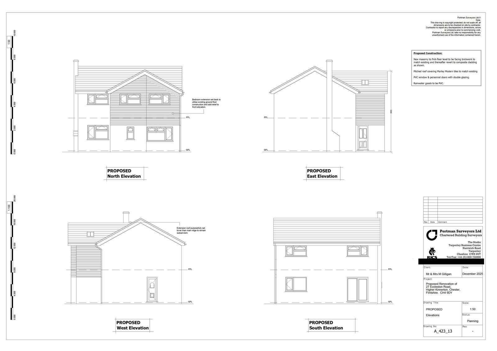
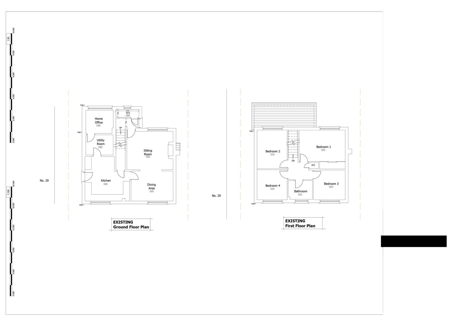
Proposed front extension to residential dwelling to include internal remodelling.

Have your say

Your comment matters. Councils must consider every representation that raises material planning considerations.

Write a comment