← Flintshire County Council

Status

Consultation Period Open House extension
Received
Last month
New homes
0

Full proposal

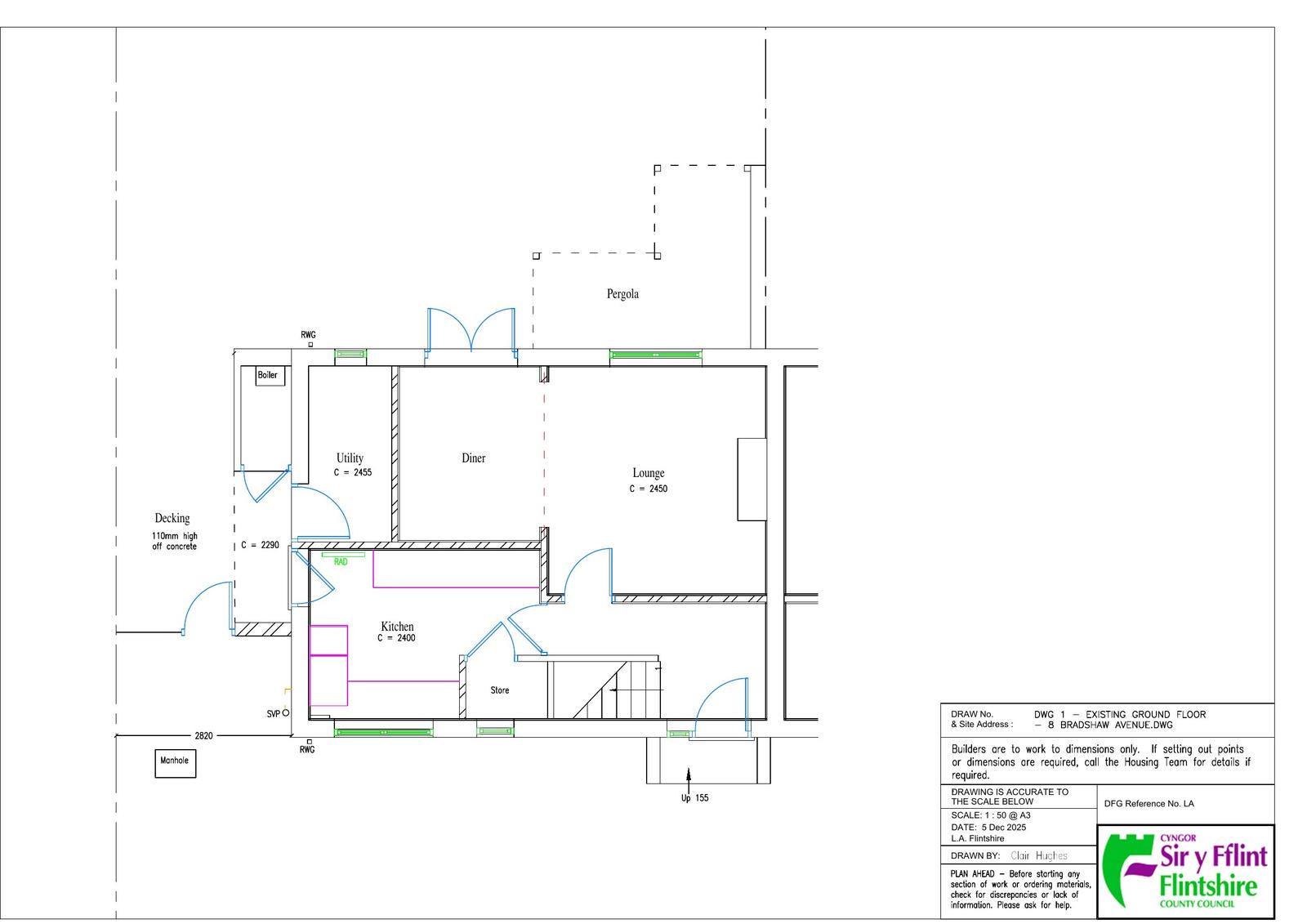
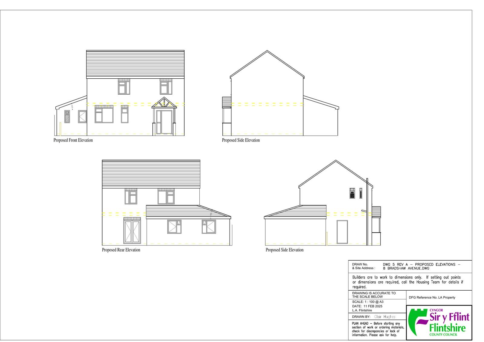
Demolition of single storey side - Proposed new single storey rear & side extension - disabled adaption.

Have your say

Your comment matters. Councils must consider every representation that raises material planning considerations.

Write a comment