← Flintshire County Council

Status

Notice of Decision Issued Demolition
Received
07 Apr 2025
New homes
0

Full proposal

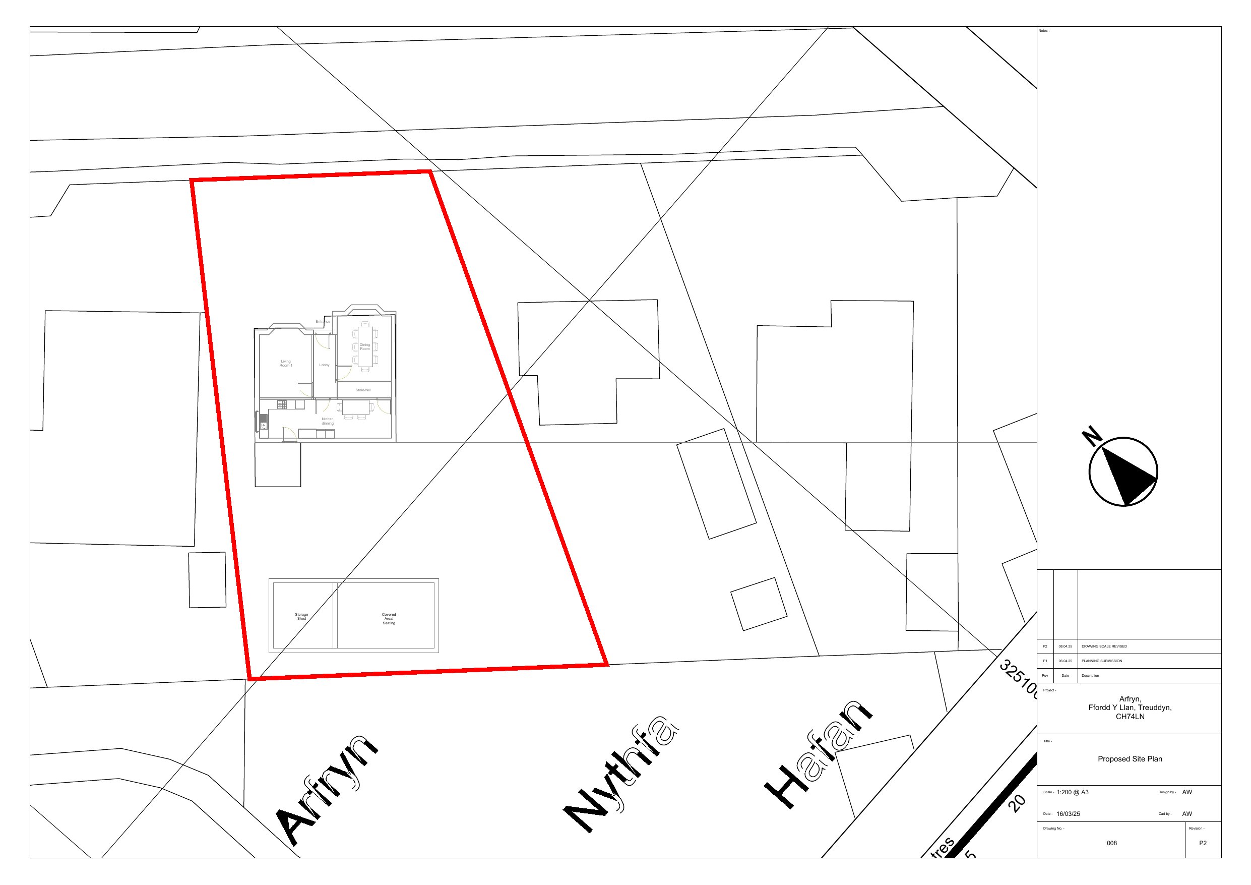
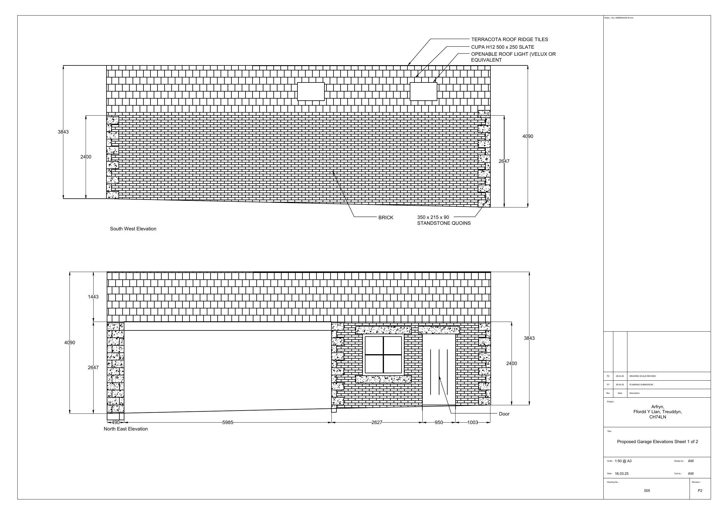
Demolition of existing garage which is in poor condition. Construction of new garage and covered area.

Have your say

Your comment matters. Councils must consider every representation that raises material planning considerations.

Write a comment