← Flintshire County Council

Status

Notice of Decision Issued House extension
Received
23 Apr 2025
New homes
0

Full proposal

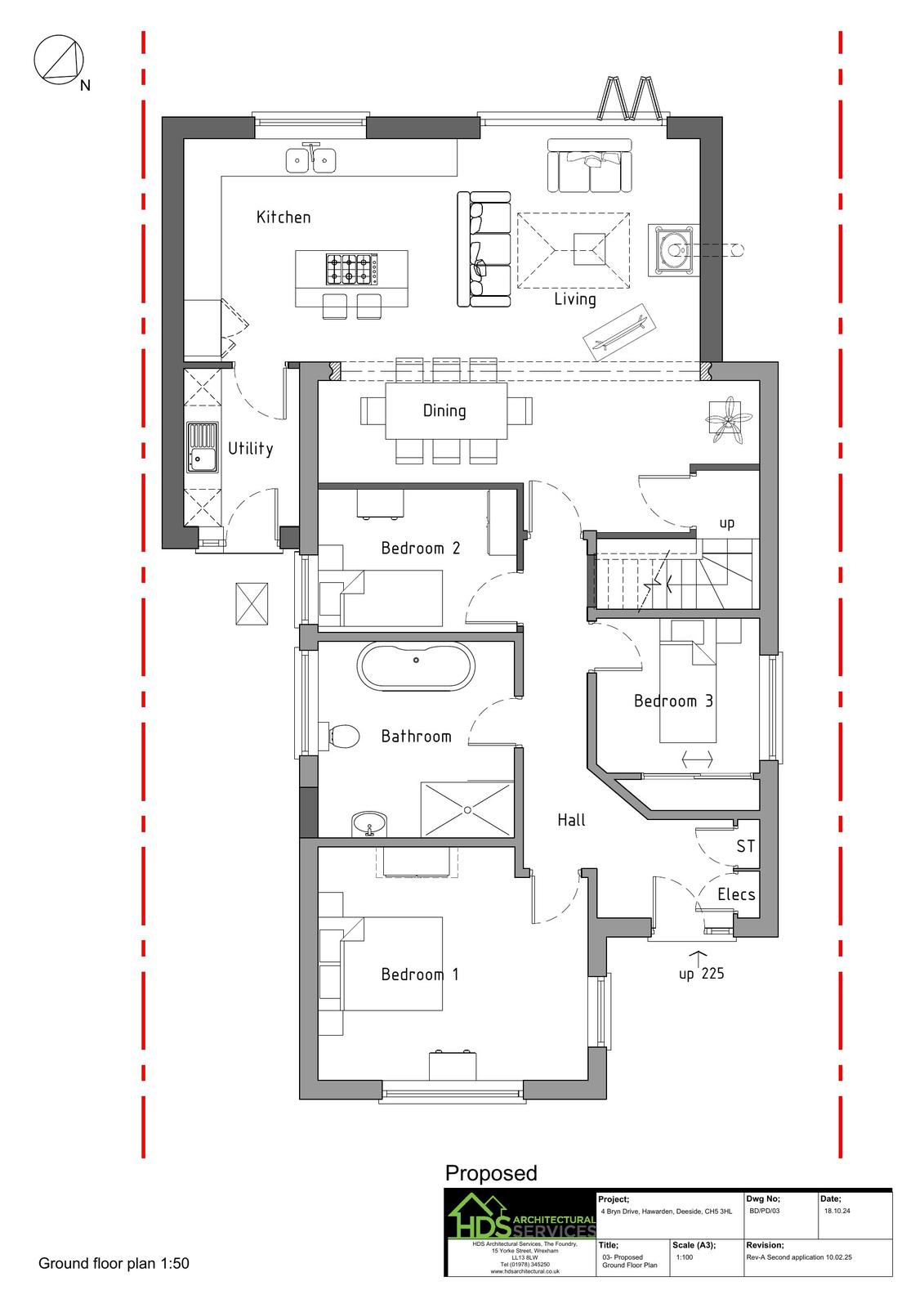
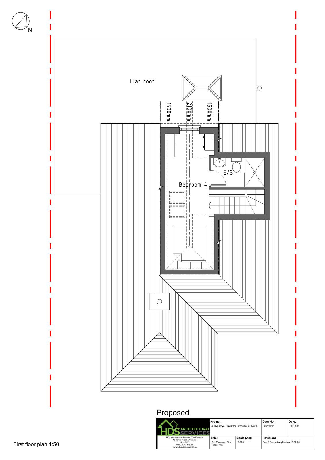
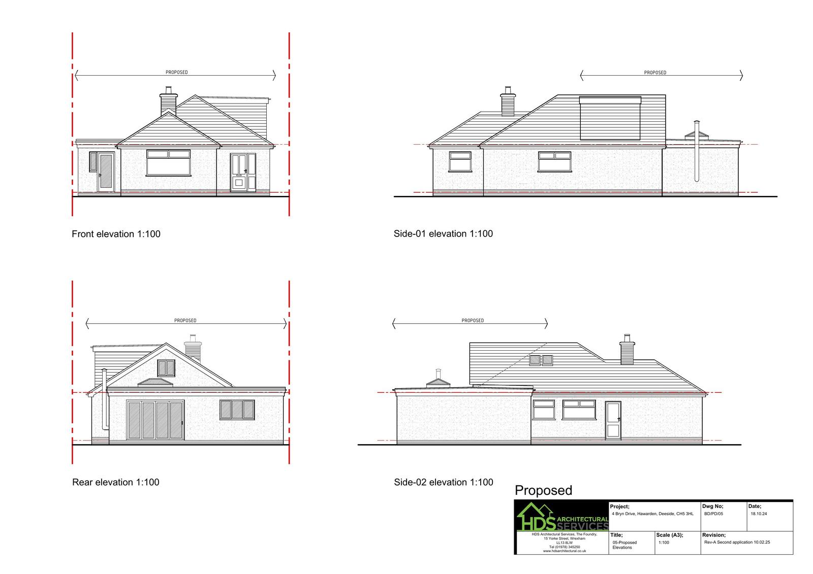
Proposed Single Storey Rear Extension and Loft Conversion

Have your say

Your comment matters. Councils must consider every representation that raises material planning considerations.

Write a comment