← Flintshire County Council

Status

Notice of Decision Issued House extension
Received
09 May 2025
New homes
0

Summary

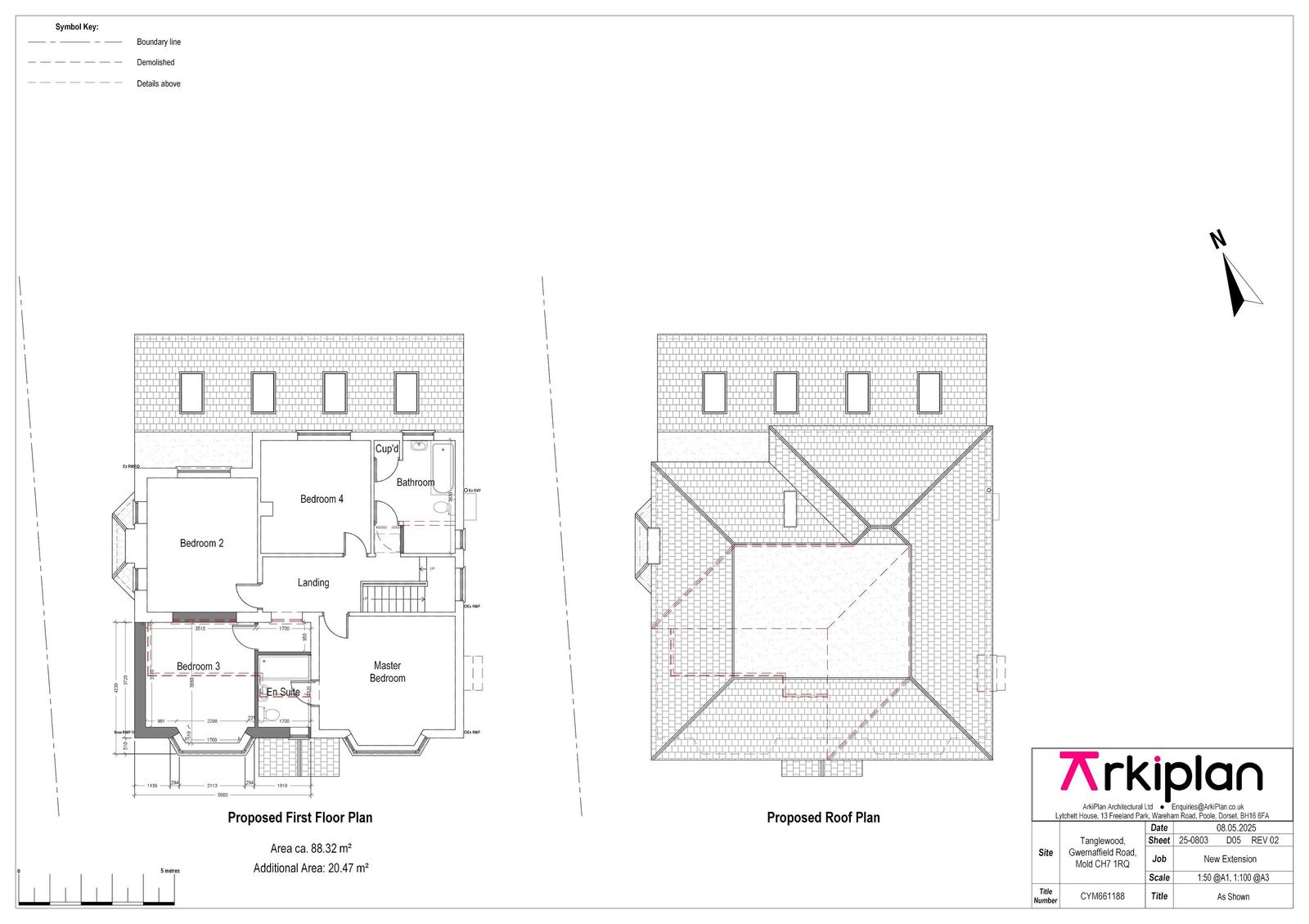
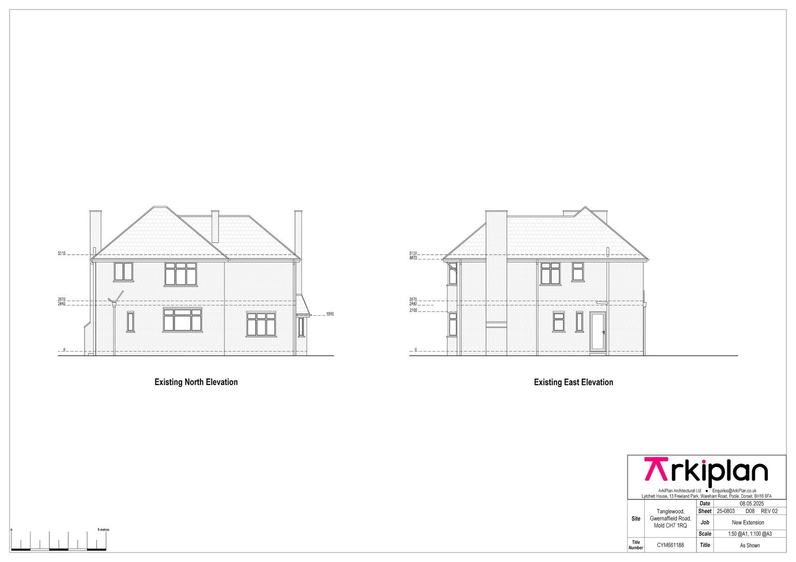
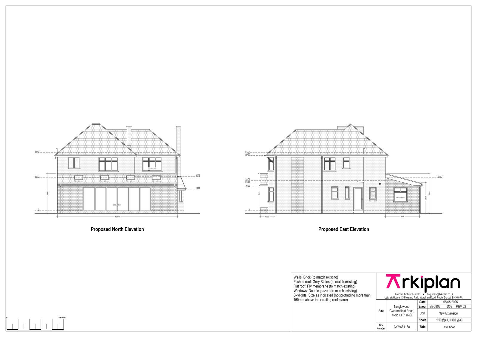
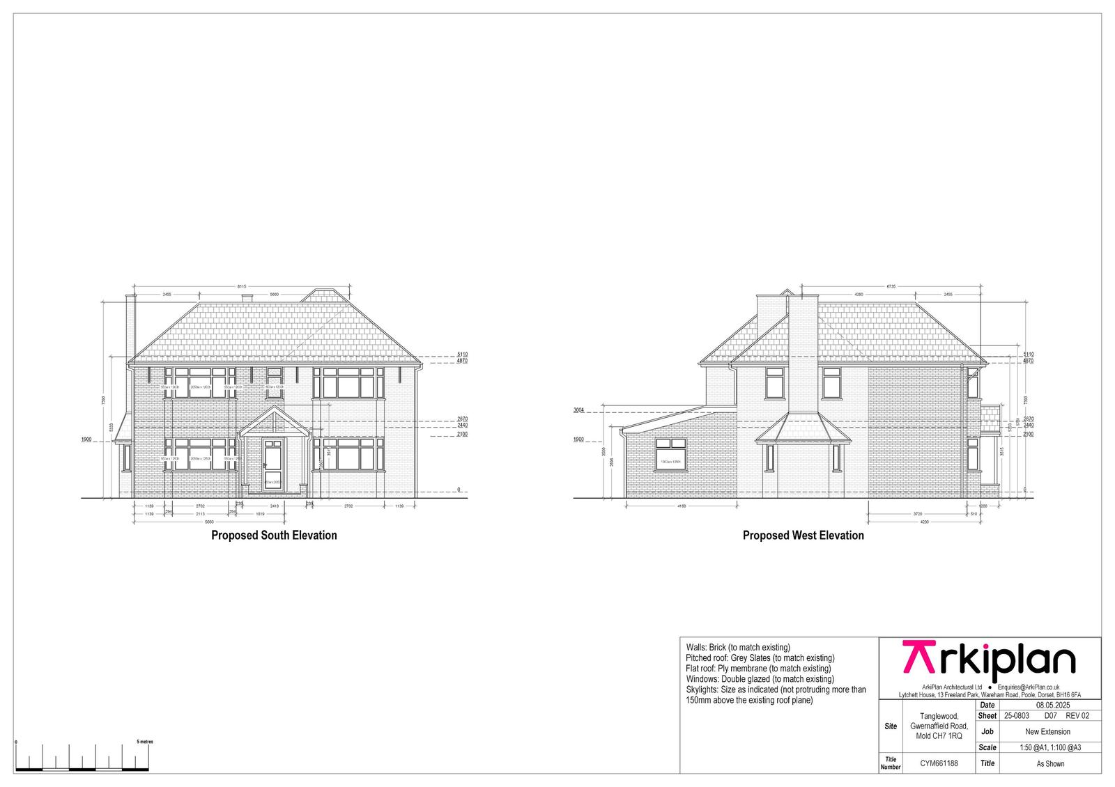
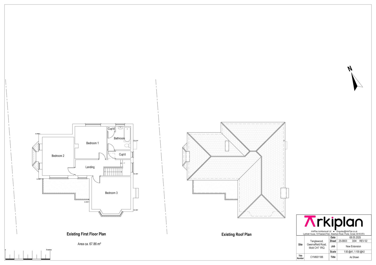
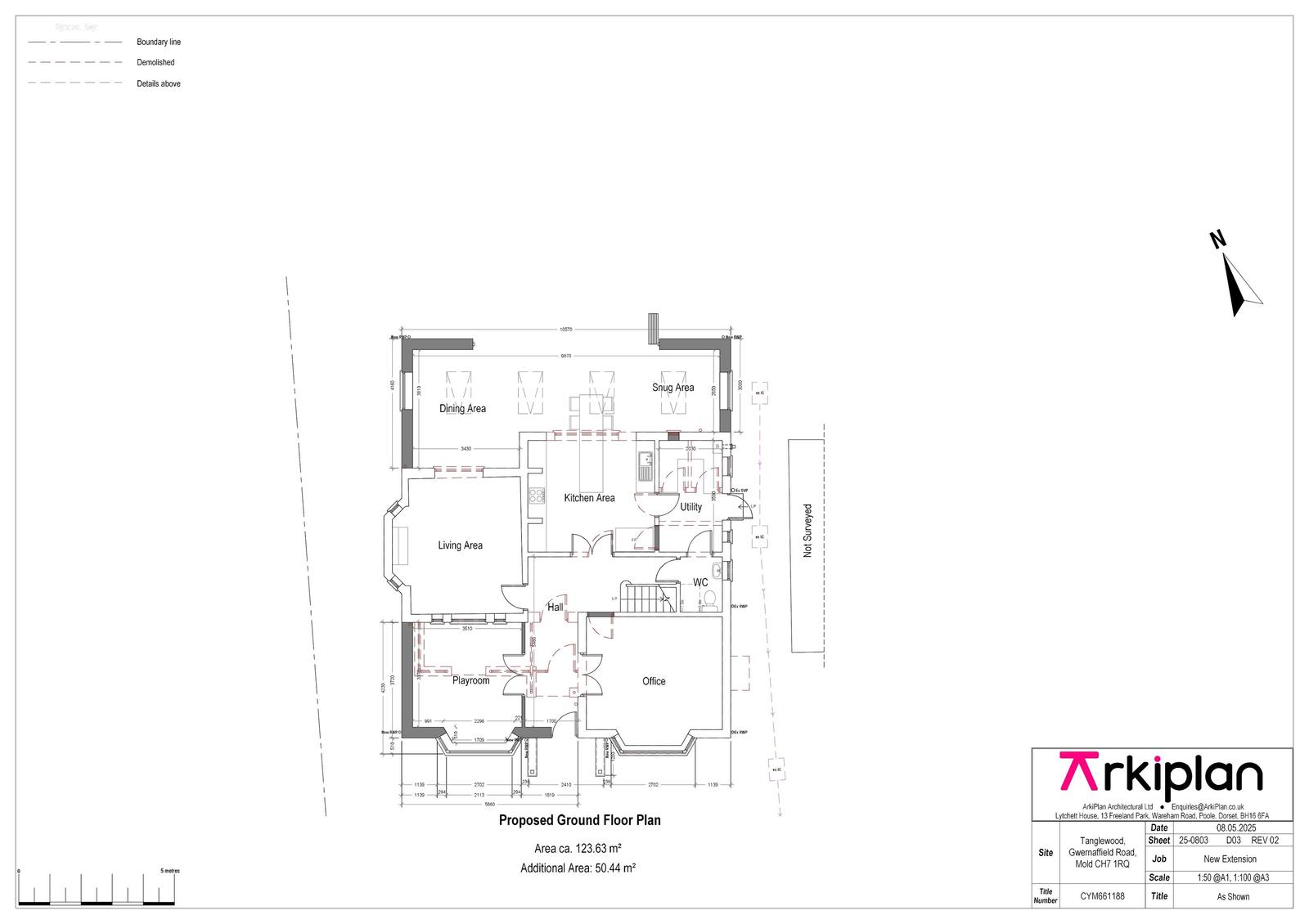
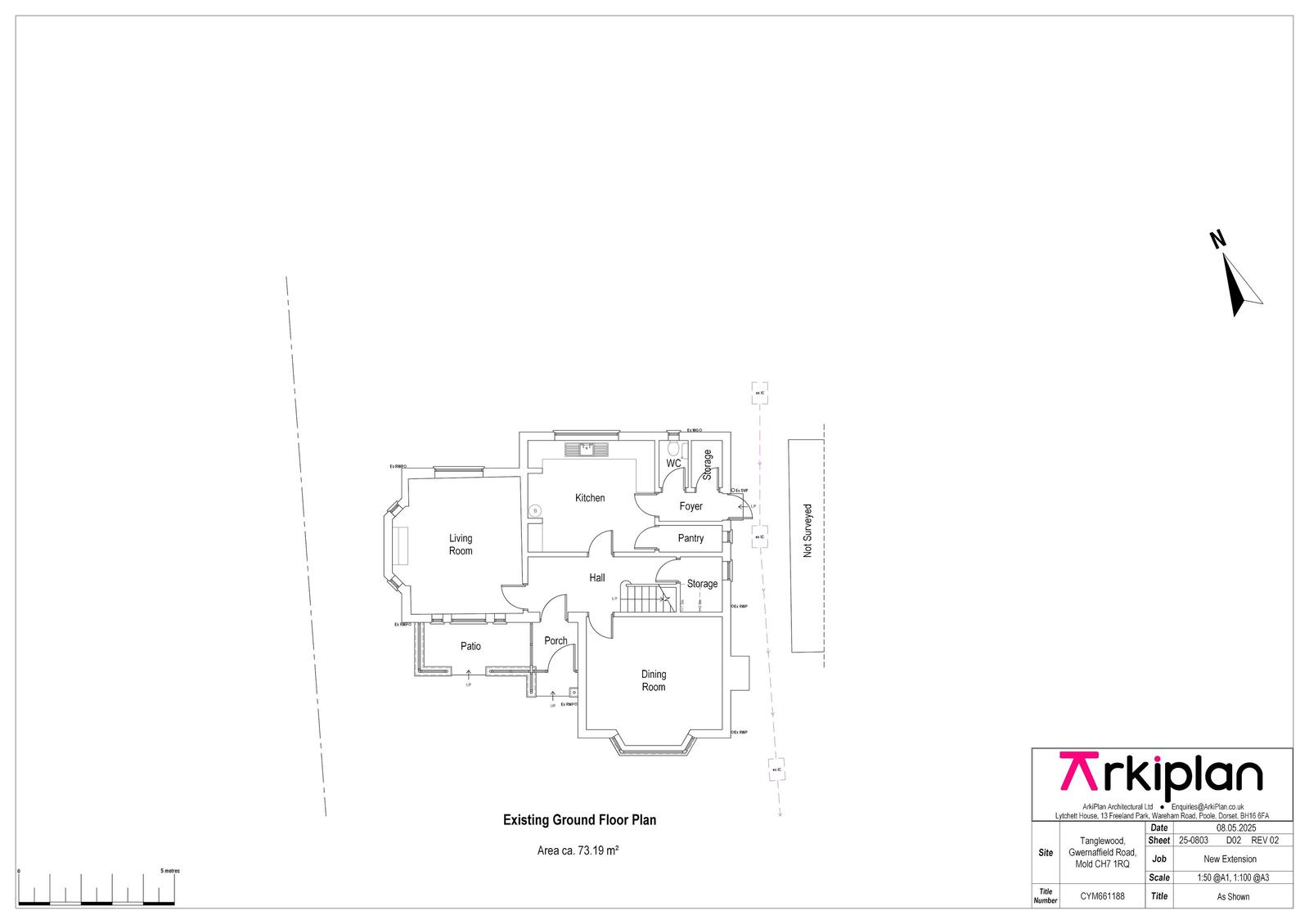
Two-storey front extension with porch and single-storey rear extension with rooflights to dwelling.

Full proposal

Erection of two storey extension to front of dwelling with new porch: Erection of single storey extension with rooflights to rear.

Have your say

Your comment matters. Councils must consider every representation that raises material planning considerations.

Write a comment