← Flintshire County Council

Status

Notice of Decision Issued Demolition
Received
14 May 2025
New homes
0

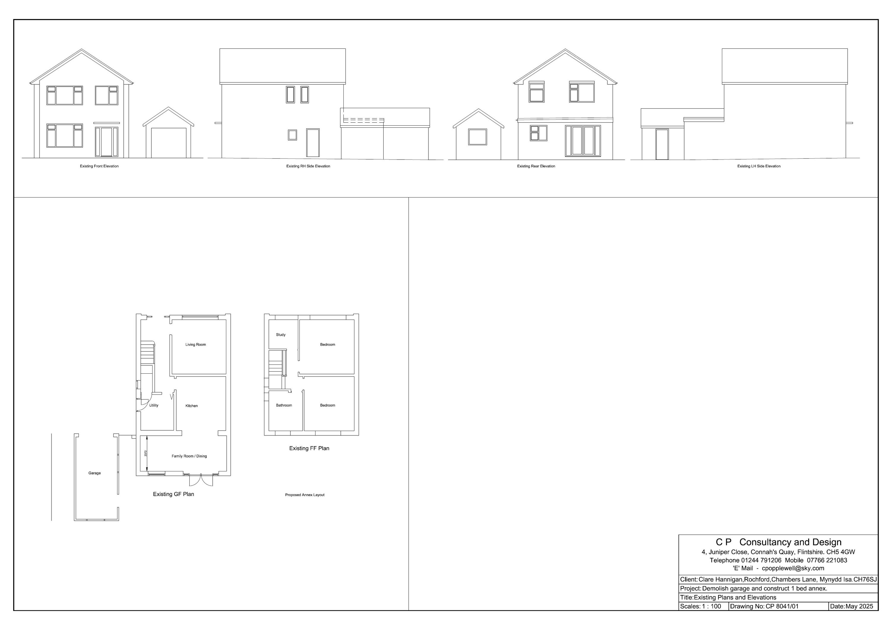
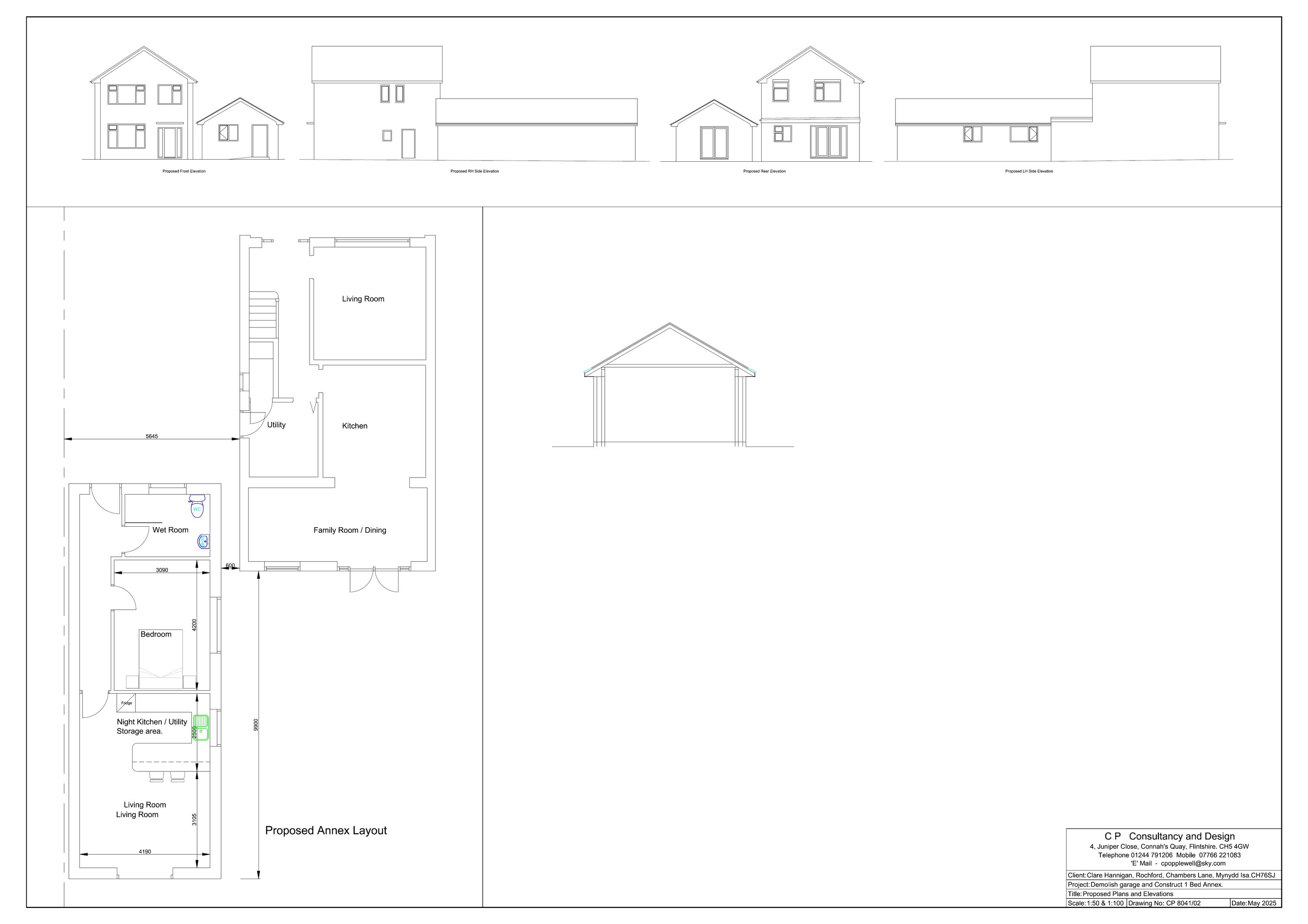
Full proposal

Demolition of garage and construction of Annex.

Have your say

Your comment matters. Councils must consider every representation that raises material planning considerations.

Write a comment