← Flintshire County Council

Status

Notice of Decision Issued House extension
Received
20 May 2025
New homes
0

Summary

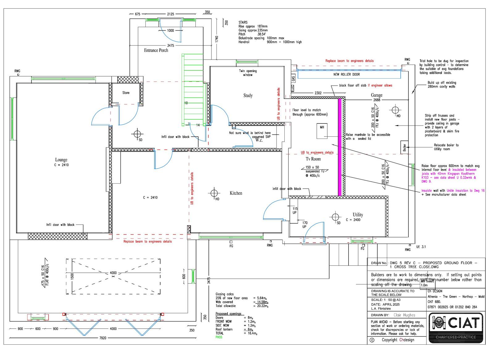
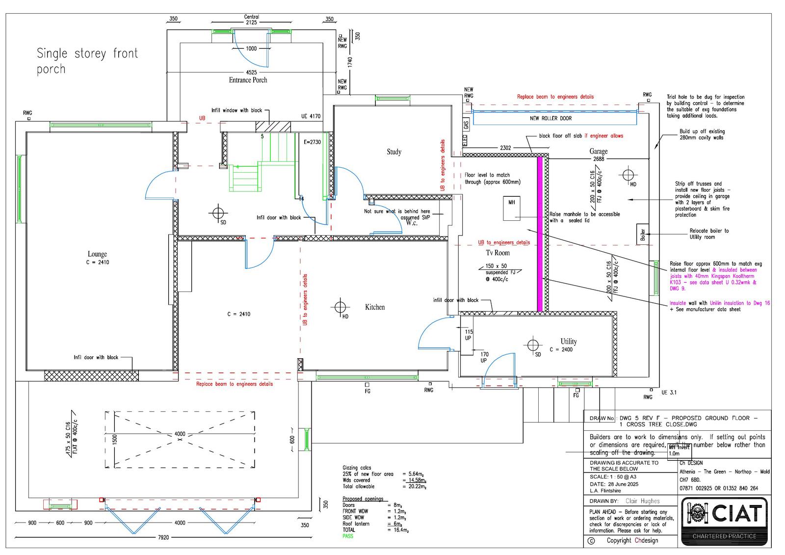
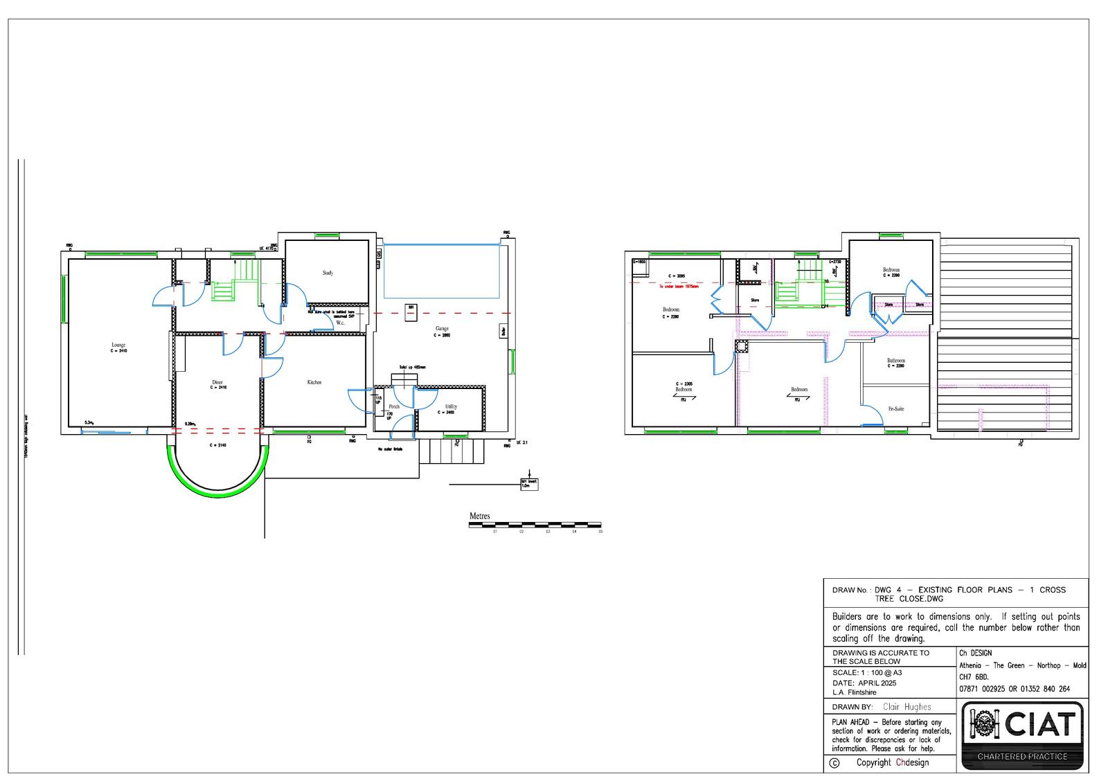
Demolish rear extension and build new rear/front extensions, dormer roof, garage works and widened drive.

Full proposal

Demolition of rear single storey extension - Proposed new single storey rear extension, front entrance extension, pitched roof over the flat roof dormer, 1st floor over garage, part garage conversion & widened drive. Permeable surface.

Documents

Application Form
Archived · Original link
Decision
Archived · Original link
Decision
Archived · Original link
Photograph
Archived · Original link

Have your say

Your comment matters. Councils must consider every representation that raises material planning considerations.

Write a comment