← Flintshire County Council

Status

Notice of Decision Issued Change of use
Received
05 Aug 2025
New homes
2

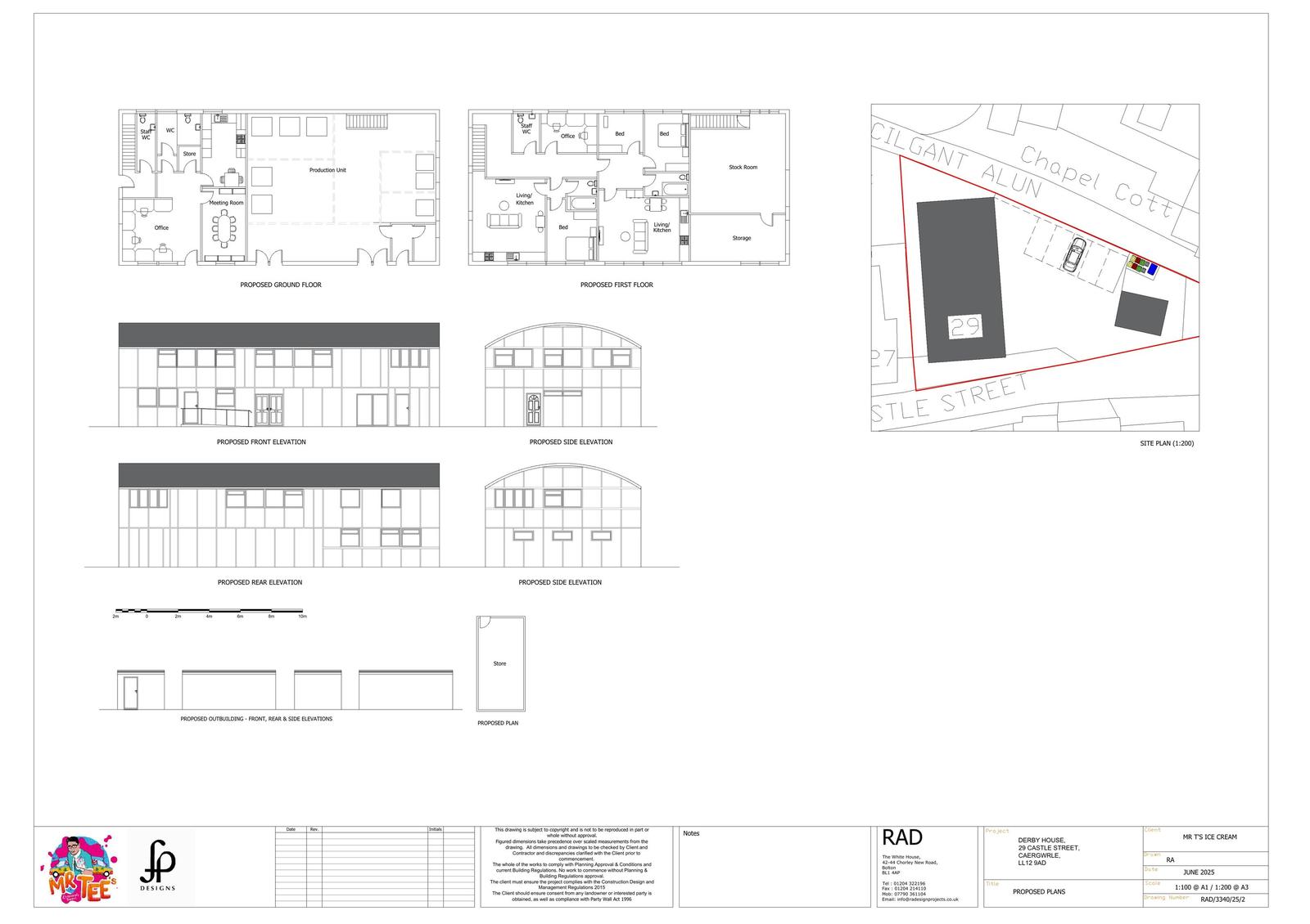
Full proposal

Change of use of the ground floor from offices to a food production premises, together with 2no. Apartments

Documents

AMENDED 13.08.25 - Application Form - Redacted
Amended
Not yet archived · Original link
Decision Notice
Decision
Not yet archived · Original link
Location & Block Plans and Existing Floor Plans & Elevations - Dwg RAD/3340/25/1
Location Plan
Not yet archived · Original link
Officers Report
Decision
Not yet archived · Original link
Planning, Heritage, Design & Access Statement
Statement
Not yet archived · Original link
SUPERSEDED 13.08.25 - Application Form - Redacted
Superseded
Not yet archived · Original link

Have your say

Your comment matters. Councils must consider every representation that raises material planning considerations.

Write a comment