← Flintshire County Council

Status

Notice of Decision Issued House extension
Received
25 Aug 2025
New homes
0

Full proposal

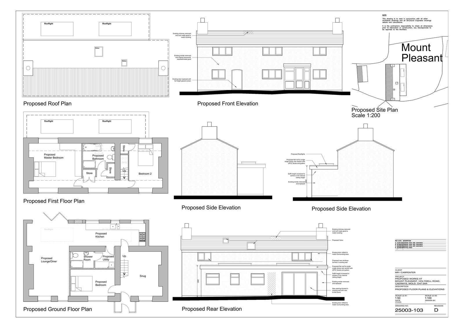
Removal of existing pitched roof to rear extension and replacement with flat roof and roof lights along with general opening re-configuration, proposed addition windows in existing side elevation and change mono pitch roof to garage to dual pitch. General internal re-configuration.

Documents

ADD INFO 04.10.25 Flat rooflights
Additional Information
Not yet archived · Original link
ADD INFO 07.10.25 -Green Infrastructure & Biodiversity Statement
Additional Information
Not yet archived · Original link
Application Form - Redacted
Application Form
Not yet archived · Original link
Decision Notice
Decision
Not yet archived · Original link
Existing & Proposed Garage Floor & Roof Plans & Elevations - Dwg 25003-104 Rev A
Plan
Not yet archived · Original link
Location Plan - Dwg 25003-101 Rev A
Location Plan
Not yet archived · Original link
Officers Report
Decision
Not yet archived · Original link

Have your say

Your comment matters. Councils must consider every representation that raises material planning considerations.

Write a comment