← Folkestone & Hythe District Council

Status

Pending House extension
Received
Not recorded
New homes
0

Full proposal

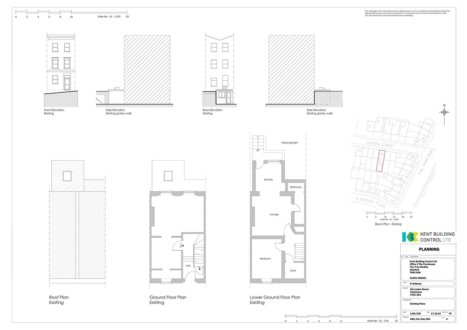
Reference 25/0058/FH Site address Flat 1, 20 London Street, Folkestone, CT20 1RA Proposal Single storey rear extension and one new roof lanterns Date valid 15/1/2025 Status Closed Decision Approve with Conditions Consultation deadline date 10/2/2025

Documents

Uncategorised
Archived · Original link
Uncategorised
Archived · Original link
Uncategorised
Archived · Original link
Uncategorised
Archived · Original link
Uncategorised
Archived · Original link
Uncategorised
Archived · Original link
Uncategorised
Archived · Original link
Uncategorised
Archived · Original link
Uncategorised
Archived · Original link

Have your say

Your comment matters. Councils must consider every representation that raises material planning considerations.

Write a comment