← Folkestone & Hythe District Council

Status

Pending House extension
Received
Not recorded
New homes
0

Full proposal

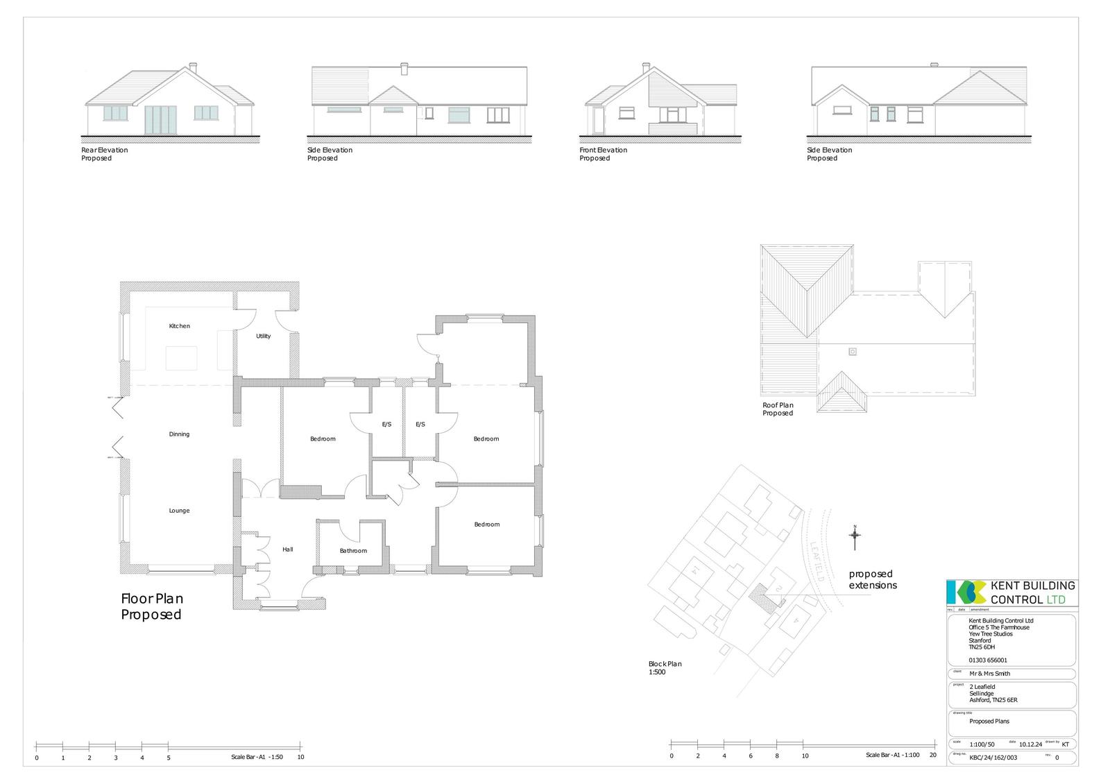
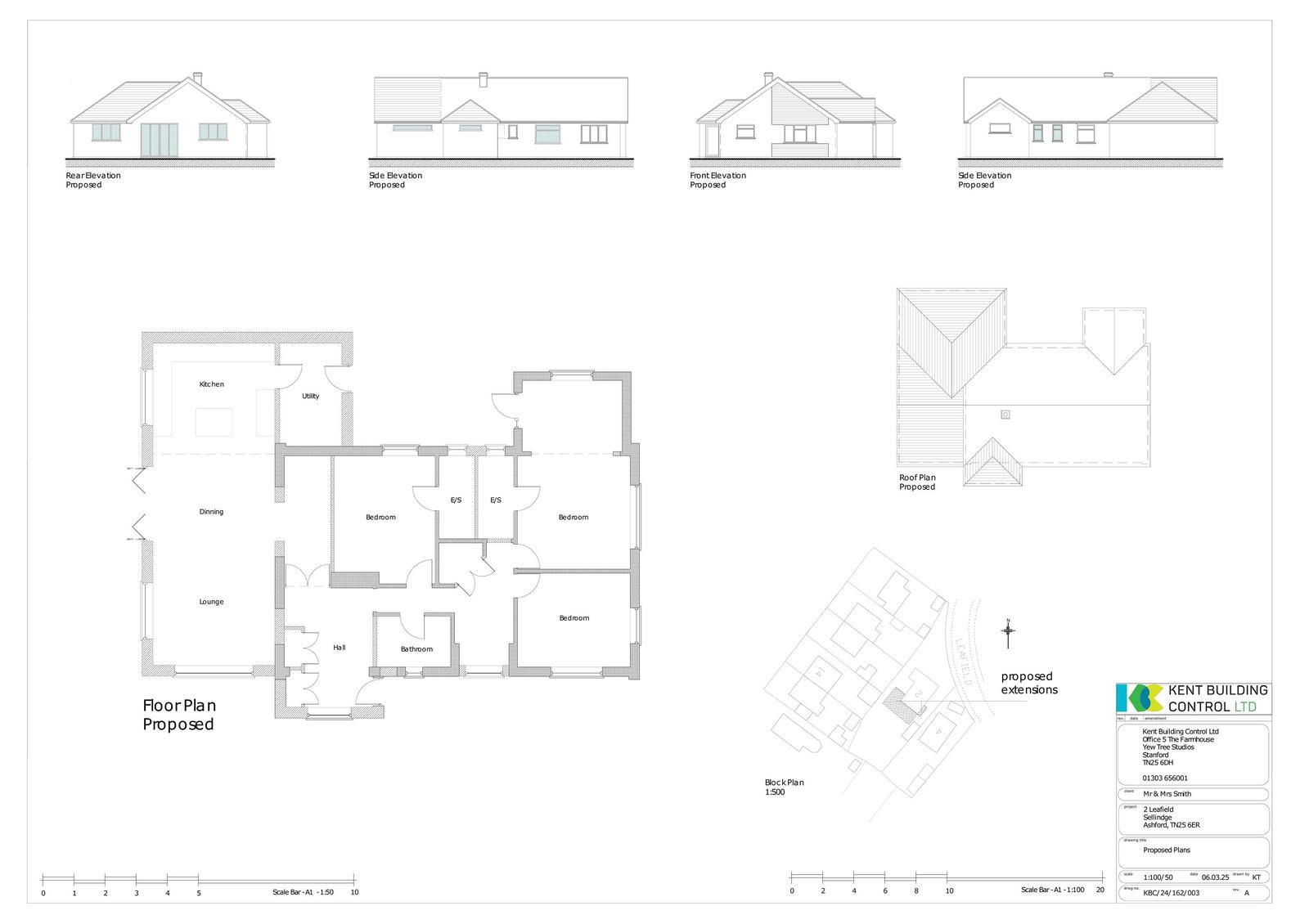
Reference 25/0061/FH Site address 2 LEAFIELD, SELLINDGE, ASHFORD, TN25 6ER Proposal Erection of rear and side extensions. Date valid 14/1/2025 Status Closed Decision Approve with Conditions Consultation deadline date 10/2/2025

Documents

Uncategorised
Archived · Original link
Uncategorised
Archived · Original link
Uncategorised
Archived · Original link
Uncategorised
Archived · Original link
Uncategorised
Archived · Original link
Uncategorised
Archived · Original link
Uncategorised
Archived · Original link
Uncategorised
Archived · Original link
Uncategorised
Archived · Original link
Uncategorised
Archived · Original link

Have your say

Your comment matters. Councils must consider every representation that raises material planning considerations.

Write a comment