← Folkestone & Hythe District Council

Status

Pending House extension
Received
Not recorded
New homes
0

Full proposal

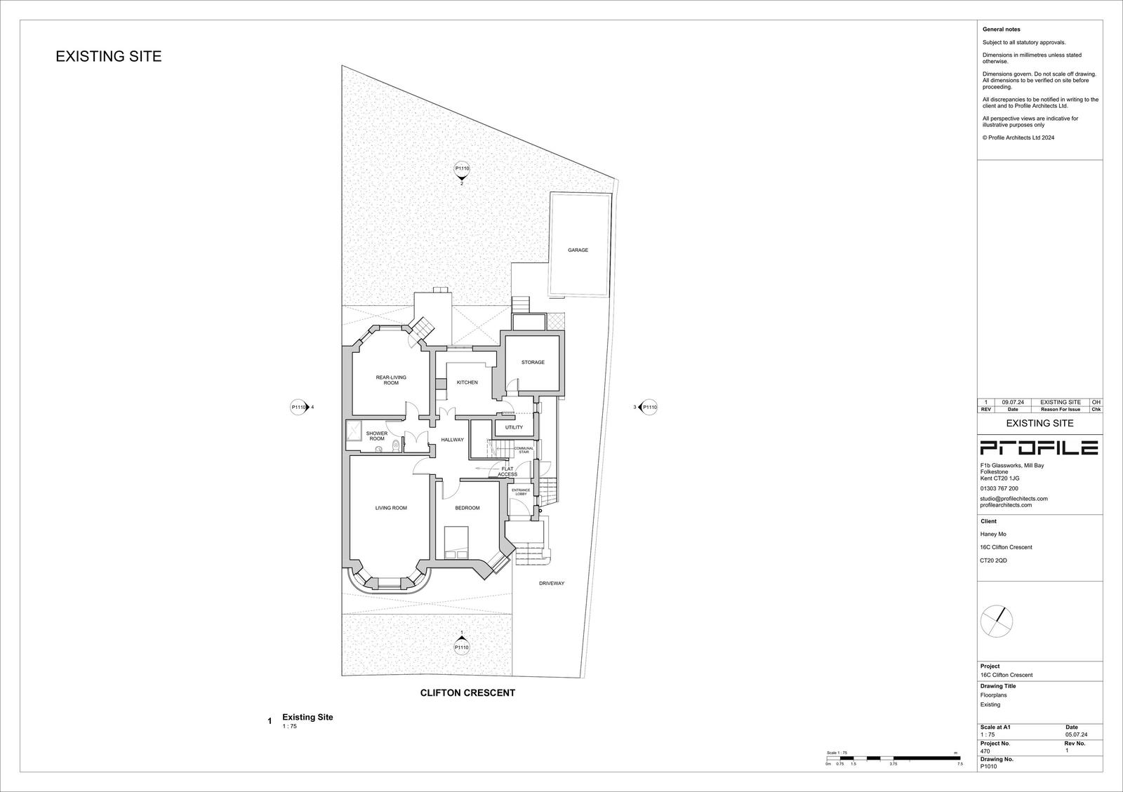
Reference 25/0065/FH Site address Flat C, 16 Clifton Crescent, Folkestone, CT20 2EP Proposal Erection of single storey side/rear extension to provide annex accommodation. Date valid 28/1/2025 Status Closed Decision Approve with Conditions Consultation deadline date 06/3/2025

Documents

Uncategorised
Archived · Original link
Uncategorised
Archived · Original link
Uncategorised
Archived · Original link
Uncategorised
Archived · Original link
Uncategorised
Archived · Original link
Uncategorised
Archived · Original link
Uncategorised
Archived · Original link
Uncategorised
Archived · Original link
Uncategorised
Archived · Original link
Uncategorised
Archived · Original link
Uncategorised
Archived · Original link
Uncategorised
Archived · Original link
Uncategorised
Archived · Original link
Uncategorised
Archived · Original link
Uncategorised
Archived · Original link
Uncategorised
Archived · Original link
Uncategorised
Archived · Original link
Uncategorised
Archived · Original link
Uncategorised
Archived · Original link
Uncategorised
Archived · Original link

Have your say

Your comment matters. Councils must consider every representation that raises material planning considerations.

Write a comment