← Folkestone & Hythe District Council

Status

Pending Change of use
Received
Not recorded
New homes
1

Full proposal

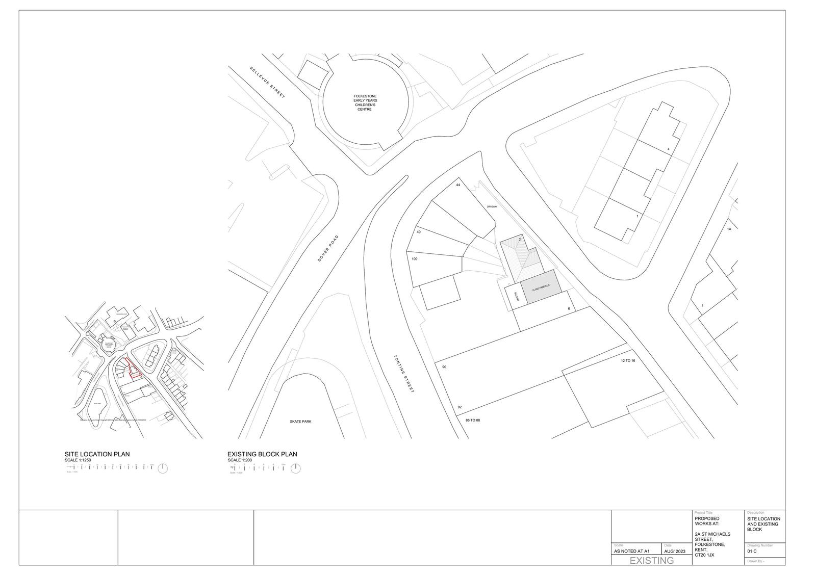
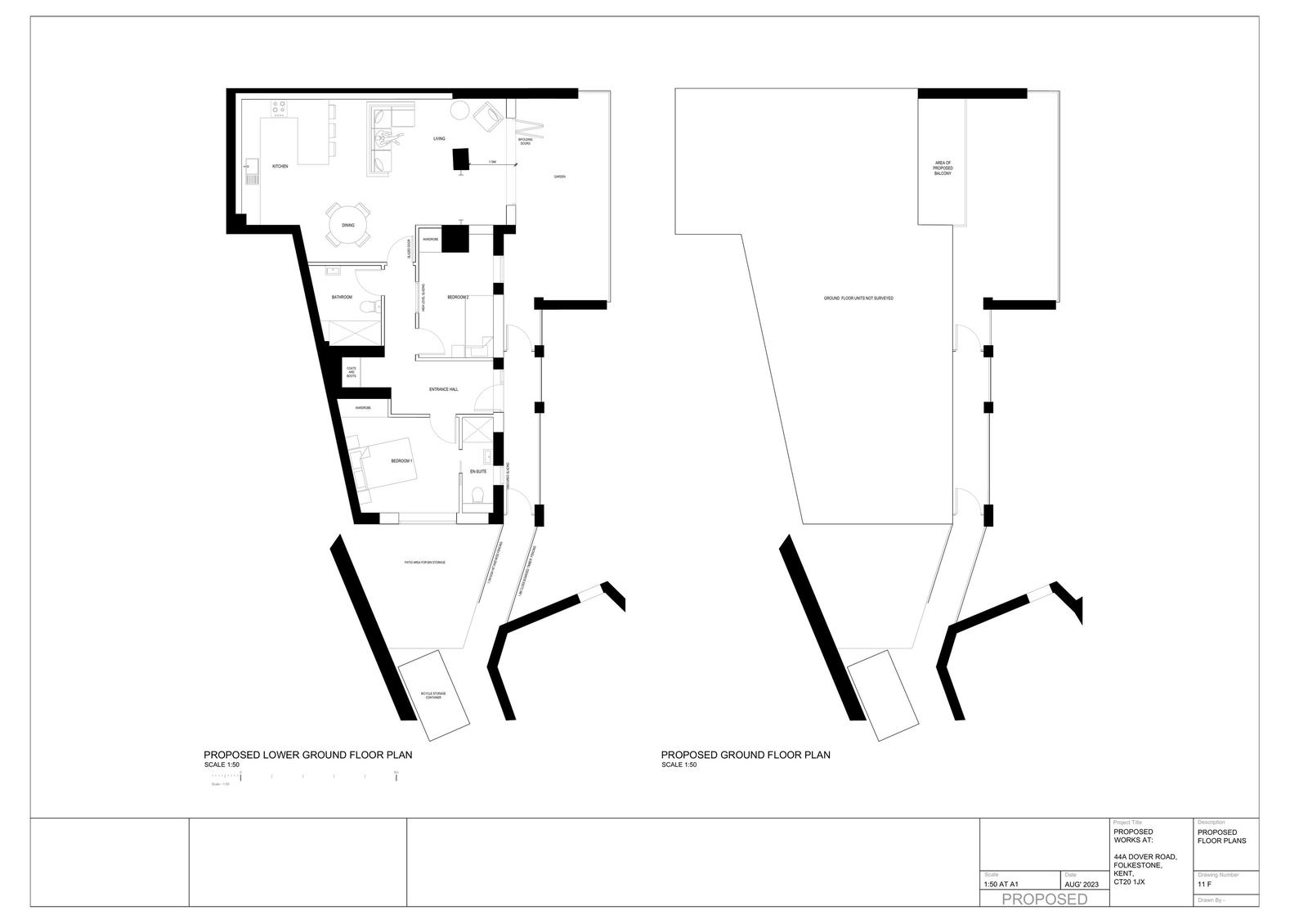
Reference 25/0077/FH Site address 2A ST MICHAELS STREET, FOLKESTONE, CT20 1LW Proposal Conversion and alterations to existing garage unit (use class B2) to create 1 no. 2 bedroom apartment (use class C3) with external amenity space and bin and bike storage. Alterations to rear extension and existing balcony above. Date valid 16/1/2025 Status Closed Decision Approve with Conditions Consultation deadline date 19/5/2025

Documents

Uncategorised
Archived · Original link
Uncategorised
Archived · Original link
Uncategorised
Archived · Original link
Uncategorised
Archived · Original link
Uncategorised
Archived · Original link
Uncategorised
Archived · Original link
Uncategorised
Archived · Original link
Uncategorised
Archived · Original link
Uncategorised
Archived · Original link
Uncategorised
Archived · Original link
Uncategorised
Archived · Original link
Uncategorised
Archived · Original link
Uncategorised
Archived · Original link
Uncategorised
Archived · Original link
Uncategorised
Archived · Original link
Uncategorised
Archived · Original link
Uncategorised
Archived · Original link
Uncategorised
Archived · Original link
Uncategorised
Archived · Original link
Uncategorised
Archived · Original link

Have your say

Your comment matters. Councils must consider every representation that raises material planning considerations.

Write a comment