← Folkestone & Hythe District Council

Status

Pending Change of use
Received
Not recorded
New homes
2

Full proposal

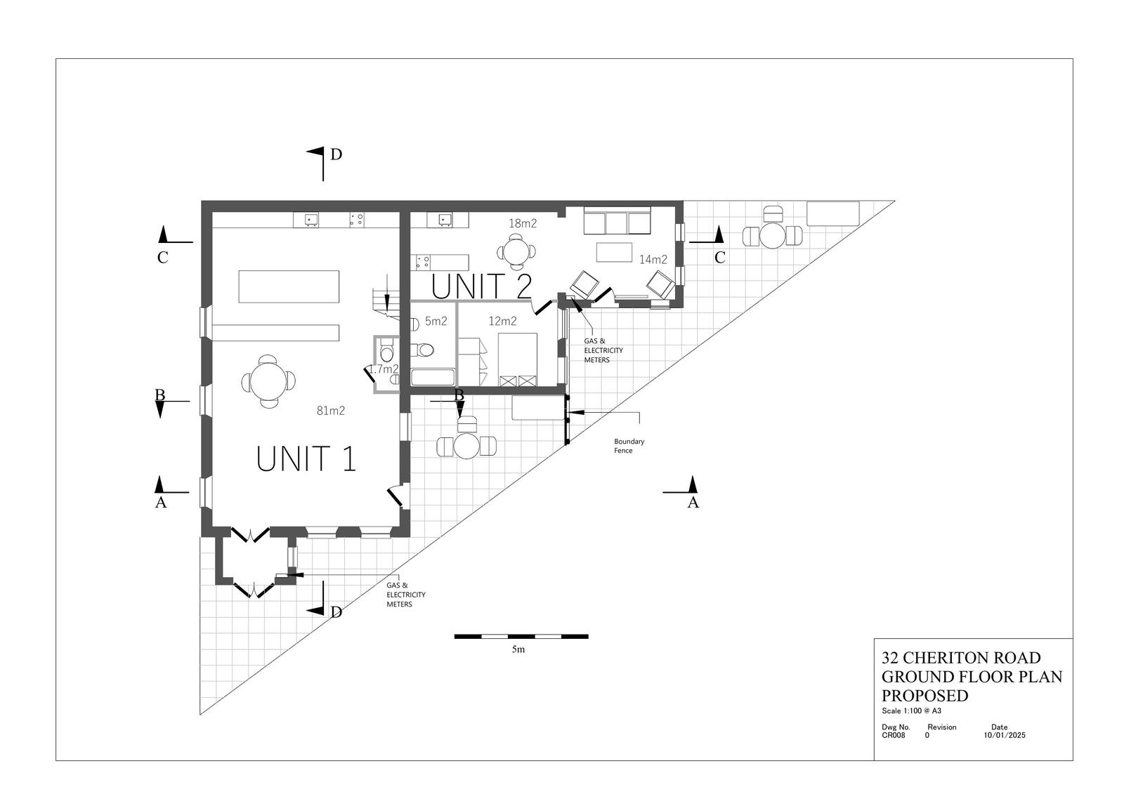
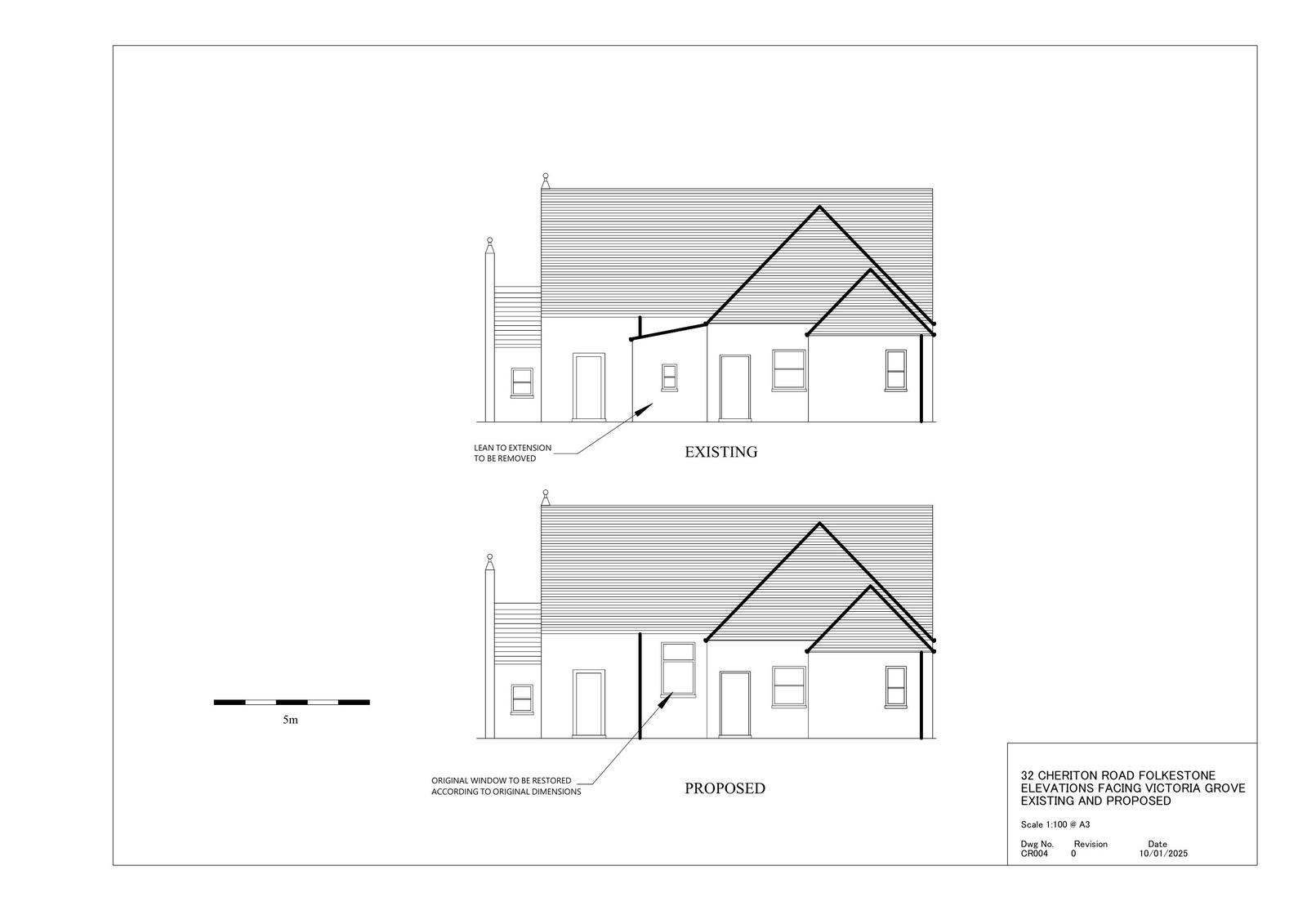
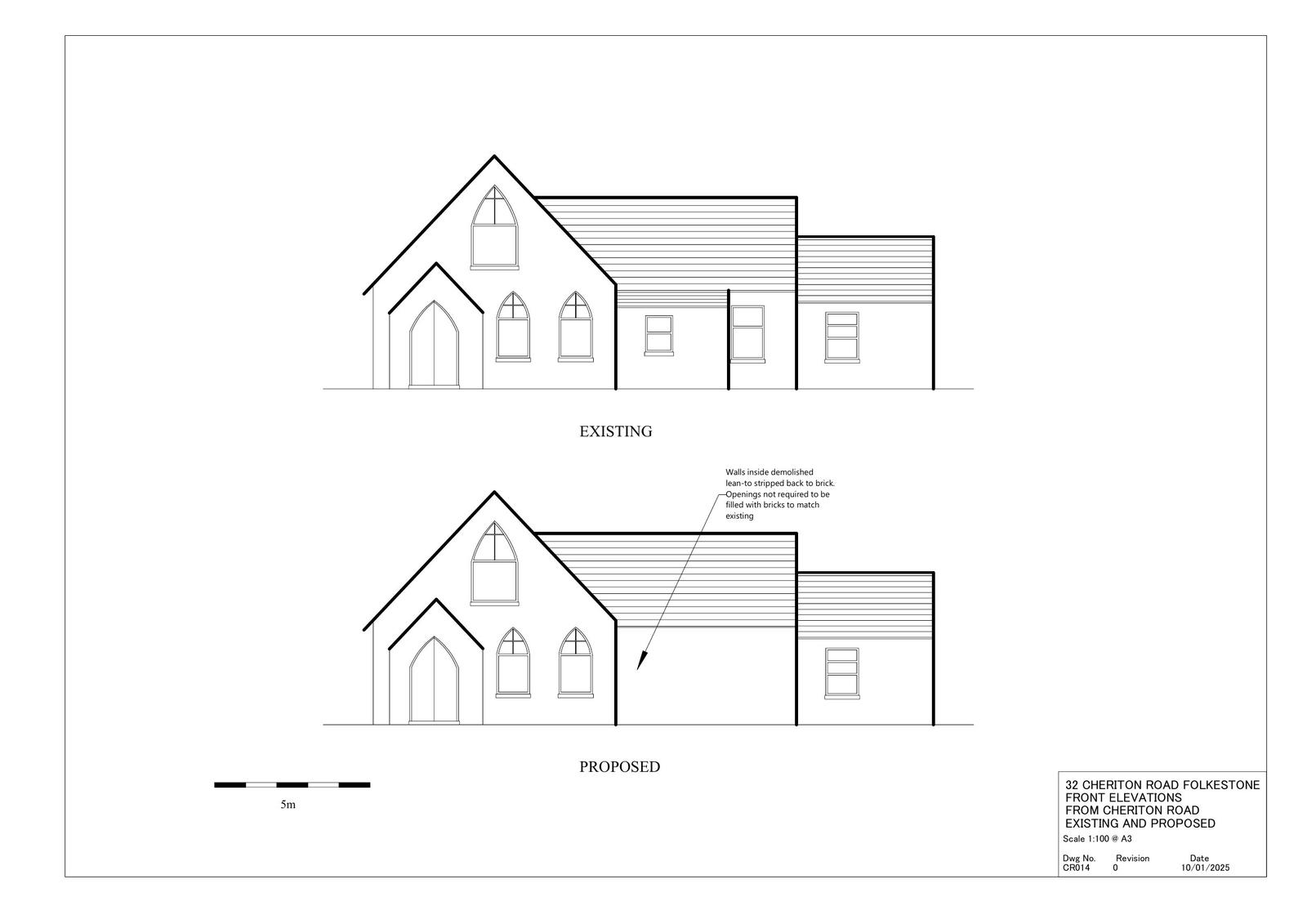
Reference 25/0105/FH Site address South Kent Christian Community Church, 32 Cheriton Road, Folkestone, CT20 1BZ Proposal Change of use of church and church hall into a two bedroom house on two levels and a one bedroom house on one level. Date valid 27/1/2025 Status Closed Decision Refused Consultation deadline date 17/2/2025

Documents

Uncategorised
Archived · Original link
Uncategorised
Archived · Original link
Uncategorised
Archived · Original link
Uncategorised
Archived · Original link
Uncategorised
Archived · Original link
Uncategorised
Archived · Original link
Uncategorised
Archived · Original link
Uncategorised
Archived · Original link
Uncategorised
Archived · Original link
Uncategorised
Archived · Original link
Uncategorised
Archived · Original link
Uncategorised
Archived · Original link
Uncategorised
Archived · Original link
Uncategorised
Archived · Original link
Uncategorised
Archived · Original link
Uncategorised
Archived · Original link
Uncategorised
Archived · Original link
Uncategorised
Archived · Original link
Uncategorised
Archived · Original link
Uncategorised
Archived · Original link

Have your say

Your comment matters. Councils must consider every representation that raises material planning considerations.

Write a comment