← Folkestone & Hythe District Council

Status

Pending Renewable energy
Received
Not recorded
New homes
0

Full proposal

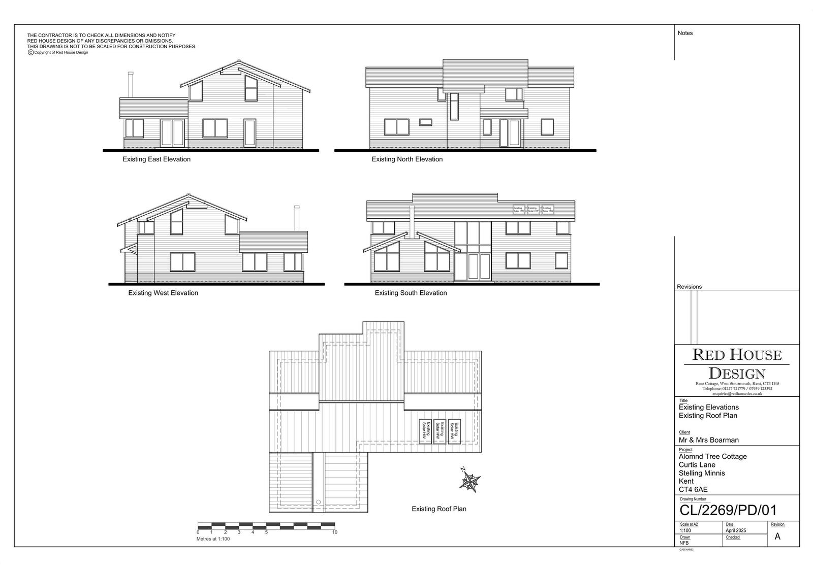
Reference 25/0589/FH Site address ALMOND TREE COTTAGE, CURTIS LANE, STELLING MINNIS, CANTERBURY, CT4 6AE Proposal Replacement of flat roofed areas & installation of solar panels. Date valid 30/4/2025 Status Closed Decision Approve with Conditions Consultation deadline date 21/5/2025

Documents

Uncategorised
Archived · Original link
Uncategorised
Archived · Original link
Uncategorised
Archived · Original link
Uncategorised
Archived · Original link
Uncategorised
Archived · Original link
Uncategorised
Archived · Original link
Uncategorised
Archived · Original link
Uncategorised
Archived · Original link
Uncategorised
Archived · Original link
Uncategorised
Archived · Original link
Uncategorised
Archived · Original link
Uncategorised
Archived · Original link
Uncategorised
Archived · Original link
Uncategorised
Archived · Original link

Have your say

Your comment matters. Councils must consider every representation that raises material planning considerations.

Write a comment