← Folkestone & Hythe District Council

Status

Pending House extension
Received
Not recorded
New homes
0

Full proposal

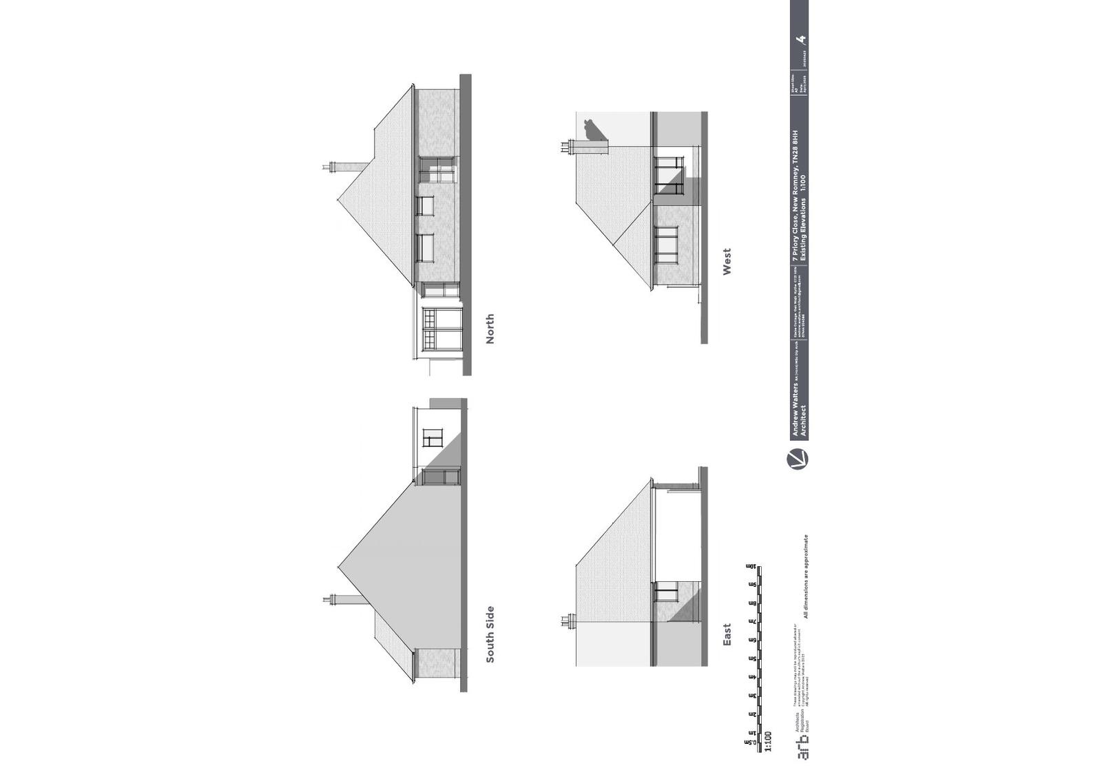
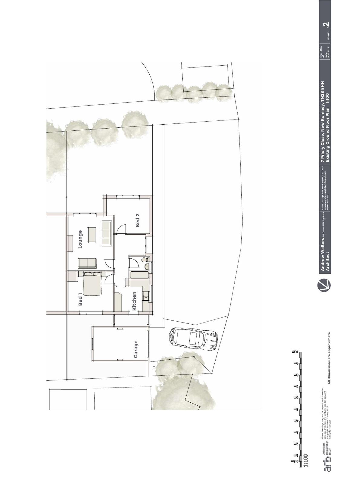
Reference 25/0776/FH Site address 7 PRIORY CLOSE, NEW ROMNEY, TN28 8HH Proposal Erection of a single storey front extension and single storey front and side extension, following the demolition of the garage. Date valid 02/5/2025 Status Closed Decision Approve with Conditions Consultation deadline date 05/6/2025

Documents

Uncategorised
Archived · Original link
Uncategorised
Archived · Original link
Uncategorised
Archived · Original link
Uncategorised
Archived · Original link
Uncategorised
Archived · Original link
Uncategorised
Archived · Original link
Uncategorised
Archived · Original link
Uncategorised
Archived · Original link
Uncategorised
Archived · Original link
Uncategorised
Archived · Original link

Have your say

Your comment matters. Councils must consider every representation that raises material planning considerations.

Write a comment