← Folkestone & Hythe District Council

Status

Pending Change of use
Received
Not recorded
New homes
0

Full proposal

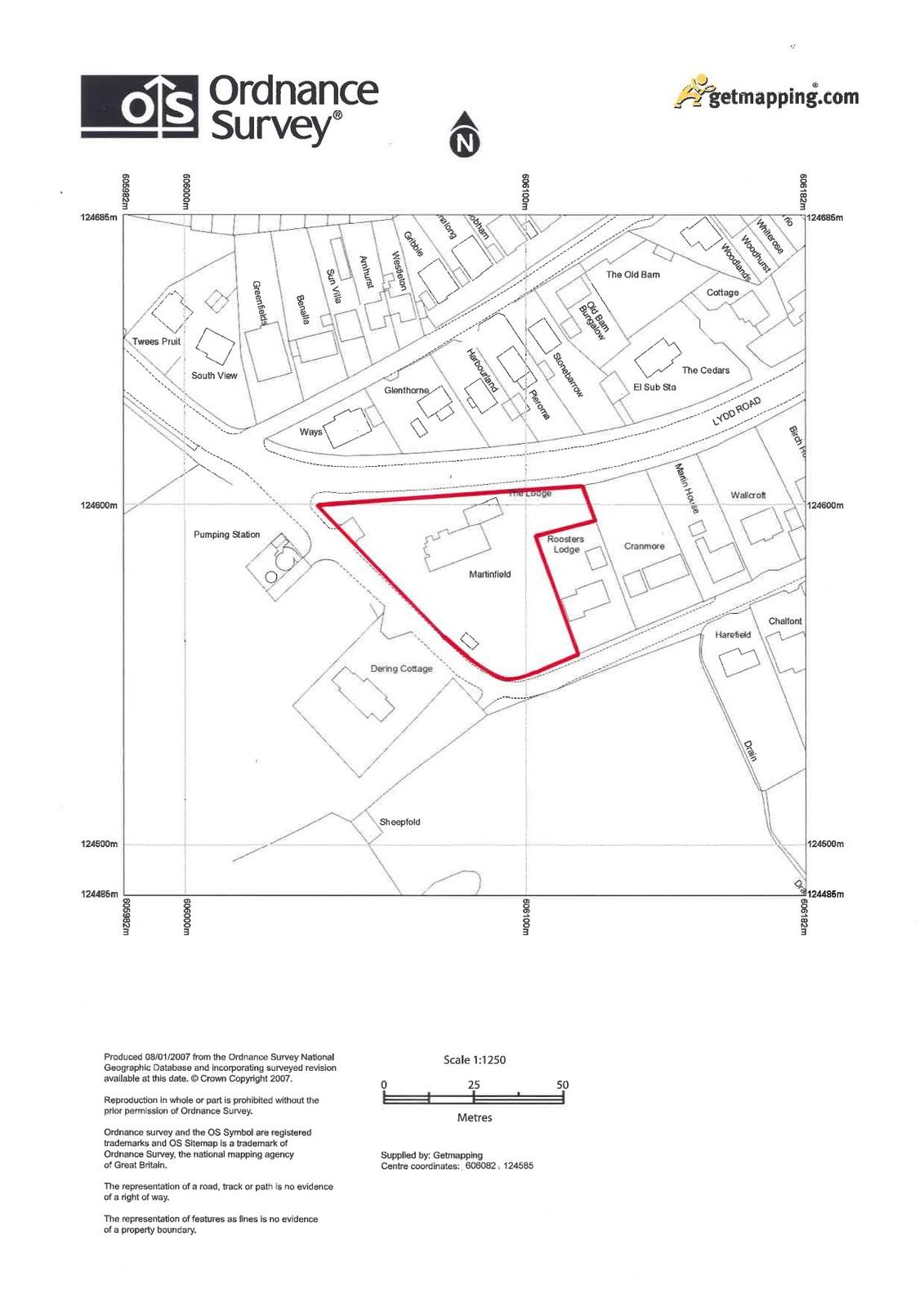
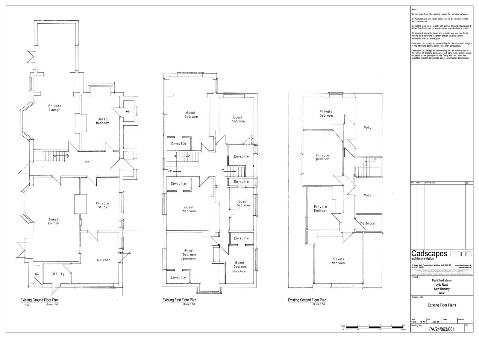
Reference 25/0855/FH Site address MARTINFIELD MANOR, LYDD ROAD, NEW ROMNEY, TN28 8HB Proposal Change of use from a mixed use of guest house and private residential dwelling house to a single dwelling (Use Class C3). Date valid 08/5/2025 Status Closed Decision Approve with Conditions Consultation deadline date 06/6/2025

Documents

Uncategorised
Archived · Original link
Uncategorised
Archived · Original link
Uncategorised
Archived · Original link
Uncategorised
Archived · Original link
Uncategorised
Archived · Original link
Uncategorised
Archived · Original link
Uncategorised
Archived · Original link
Uncategorised
Archived · Original link
Uncategorised
Archived · Original link

Have your say

Your comment matters. Councils must consider every representation that raises material planning considerations.

Write a comment