← Folkestone & Hythe District Council

Status

Pending House extension
Received
Not recorded
New homes
0

Full proposal

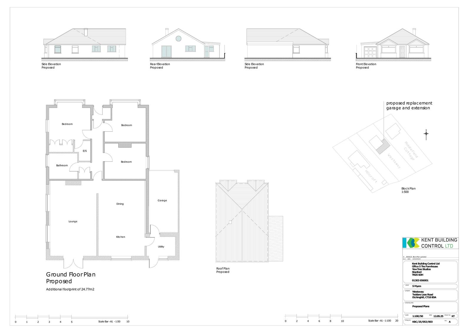
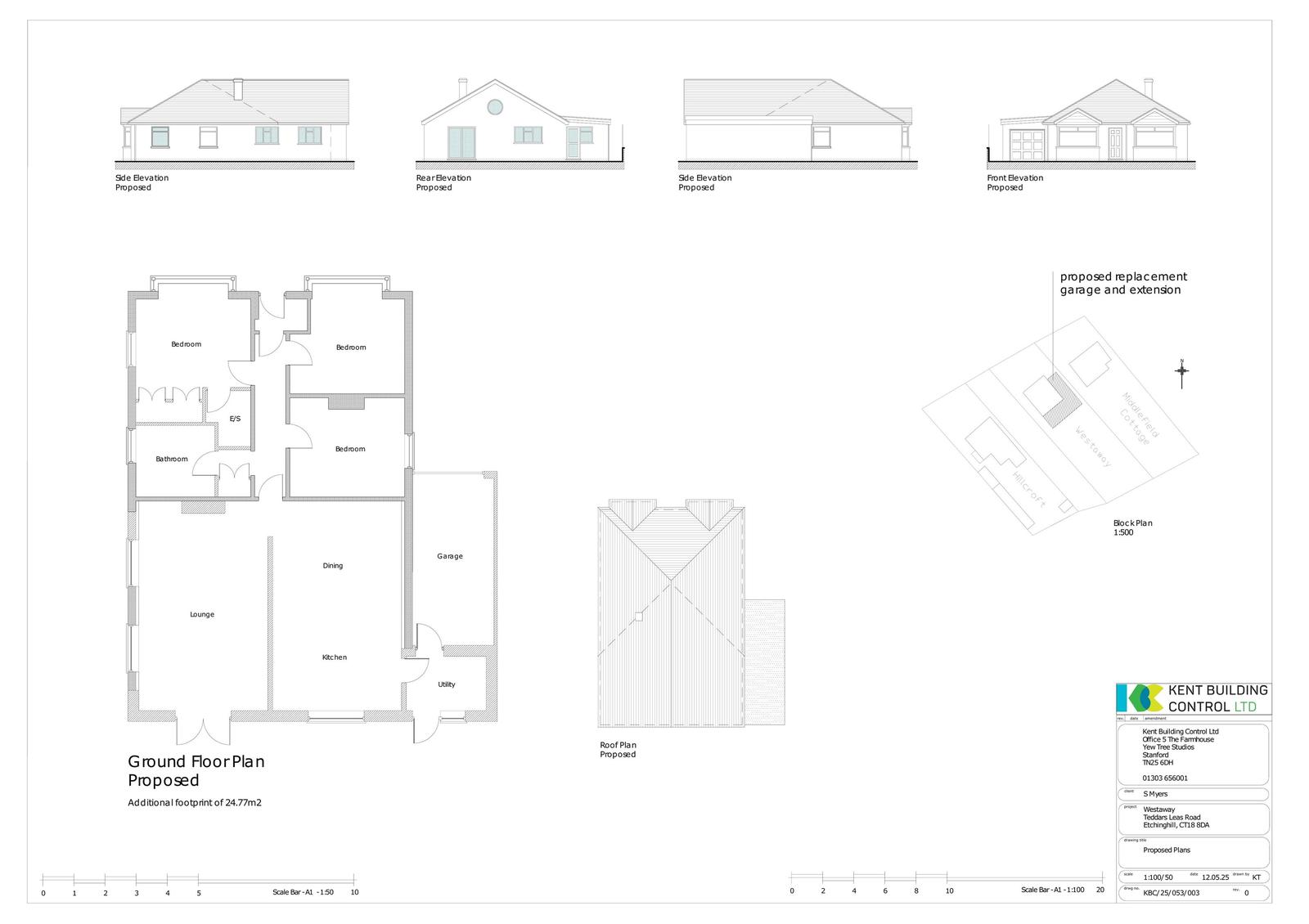
Reference 25/0892/FH Site address WESTAWAY, TEDDARS LEAS ROAD, ETCHINGHILL, FOLKESTONE, CT18 8DA Proposal Erection of a replacement garage, rear extension and roof structure. Date valid 14/5/2025 Status Closed Decision Approve with Conditions Consultation deadline date 06/6/2025

Documents

Uncategorised
Archived · Original link
Uncategorised
Archived · Original link
Uncategorised
Archived · Original link
Uncategorised
Archived · Original link
Uncategorised
Archived · Original link
Uncategorised
Archived · Original link
Uncategorised
Archived · Original link
Uncategorised
Archived · Original link

Have your say

Your comment matters. Councils must consider every representation that raises material planning considerations.

Write a comment