← Folkestone & Hythe District Council

Status

Pending House extension
Received
Not recorded
New homes
0

Full proposal

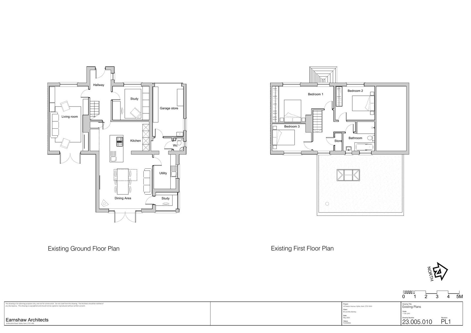
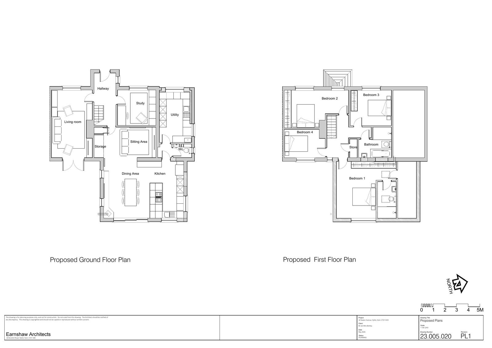
Reference 25/0920/FH Site address 42 SEATON AVENUE, HYTHE, CT21 5HH Proposal Rear first floor extension, proposed windows to first floor rear elevation and ground floor side and front elevations, amendments to ground floor side and rear windows, proposed rooflights to northern roof, replacement flue, conversion of garage store to utility Date valid 19/5/2025 Status Closed Decision Approve with Conditions Consultation deadline date 10/6/2025

Documents

Uncategorised
Archived · Original link
Uncategorised
Archived · Original link
Uncategorised
Archived · Original link
Uncategorised
Archived · Original link
Uncategorised
Archived · Original link
Uncategorised
Archived · Original link
Uncategorised
Archived · Original link
Uncategorised
Archived · Original link
Uncategorised
Archived · Original link

Have your say

Your comment matters. Councils must consider every representation that raises material planning considerations.

Write a comment