← Folkestone & Hythe District Council

Status

Pending Change of use
Received
Not recorded
New homes
1

Full proposal

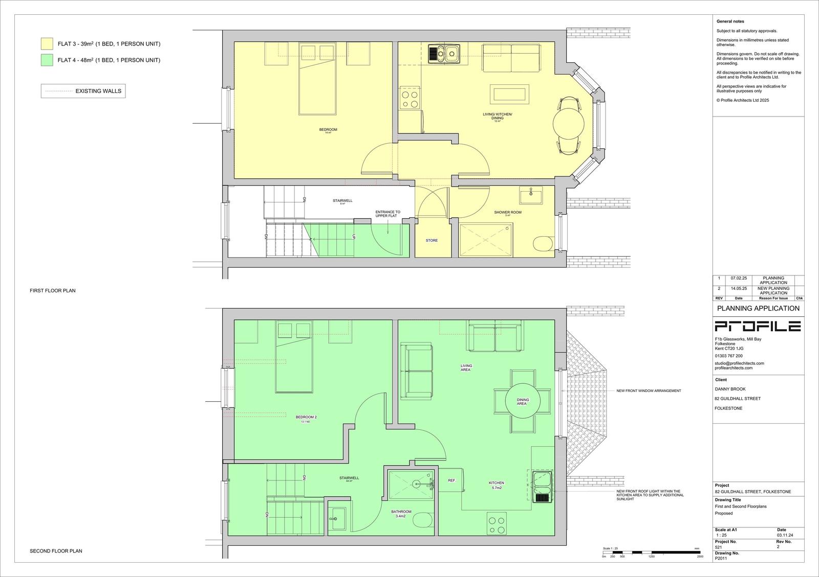
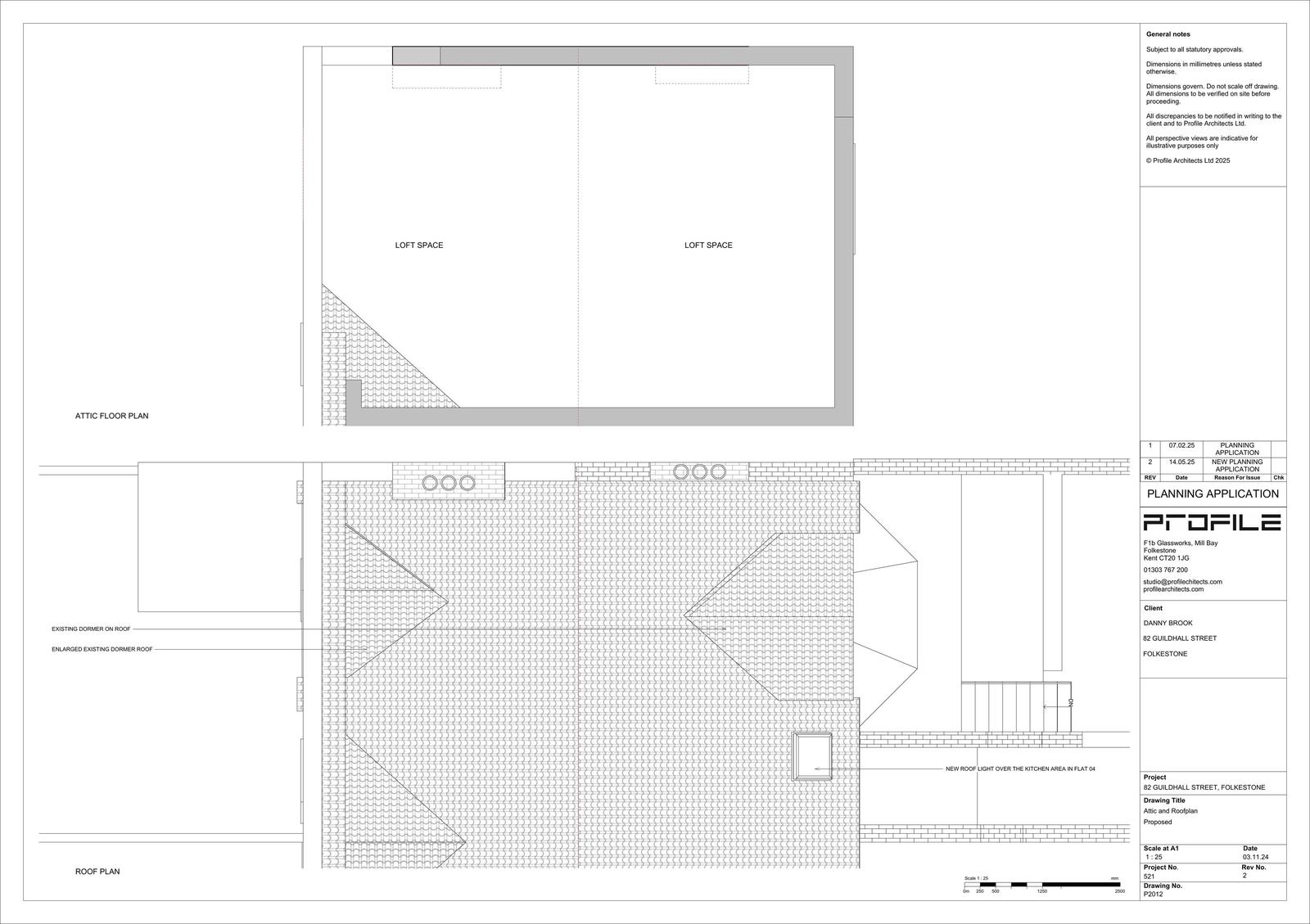
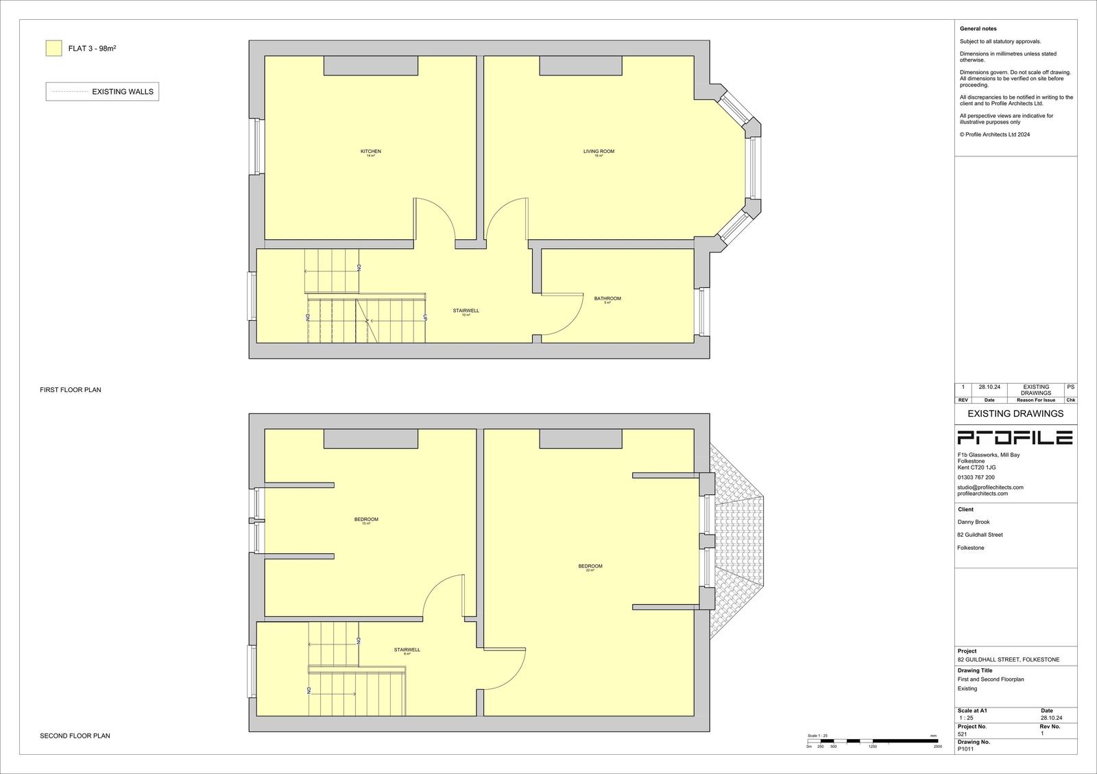
Reference 25/0944/FH Site address 82 GUILDHALL STREET, FOLKESTONE, CT20 1EQ Proposal Conversion of 3 self-contained flats to 4 self-contained flats, re - build of front entrance staircase, addition of front rooflight, front bay window re -configuration and enlarged rear existing dormer. Date valid 28/5/2025 Status Closed Decision Approve with Conditions Consultation deadline date 19/6/2025

Documents

Uncategorised
Archived · Original link
Uncategorised
Archived · Original link
Uncategorised
Archived · Original link
Uncategorised
Archived · Original link
Uncategorised
Archived · Original link
Uncategorised
Archived · Original link
Uncategorised
Archived · Original link
Uncategorised
Archived · Original link
Uncategorised
Archived · Original link
Uncategorised
Archived · Original link
Uncategorised
Archived · Original link
Uncategorised
Archived · Original link
Uncategorised
Archived · Original link
Uncategorised
Archived · Original link
Uncategorised
Archived · Original link
Uncategorised
Archived · Original link
Uncategorised
Archived · Original link
Uncategorised
Archived · Original link
Uncategorised
Archived · Original link
Uncategorised
Archived · Original link

Have your say

Your comment matters. Councils must consider every representation that raises material planning considerations.

Write a comment