← Folkestone & Hythe District Council

Status

Pending Other
Received
Not recorded
New homes
0

Full proposal

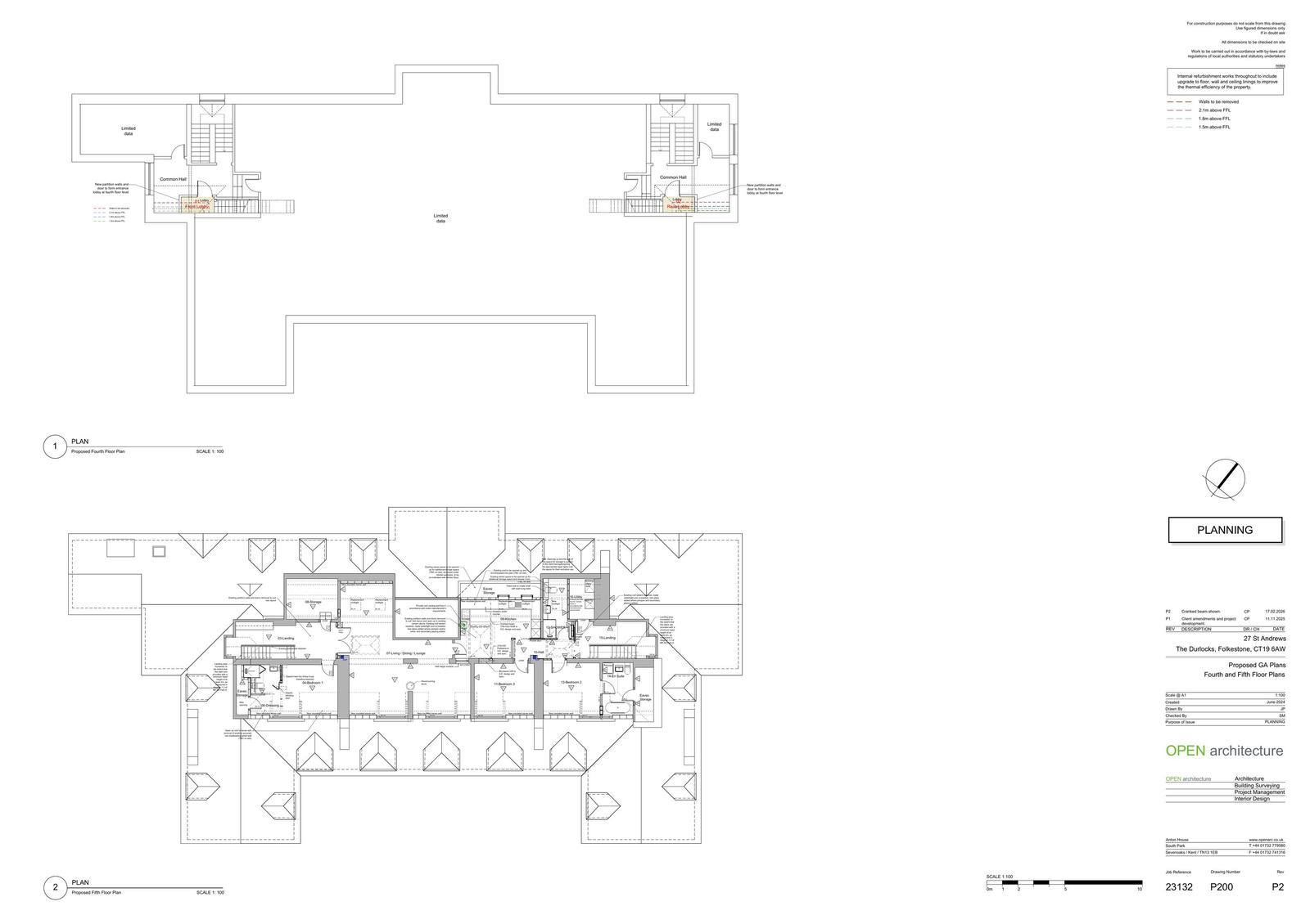
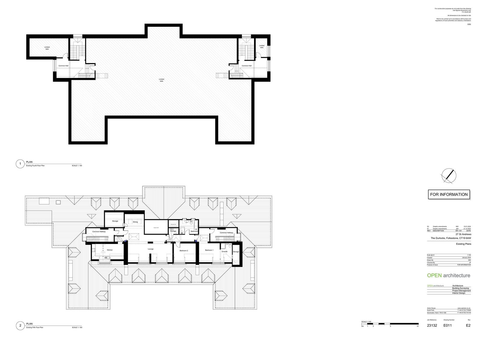
Reference 25/2150/FH Site address FLAT 27, ST ANDREWS, THE DURLOCKS, FOLKESTONE, CT19 6AW Proposal Installation of flue and rooflight. Date valid 02/2/2026 Status Under Consultation Decision Consultation deadline date 06/3/2026

Documents

Uncategorised
Archived · Original link
Download (PDF, 126.79KB)
Uncategorised
Not yet archived · Original link
Uncategorised
Archived · Original link
Uncategorised
Archived · Original link
Uncategorised
Archived · Original link
Uncategorised
Archived · Original link
Uncategorised
Archived · Original link
Uncategorised
Archived · Original link
Uncategorised
Archived · Original link
Uncategorised
Archived · Original link
Uncategorised
Archived · Original link
Uncategorised
Archived · Original link
Uncategorised
Archived · Original link
Uncategorised
Archived · Original link
Uncategorised
Archived · Original link
Uncategorised
Archived · Original link
Uncategorised
Archived · Original link
Uncategorised
Archived · Original link
Uncategorised
Archived · Original link
Uncategorised
Archived · Original link
Uncategorised
Archived · Original link

Have your say

Your comment matters. Councils must consider every representation that raises material planning considerations.

Write a comment