← Folkestone & Hythe District Council

Status

Pending House extension
Received
Not recorded
New homes
0

Full proposal

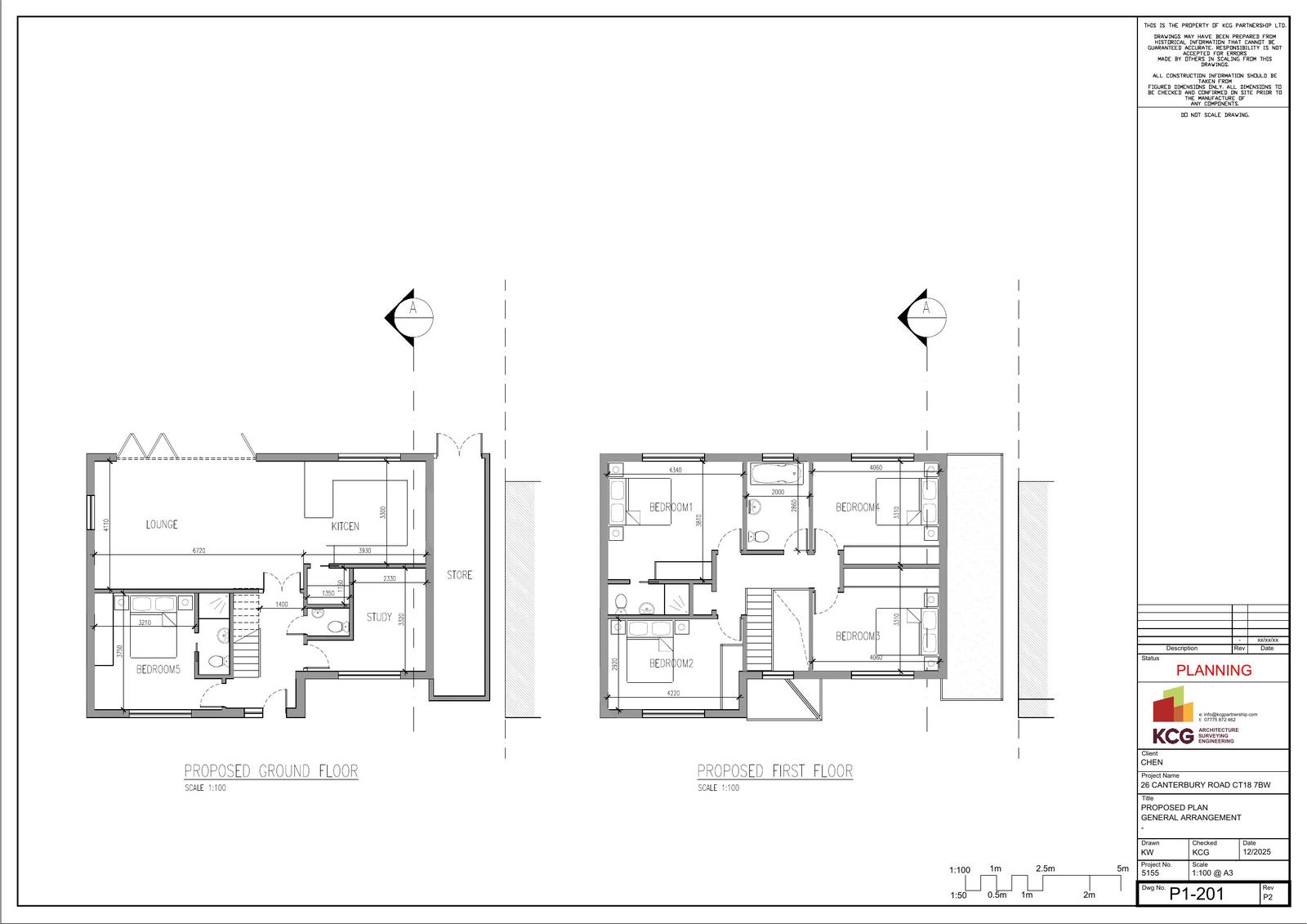
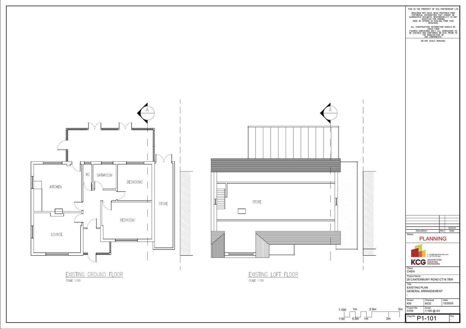
Reference 26/0117/FH Site address 26 CANTERBURY ROAD, HAWKINGE, FOLKESTONE, CT18 7BW Proposal Erection of a first-floor extension and replacement porch. Date valid 02/2/2026 Status Under Consultation Decision Consultation deadline date 24/2/2026

Documents

Uncategorised
Archived · Original link
Uncategorised
Archived · Original link
Uncategorised
Archived · Original link
Uncategorised
Archived · Original link
Uncategorised
Archived · Original link
Uncategorised
Archived · Original link
Uncategorised
Archived · Original link
Uncategorised
Archived · Original link
Uncategorised
Archived · Original link
Uncategorised
Archived · Original link
Uncategorised
Archived · Original link
Uncategorised
Archived · Original link
Uncategorised
Archived · Original link
Uncategorised
Archived · Original link
Uncategorised
Archived · Original link

Have your say

Your comment matters. Councils must consider every representation that raises material planning considerations.

Write a comment