← Folkestone & Hythe District Council

Status

Pending Change of use
Received
Not recorded
New homes
0

Full proposal

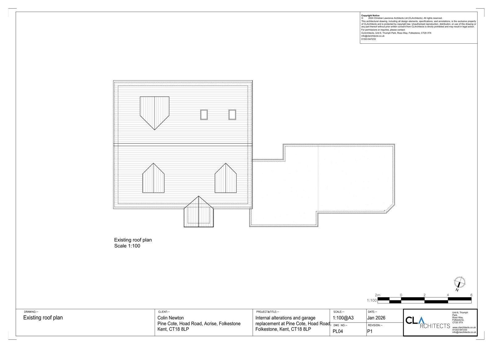
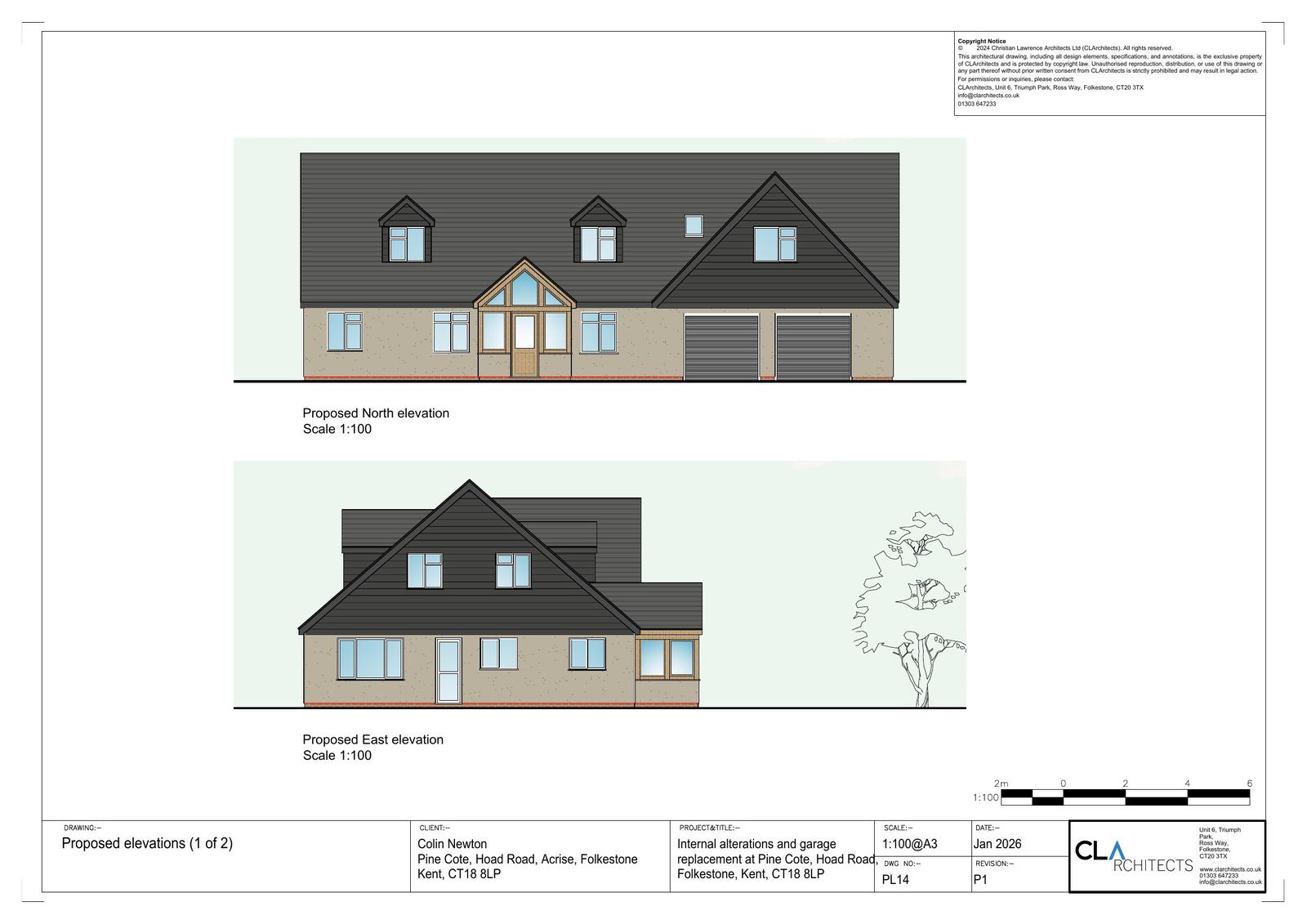
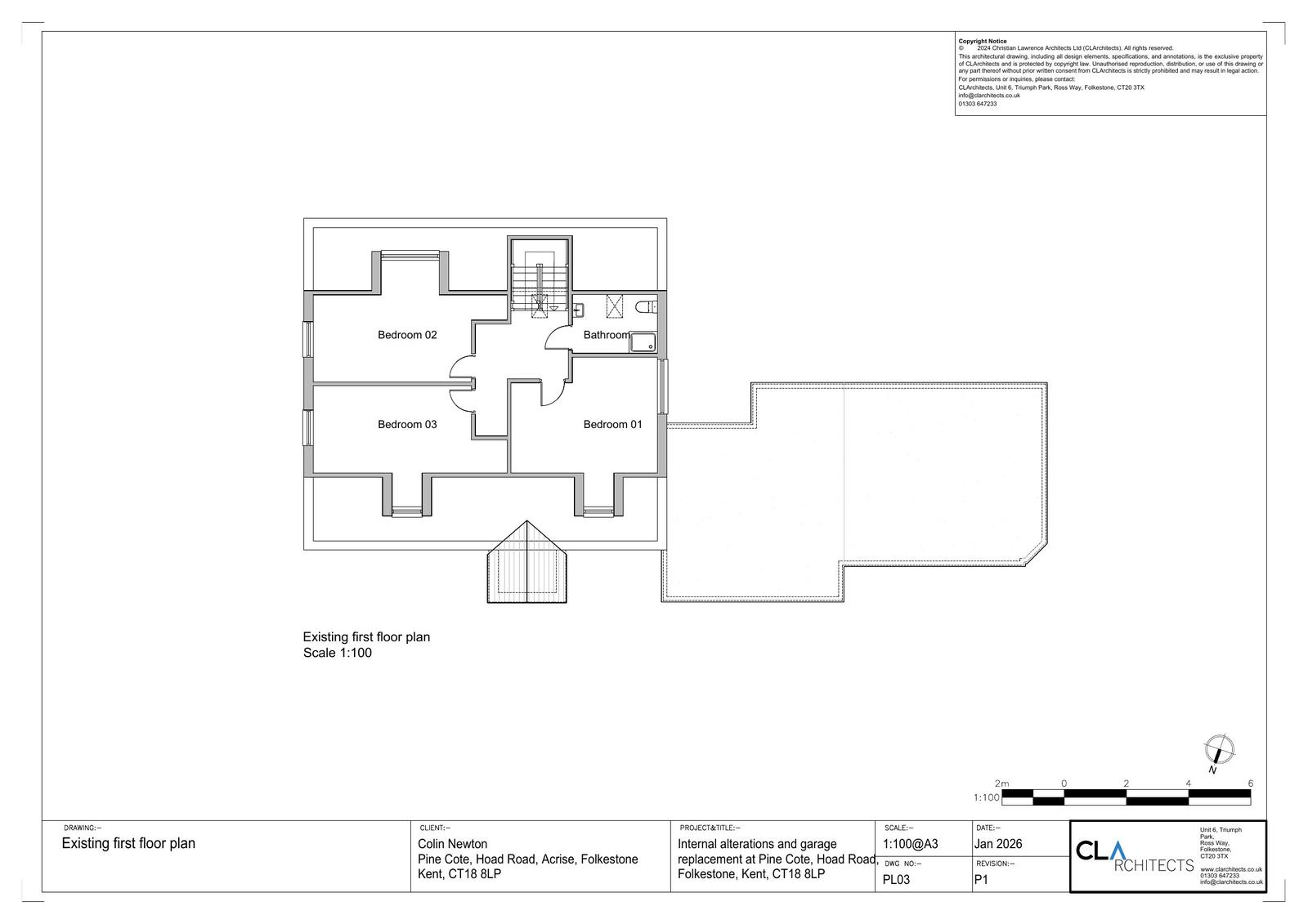
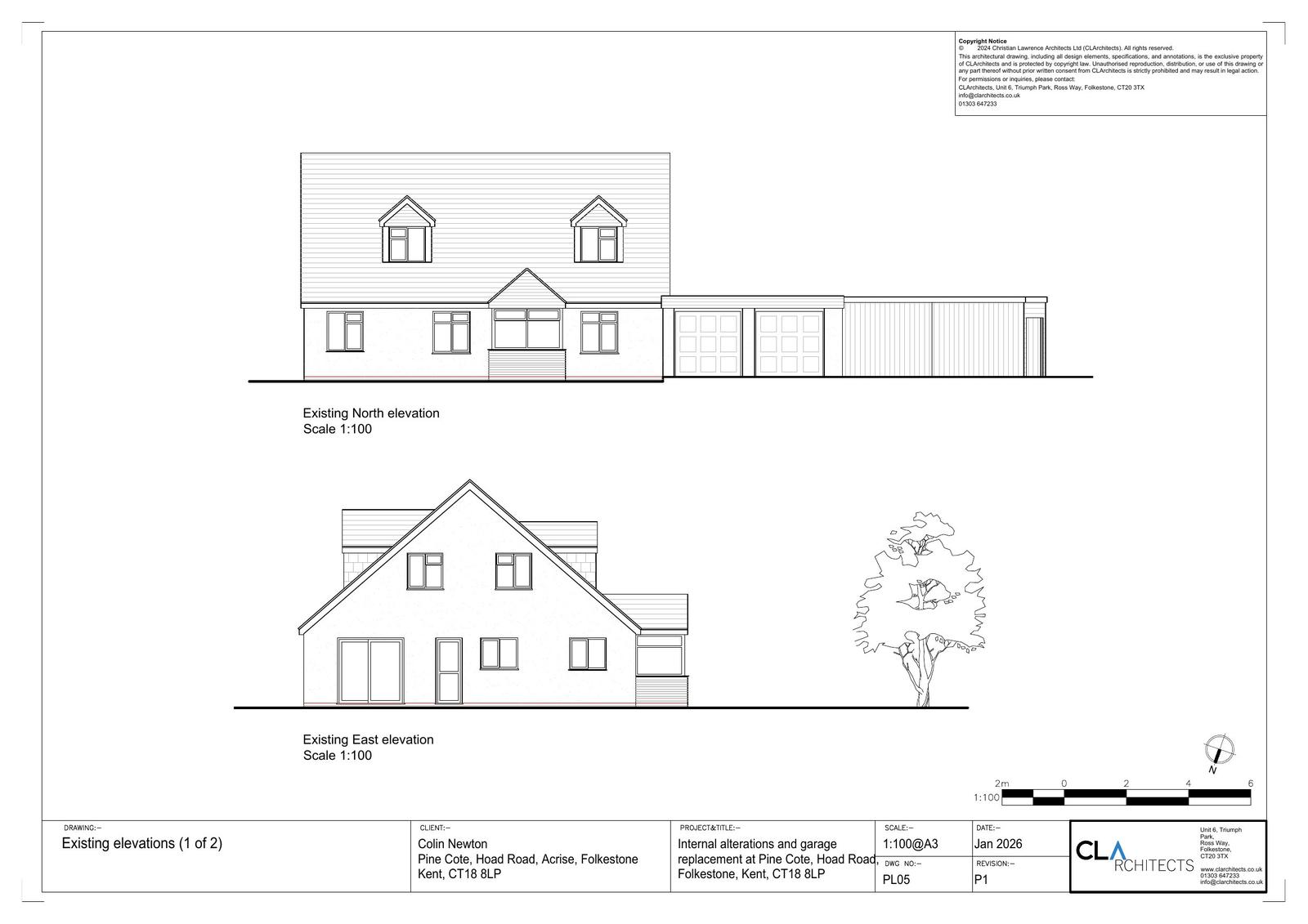
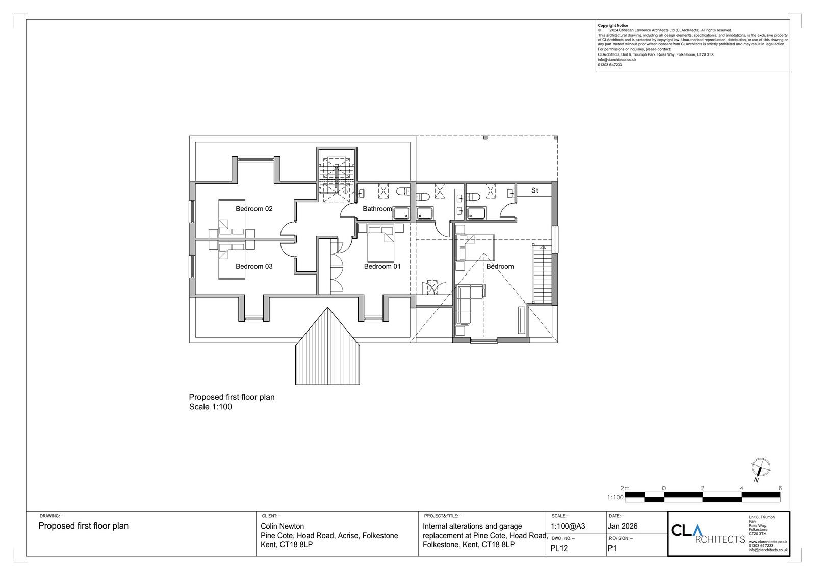
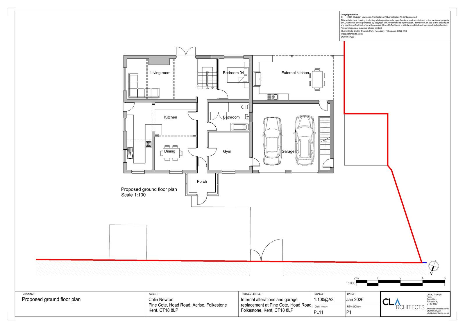
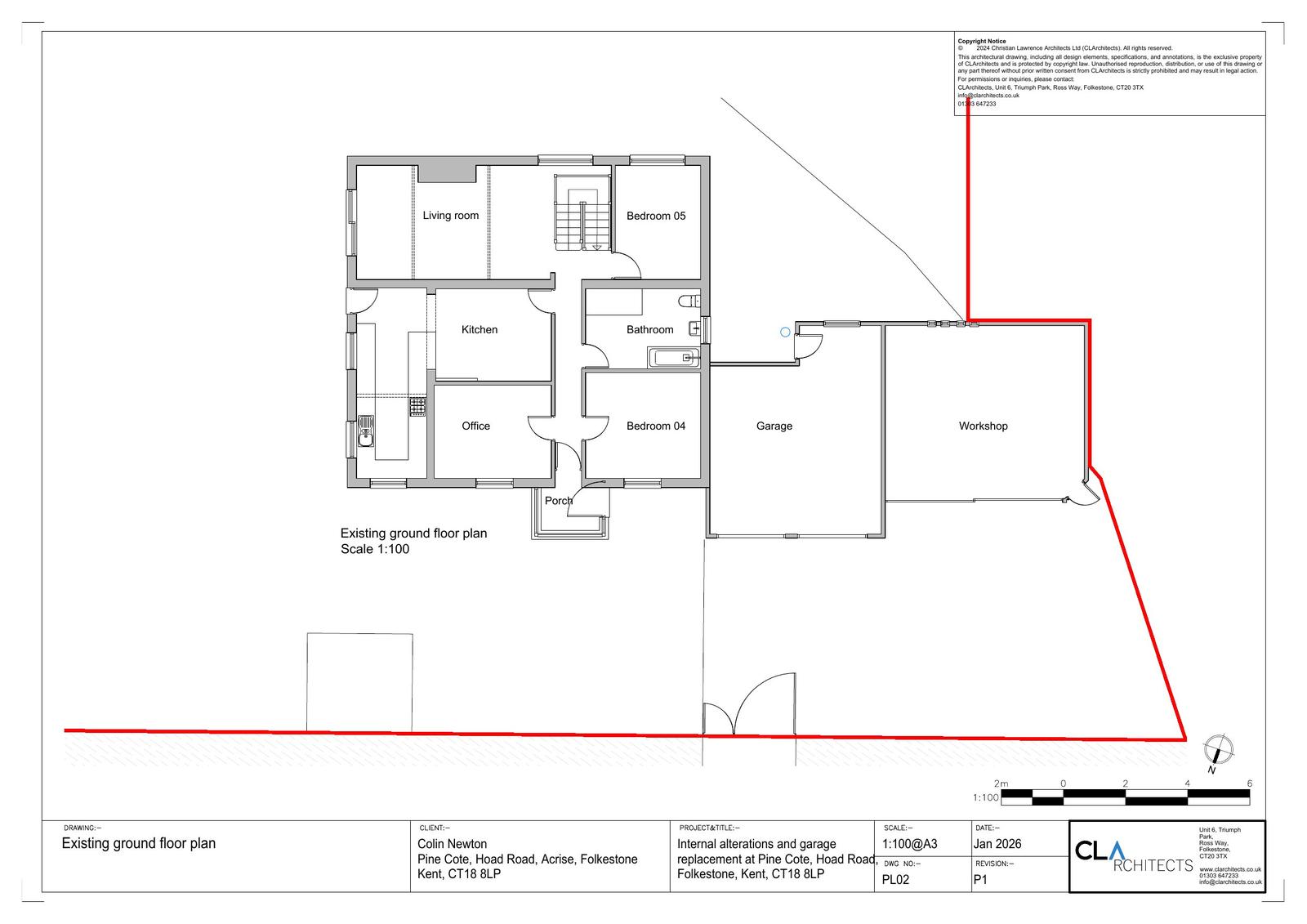
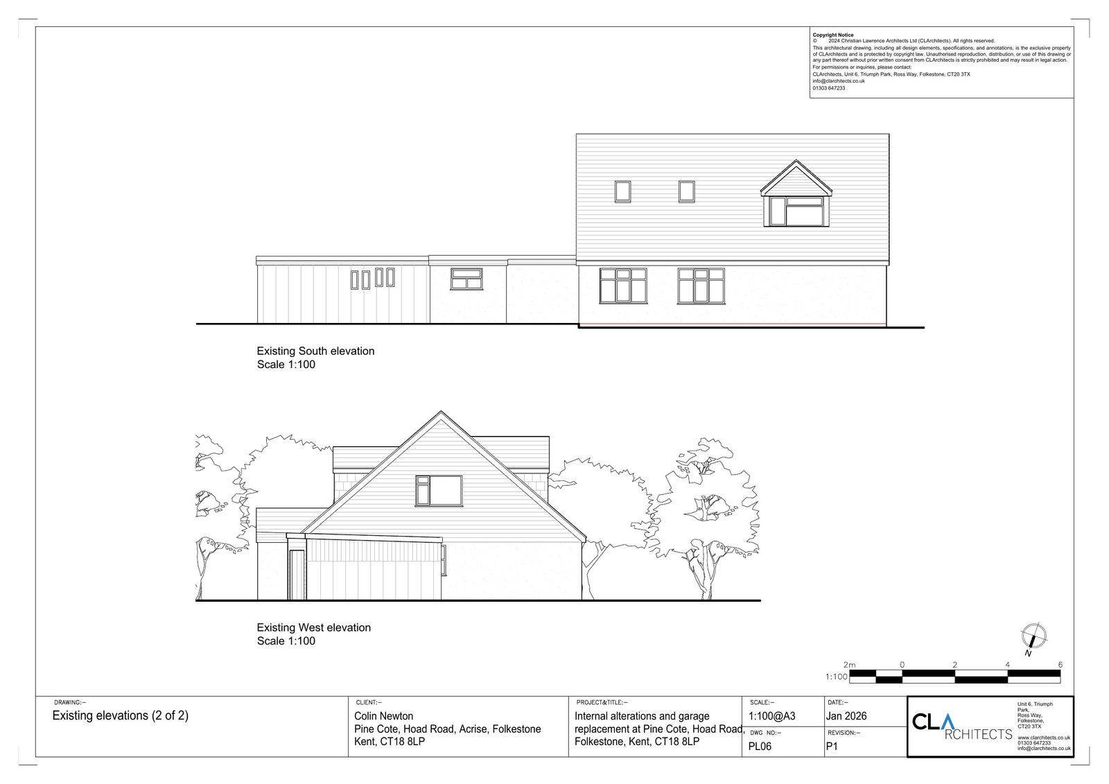
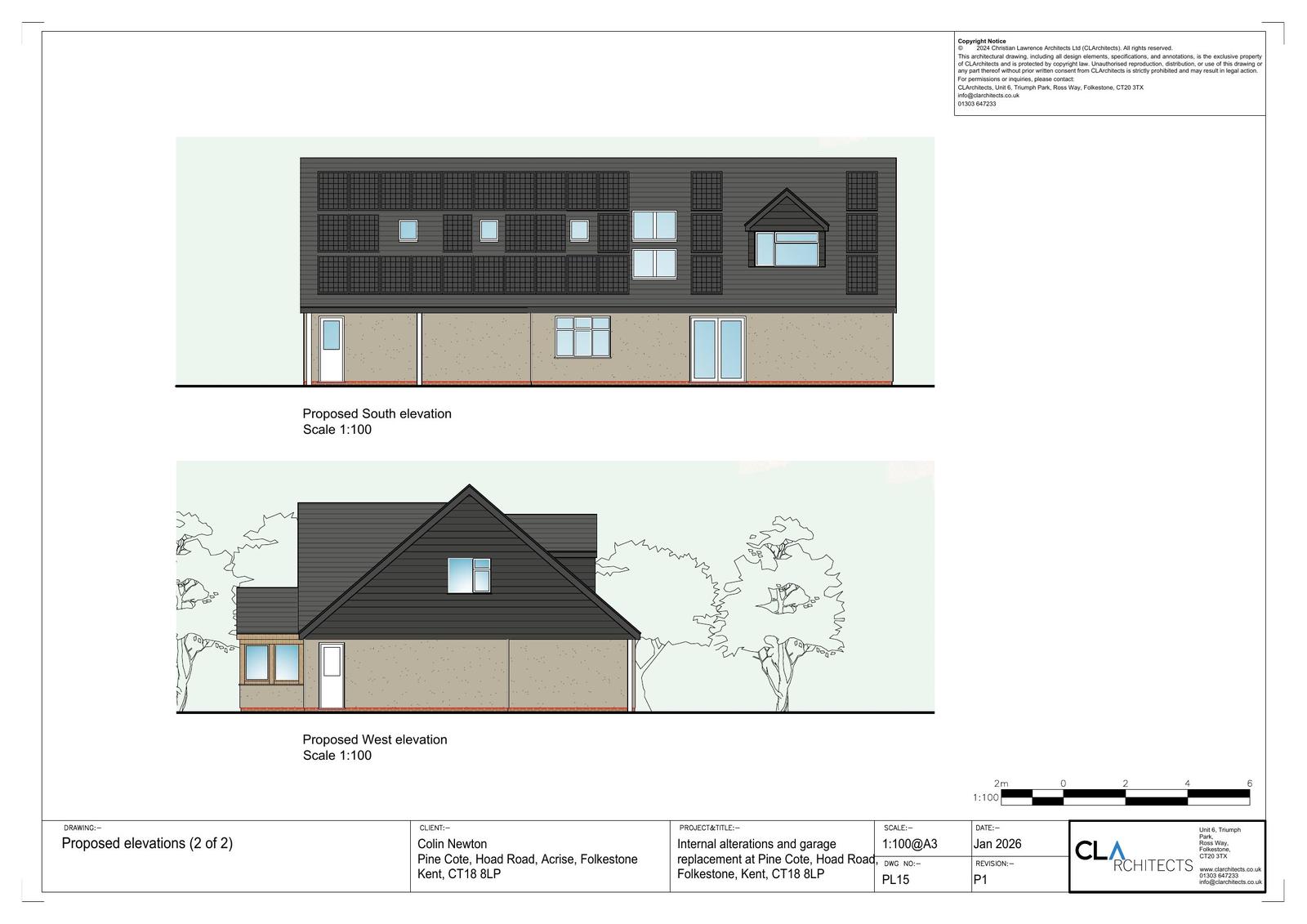
Reference 26/0141/FH Site address PINE COTE, HOAD ROAD, SWINGFIELD, FOLKESTONE, CT18 8LP Proposal Change of use of land from agricultural to residential, replacement of the existing garage with a new double garage and annex above, replacement of the existing porch, overcladding of first-floor elements and internal alterations Date valid 17/2/2026 Status Under Consultation Decision Consultation deadline date 20/3/2026

Documents

Uncategorised
Archived · Original link
Uncategorised
Archived · Original link
Uncategorised
Archived · Original link
Uncategorised
Archived · Original link
Uncategorised
Archived · Original link
Uncategorised
Archived · Original link
Uncategorised
Archived · Original link
Uncategorised
Archived · Original link
Uncategorised
Archived · Original link
Uncategorised
Archived · Original link
Uncategorised
Archived · Original link
Uncategorised
Archived · Original link
Uncategorised
Archived · Original link
Uncategorised
Archived · Original link
Uncategorised
Archived · Original link
Uncategorised
Archived · Original link
Uncategorised
Archived · Original link
Uncategorised
Archived · Original link
Uncategorised
Archived · Original link
Uncategorised
Archived · Original link

Have your say

Your comment matters. Councils must consider every representation that raises material planning considerations.

Write a comment