← Folkestone & Hythe District Council

Status

Pending House extension
Received
Not recorded
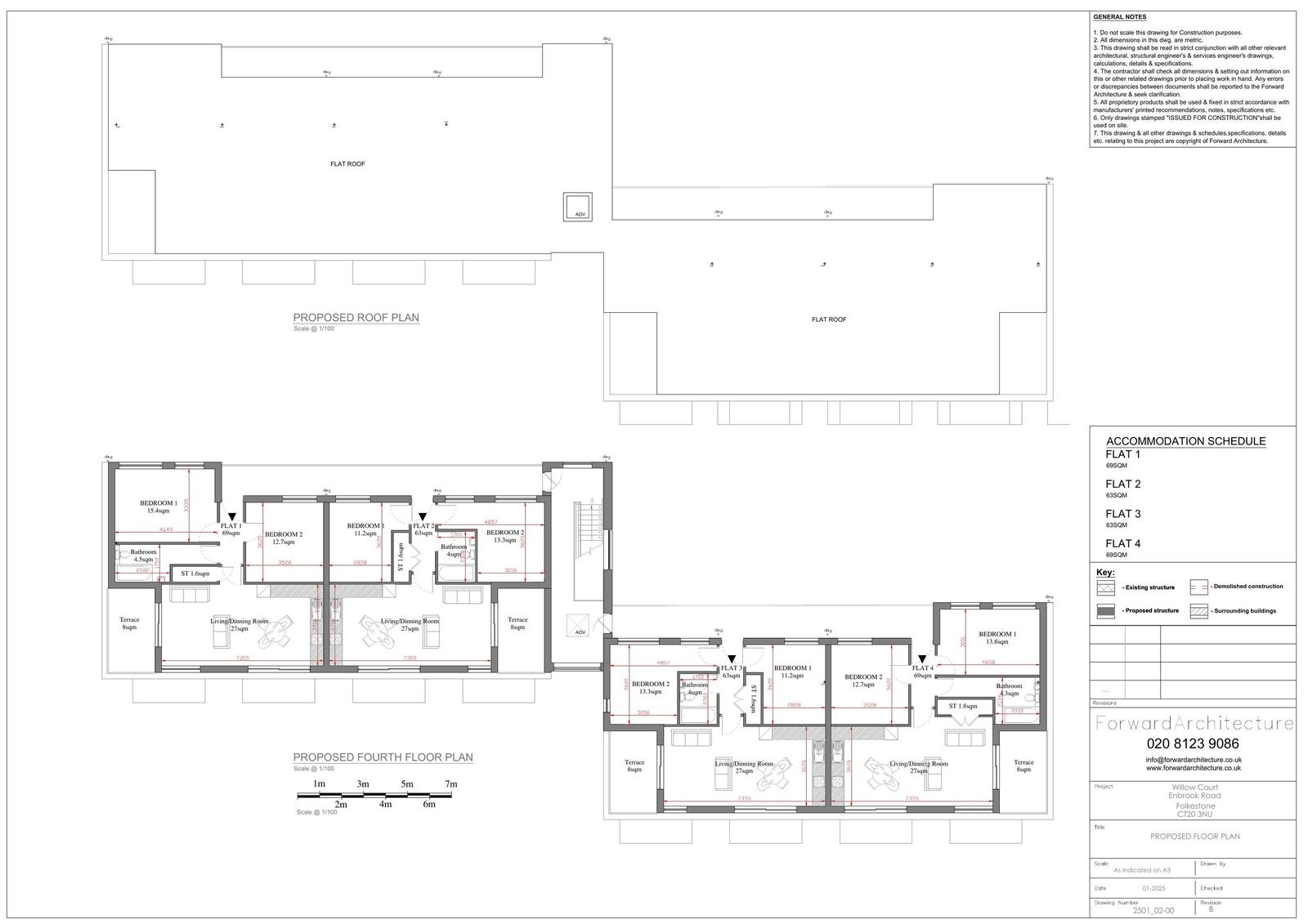
New homes
4

Full proposal

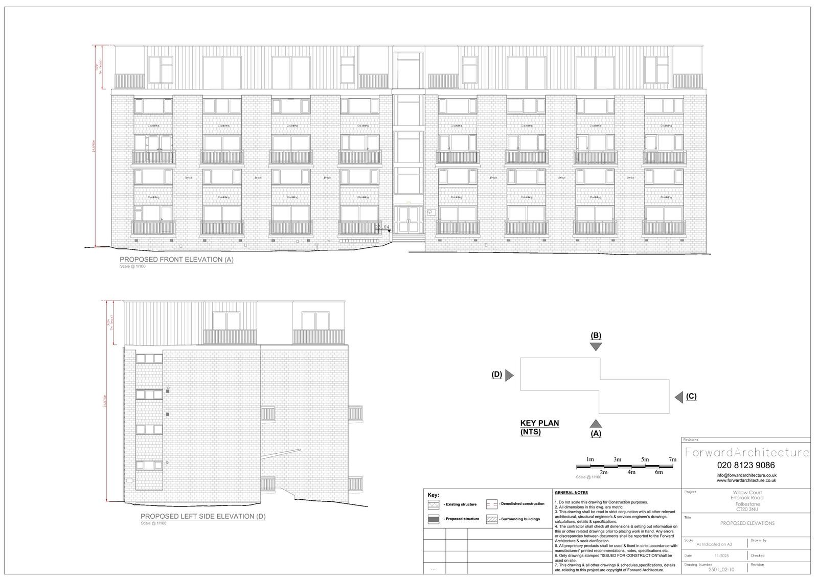
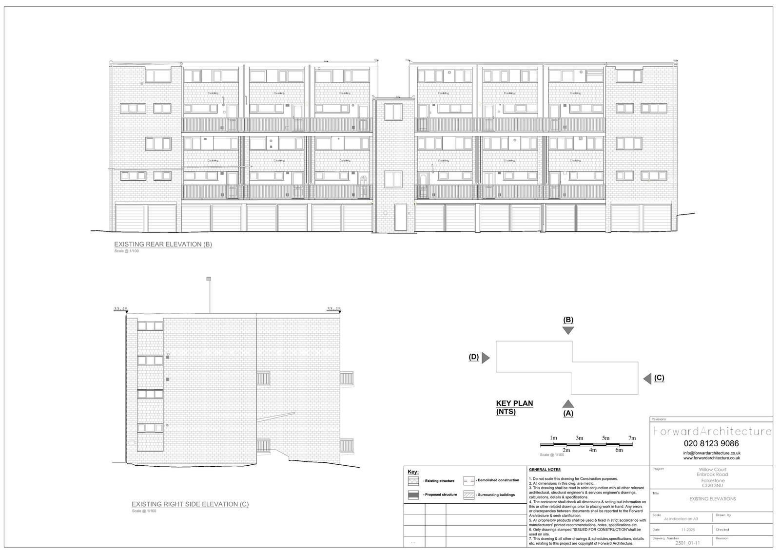
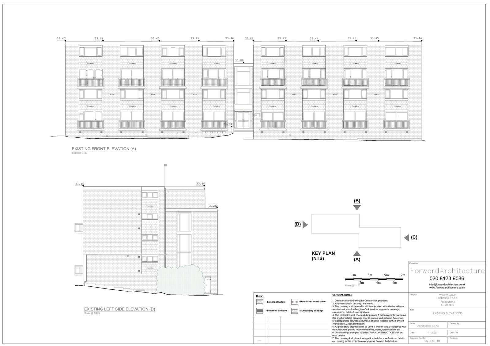
Reference 26/0168/FH/PA Site address Willow Court, Enbrook Road, Sandgate, CT20 3NU Proposal Determination as to whether the prior approval of the Local Planning Authority is required under schedule 2, part 20 - class A (General permitted development order 2015) for the erection of one storey extension on top of the existing building, to accommodate 4 no self contained dwellings. Date valid 03/2/2026 Status Closed Decision Approve with Conditions Consultation deadline date 27/2/2026

Documents

Uncategorised
Archived · Original link
Uncategorised
Archived · Original link
Uncategorised
Archived · Original link
Uncategorised
Archived · Original link
Uncategorised
Archived · Original link
Uncategorised
Archived · Original link
Uncategorised
Archived · Original link
Uncategorised
Archived · Original link
Uncategorised
Archived · Original link
Uncategorised
Archived · Original link
Uncategorised
Archived · Original link
Uncategorised
Archived · Original link
Uncategorised
Archived · Original link
Uncategorised
Archived · Original link
Uncategorised
Archived · Original link
Uncategorised
Archived · Original link
Uncategorised
Archived · Original link
Uncategorised
Archived · Original link
Uncategorised
Archived · Original link
Uncategorised
Archived · Original link
Uncategorised
Archived · Original link
Uncategorised
Archived · Original link
Uncategorised
Archived · Original link
Uncategorised
Archived · Original link
Uncategorised
Archived · Original link

Have your say

Your comment matters. Councils must consider every representation that raises material planning considerations.

Write a comment