← Folkestone & Hythe District Council

Status

Pending Change of use
Received
Not recorded
New homes
6

Full proposal

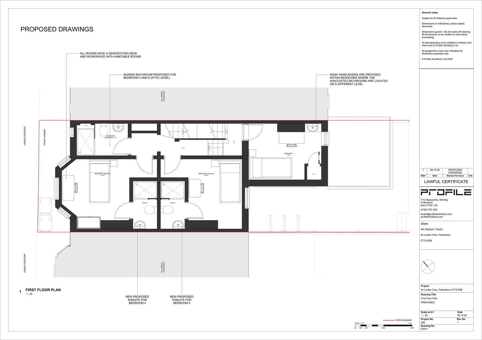
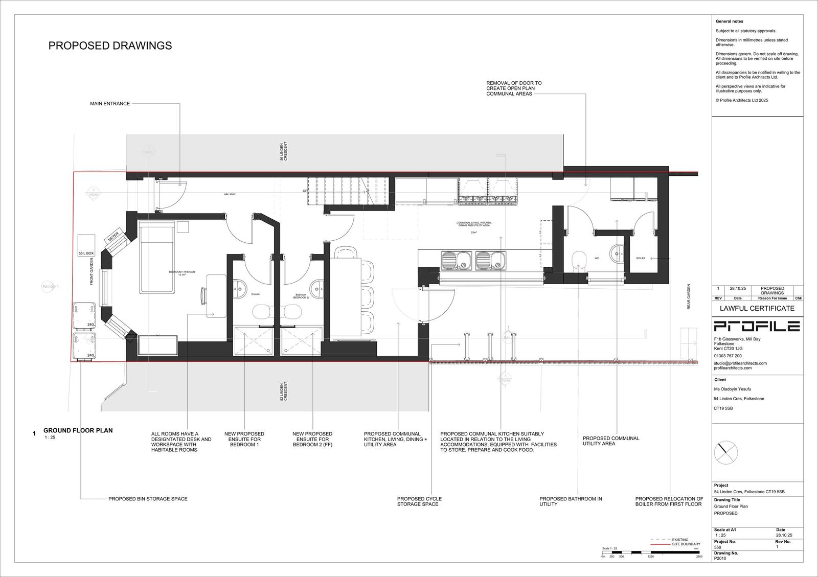
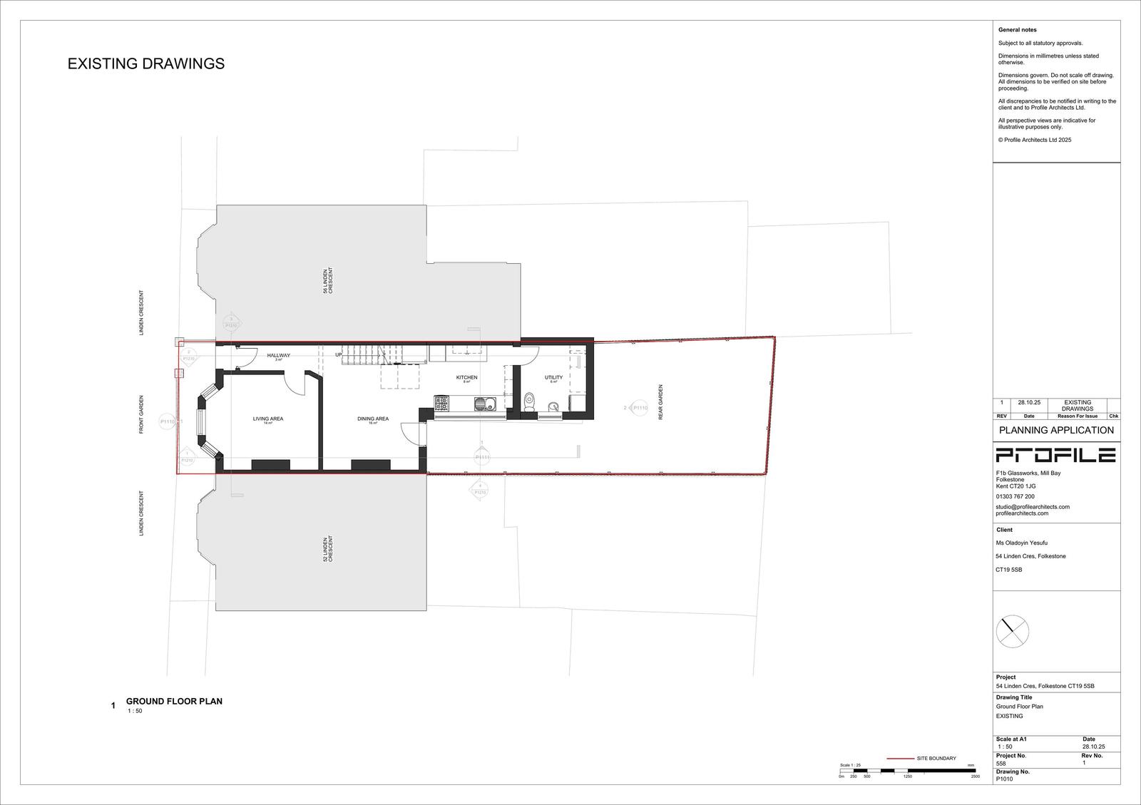
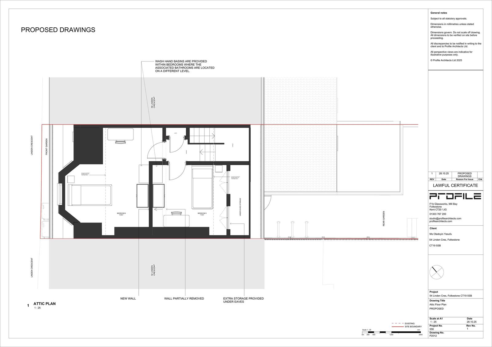
Reference 26/0170/FH Site address 54 LINDEN CRESCENT, FOLKESTONE, CT19 5SB Proposal Lawful Development Certificate (proposed) for change of use from Class 3 dwelling to 6 bed, 6 person C4 HMO. Date valid 05/2/2026 Status Valid Decision Consultation deadline date

Documents

Uncategorised
Archived · Original link
Uncategorised
Archived · Original link
Uncategorised
Archived · Original link
Uncategorised
Archived · Original link
Download (PDF, 1.8MB)
Uncategorised
Not yet archived · Original link
Uncategorised
Archived · Original link
Uncategorised
Archived · Original link
Uncategorised
Archived · Original link
Uncategorised
Archived · Original link
Uncategorised
Archived · Original link
Uncategorised
Archived · Original link
Uncategorised
Archived · Original link
Uncategorised
Archived · Original link
Uncategorised
Archived · Original link
Uncategorised
Archived · Original link
Uncategorised
Archived · Original link
Uncategorised
Archived · Original link
Uncategorised
Archived · Original link
Uncategorised
Archived · Original link
Uncategorised
Archived · Original link
Uncategorised
Archived · Original link

Have your say

Your comment matters. Councils must consider every representation that raises material planning considerations.

Write a comment