← Folkestone & Hythe District Council

Status

Pending Change of use
Received
Not recorded
New homes
0

Full proposal

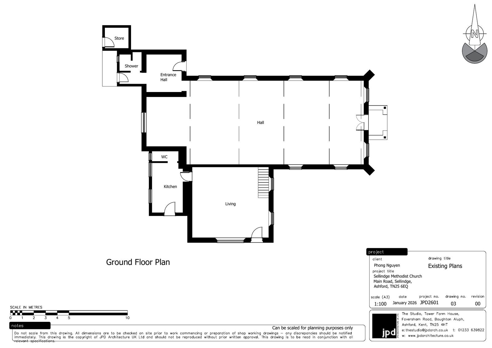
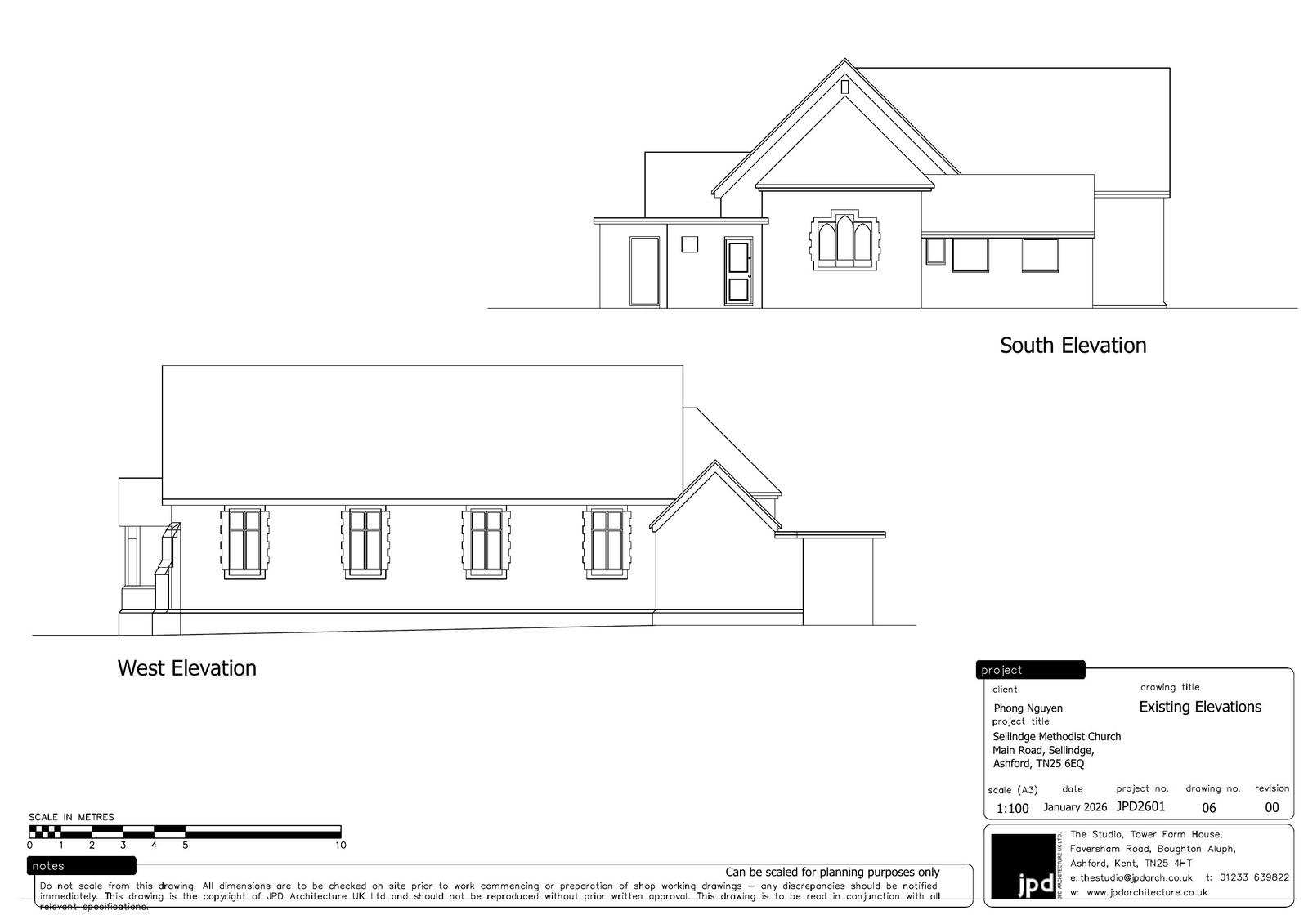
Reference 26/0176/FH Site address Sellindge Methodist Church, Main Road, Sellindge, Ashford, TN25 6EQ Proposal Construction of first floor and part conversion to managerial accommodation for associated use for community space (part retrospective). Date valid 24/2/2026 Status Under Consultation Decision Consultation deadline date 19/3/2026

Documents

Uncategorised
Archived · Original link
Uncategorised
Archived · Original link
Uncategorised
Archived · Original link
Uncategorised
Archived · Original link
Uncategorised
Archived · Original link
Uncategorised
Archived · Original link
Uncategorised
Archived · Original link
Uncategorised
Archived · Original link
Uncategorised
Archived · Original link
Uncategorised
Archived · Original link
Uncategorised
Archived · Original link
Uncategorised
Archived · Original link
Uncategorised
Archived · Original link
Uncategorised
Archived · Original link
Uncategorised
Archived · Original link
Uncategorised
Archived · Original link
Uncategorised
Archived · Original link

Have your say

Your comment matters. Councils must consider every representation that raises material planning considerations.

Write a comment