← Folkestone & Hythe District Council

Status

Pending Change of use
Received
Not recorded
New homes
0

Full proposal

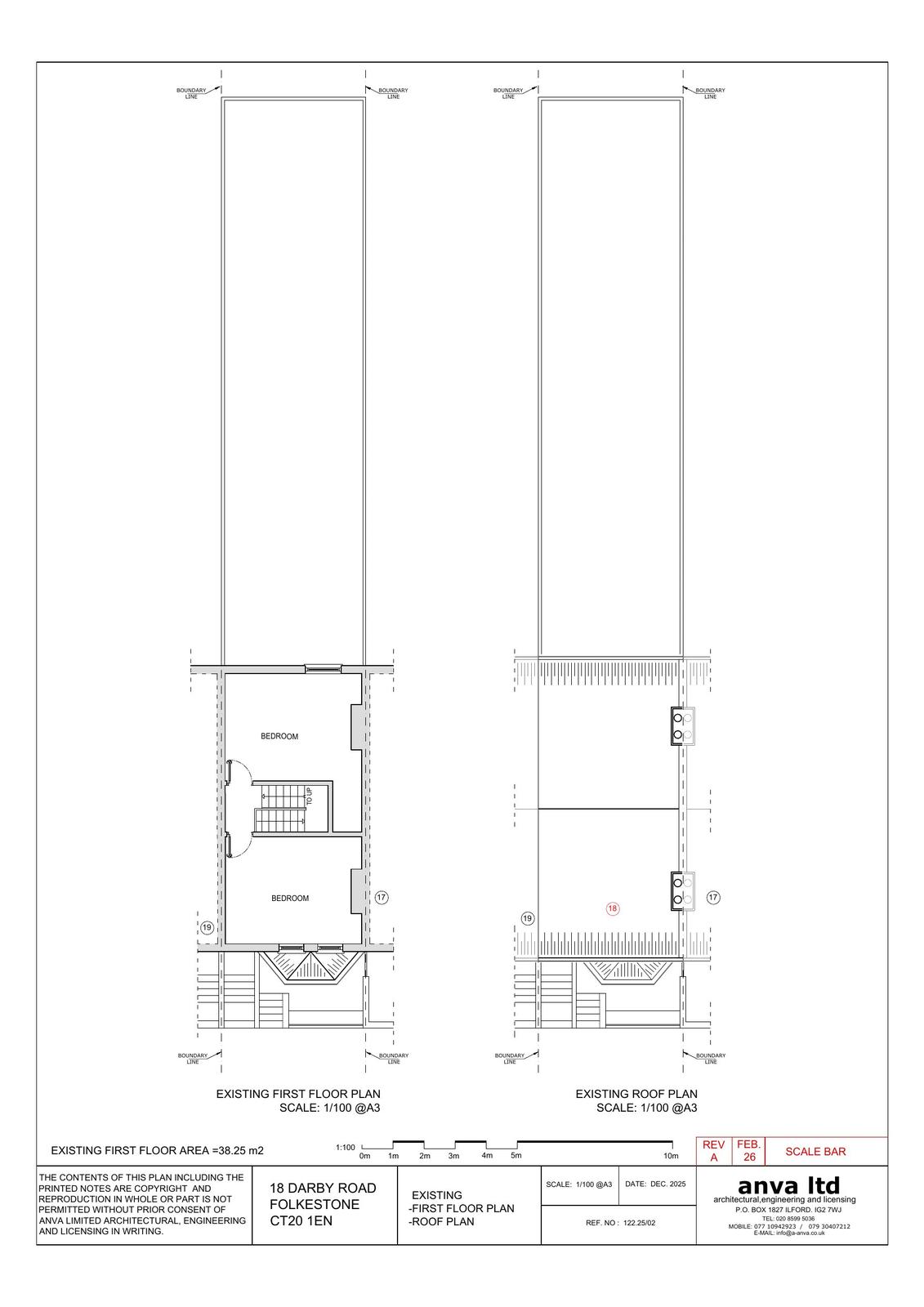
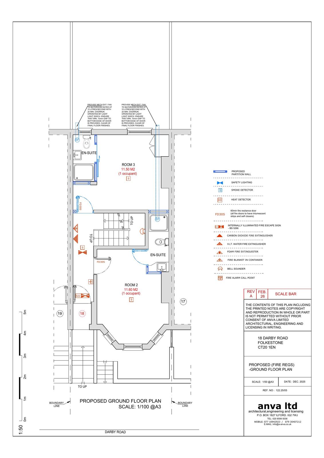
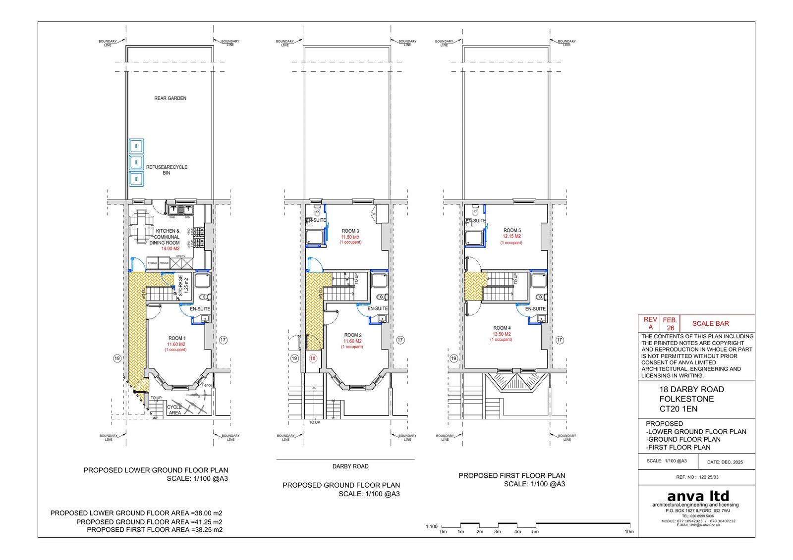
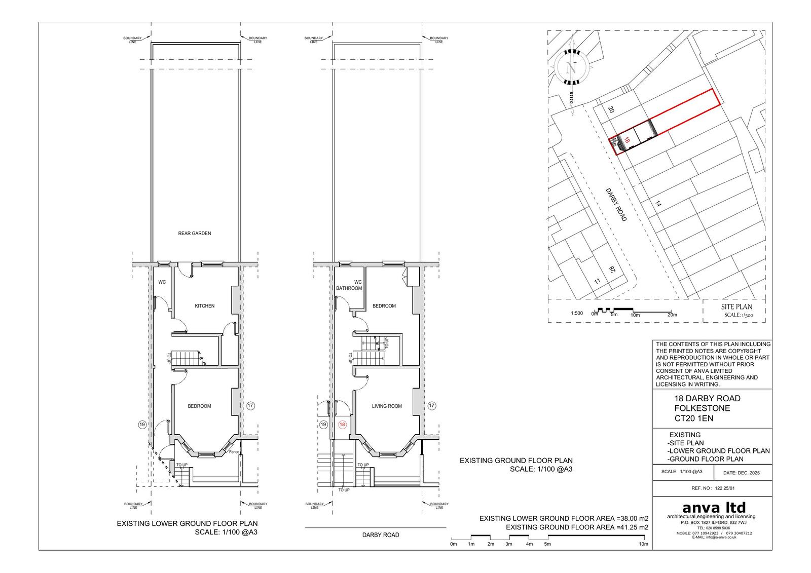
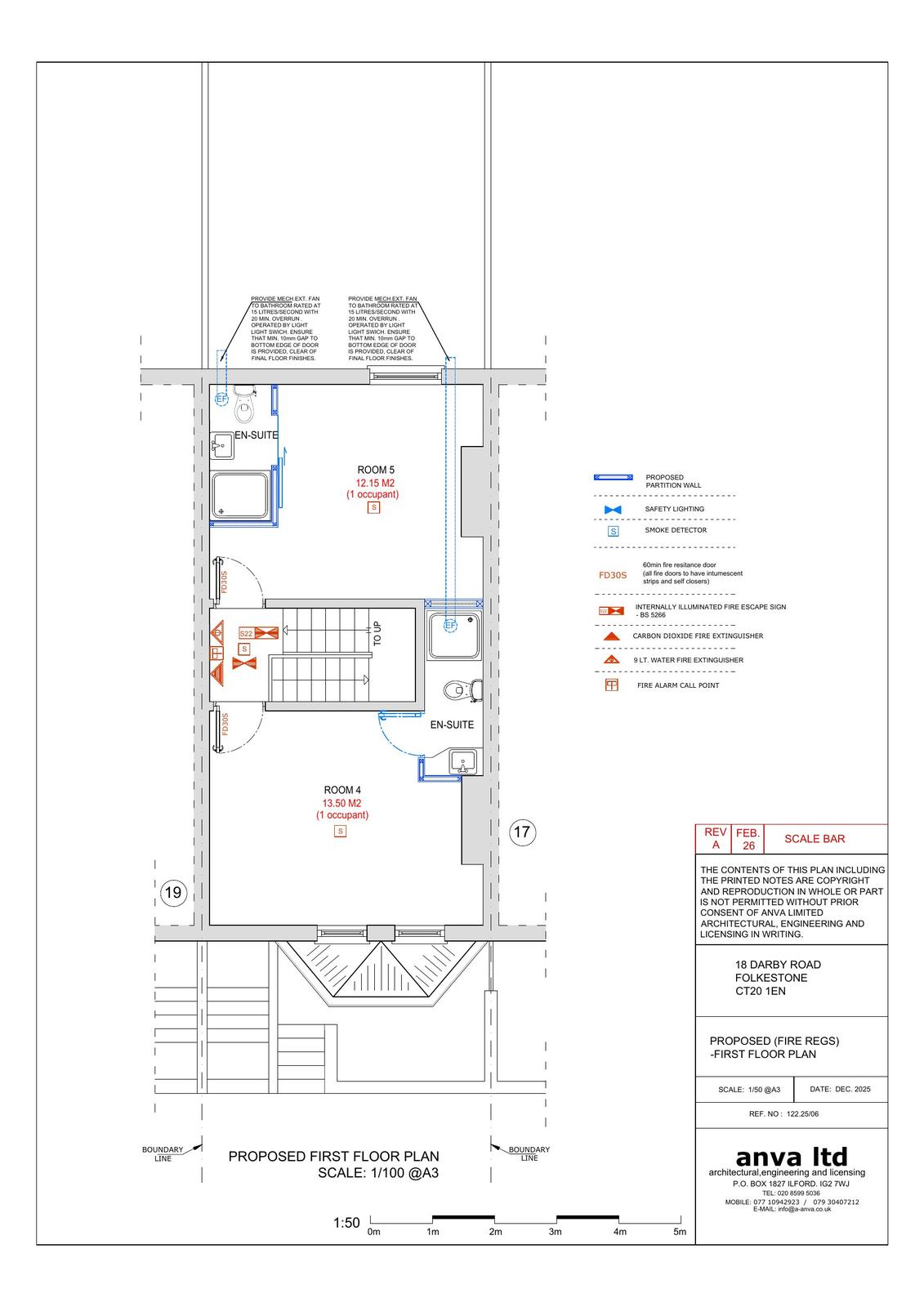
Reference 26/0181/FH Site address 18 Darby Road, Folkestone, CT20 1EN Proposal Change of use from residential (Class C3) to a five bed HMO. Date valid 17/2/2026 Status Under Consultation Decision Consultation deadline date 11/3/2026

Documents

Uncategorised
Archived · Original link
Uncategorised
Archived · Original link
Uncategorised
Archived · Original link
Uncategorised
Archived · Original link
Uncategorised
Archived · Original link
Uncategorised
Archived · Original link
Uncategorised
Archived · Original link
Uncategorised
Archived · Original link
Uncategorised
Archived · Original link
Uncategorised
Archived · Original link
Uncategorised
Archived · Original link
Uncategorised
Archived · Original link
Uncategorised
Archived · Original link
Uncategorised
Archived · Original link
Uncategorised
Archived · Original link
Uncategorised
Archived · Original link
Uncategorised
Archived · Original link

Have your say

Your comment matters. Councils must consider every representation that raises material planning considerations.

Write a comment