← Folkestone & Hythe District Council

Status

Pending House extension
Received
Not recorded
New homes
0

Full proposal

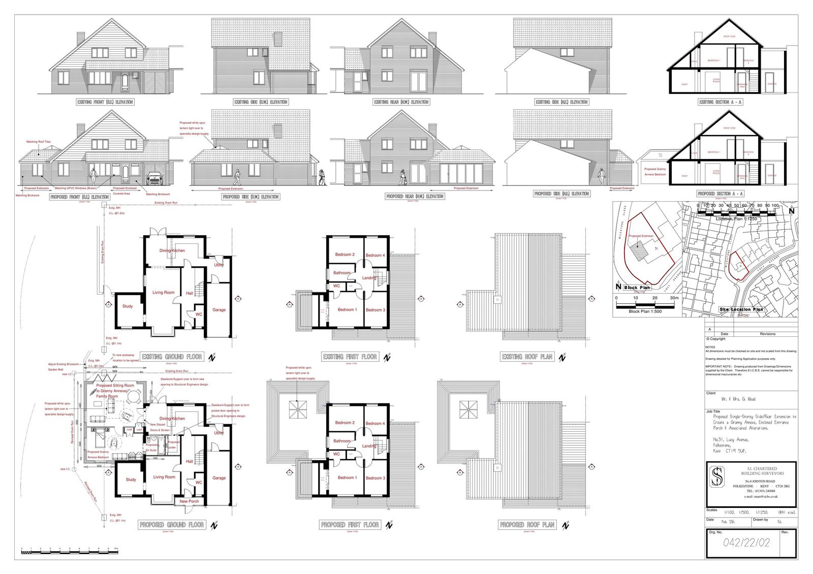
Reference 26/0194/FH Site address 31 Lucy Avenue, Folkestone, CT19 5UF Proposal Erection of a single-storey side/rear extension to create an annexe, new enclosed entrance porch & associated alterations. Date valid 11/2/2026 Status Under Consultation Decision Consultation deadline date 05/3/2026

Documents

Uncategorised
Archived · Original link
Uncategorised
Archived · Original link
Uncategorised
Archived · Original link
Uncategorised
Archived · Original link
Uncategorised
Archived · Original link

Have your say

Your comment matters. Councils must consider every representation that raises material planning considerations.

Write a comment