← Folkestone & Hythe District Council

Status

Pending House extension
Received
Not recorded
New homes
0

Full proposal

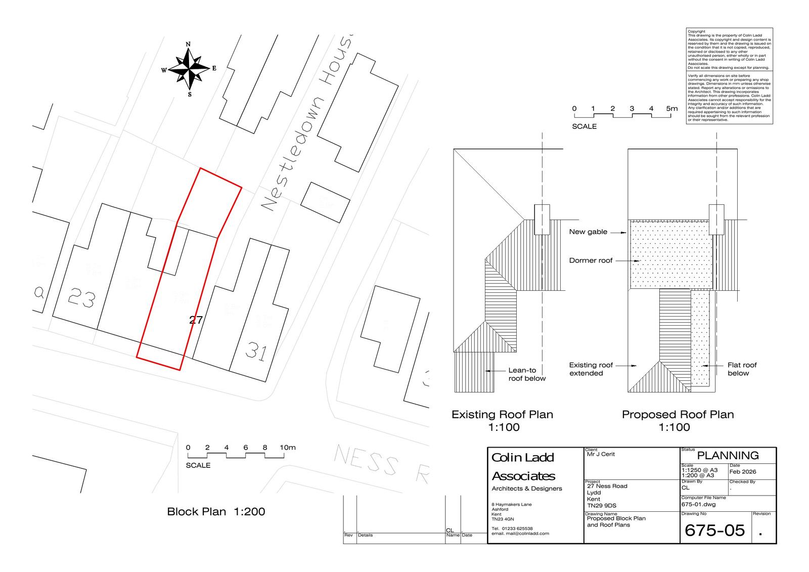
Reference 26/0270/FH Site address 27 Ness Road, Lydd, Romney Marsh, TN29 9DS Proposal Two storey rear extension, roof alterations & conversion. Date valid 23/2/2026 Status Under Consultation Decision Consultation deadline date 19/3/2026

Documents

Uncategorised
Archived · Original link
Uncategorised
Archived · Original link
Uncategorised
Archived · Original link
Uncategorised
Archived · Original link
Uncategorised
Archived · Original link
Uncategorised
Archived · Original link
Uncategorised
Archived · Original link
Uncategorised
Archived · Original link
Uncategorised
Archived · Original link

Have your say

Your comment matters. Councils must consider every representation that raises material planning considerations.

Write a comment