← Forest of Dean District Council
P0012/25/FUL
Forest of Dean District Council
Status
Consent
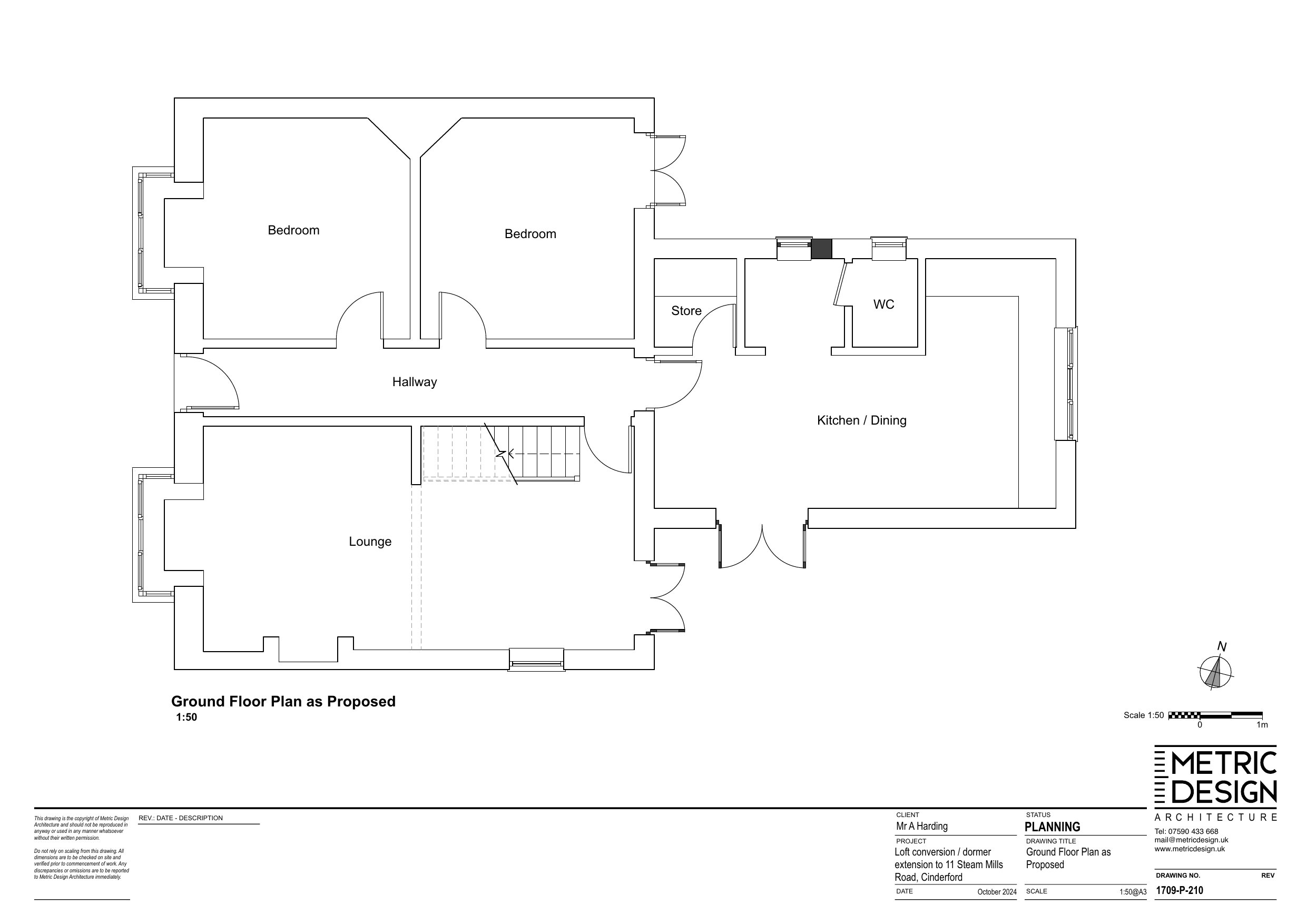
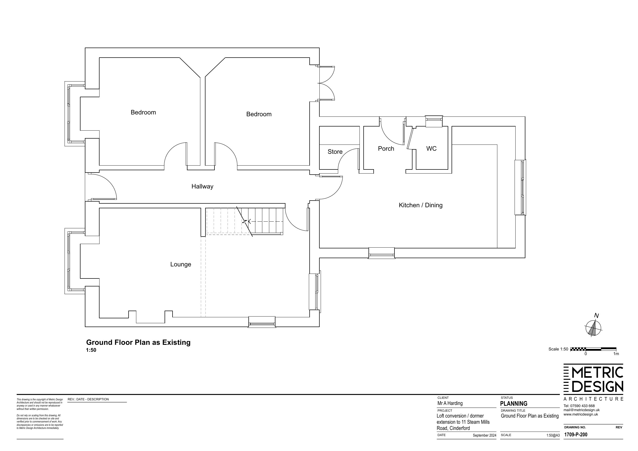
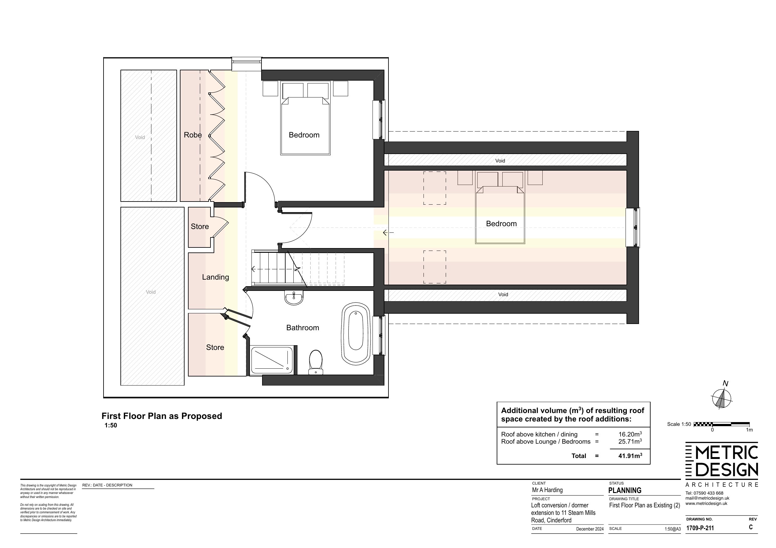
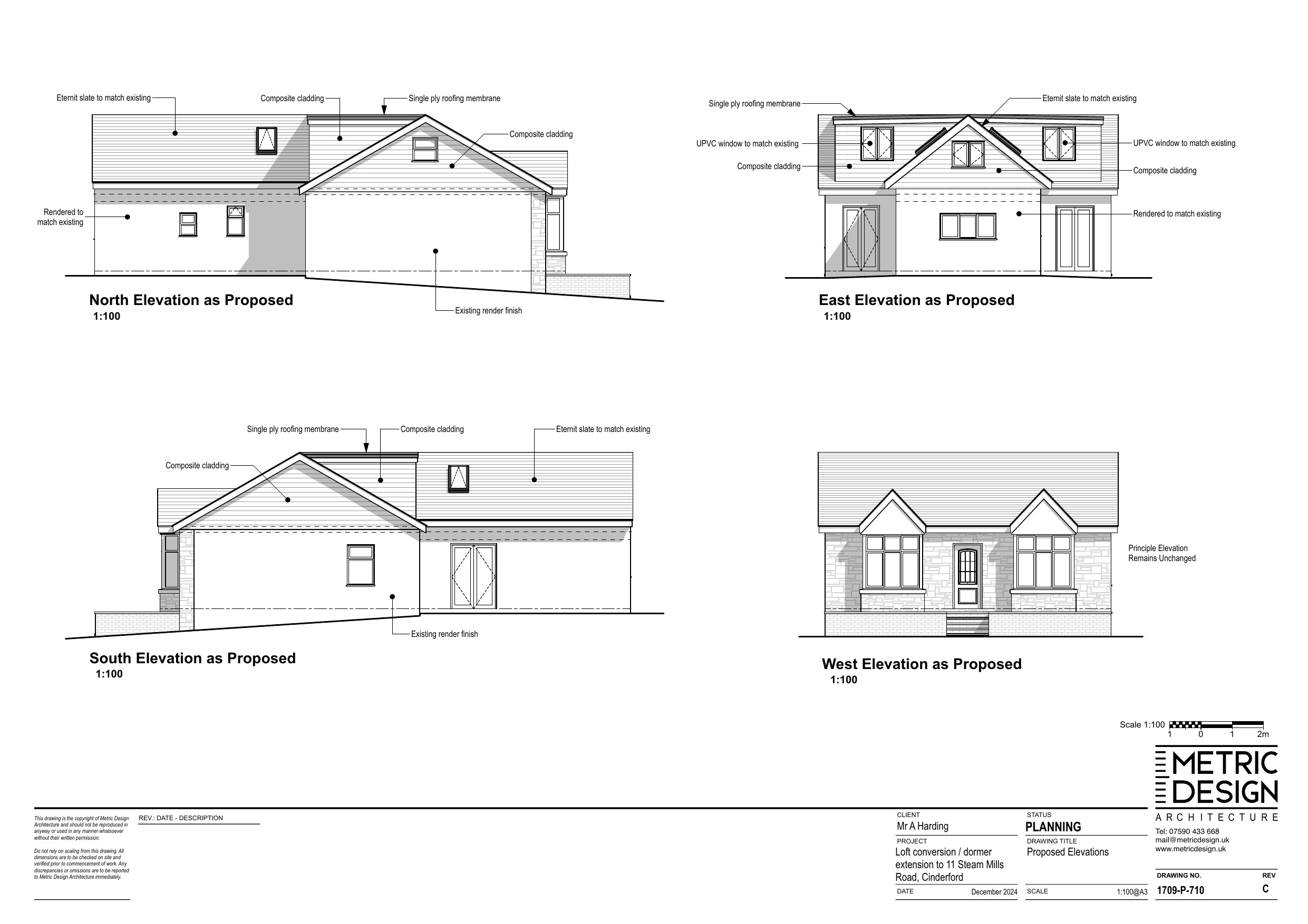
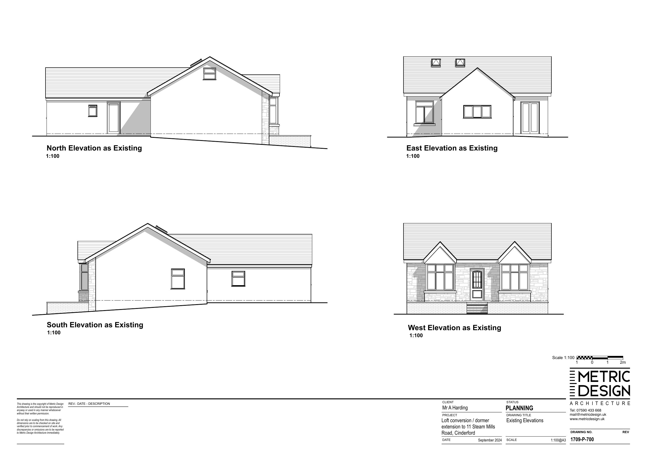
House extension
Received
07 Jan 2025
New homes
0
Full proposal
Loft Conversion to create additional bedroom
Documents
Have your say
Your comment matters. Councils must consider every representation that raises material planning considerations.