← Forest of Dean District Council

Status

Consent Commercial
Received
07 Jan 2025
New homes
0

Full proposal

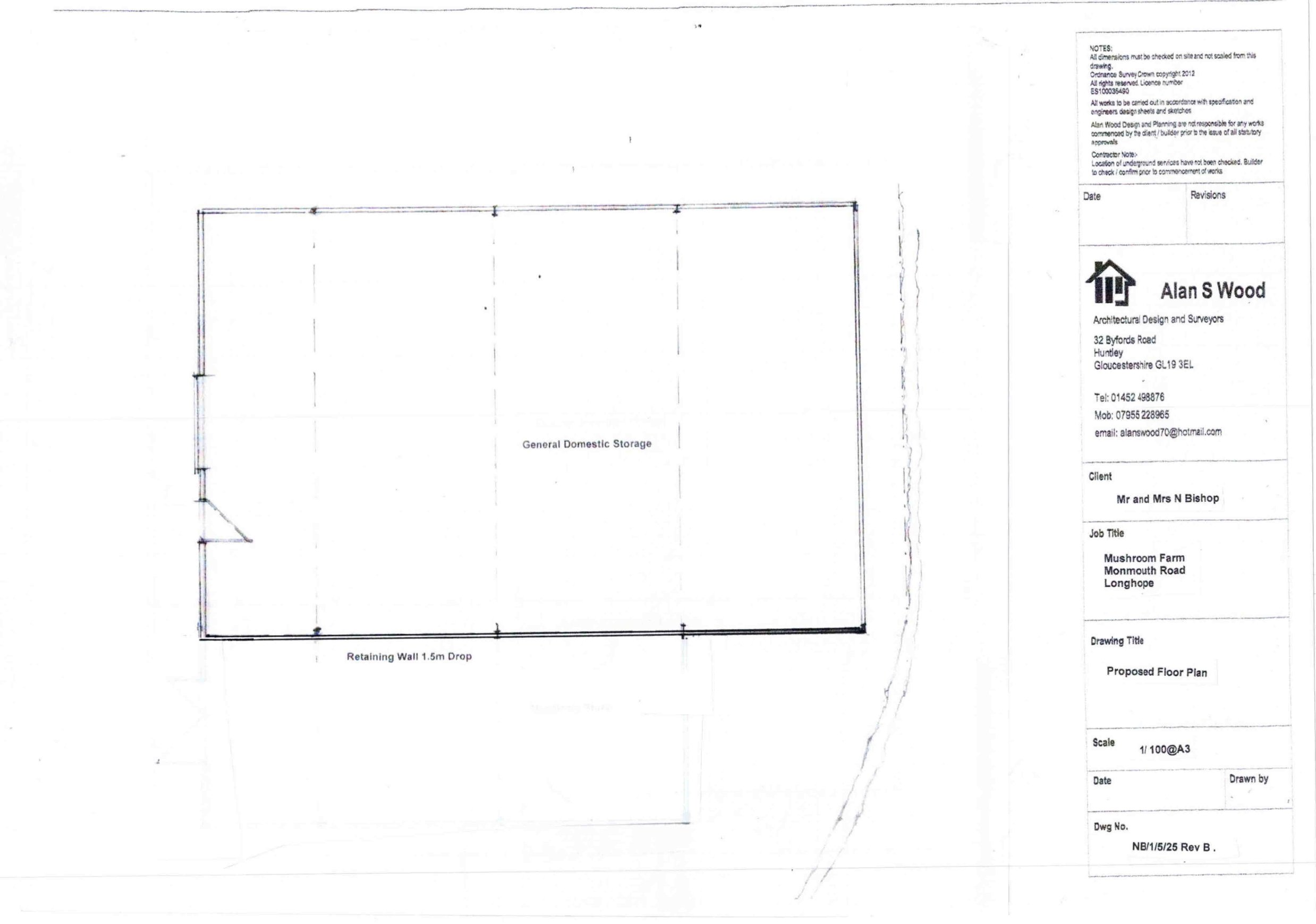
Erection of storage building for general use and demolition of existing building and associated works

Documents

Correspondence
Archived · Original link
Application Form
Archived · Original link
DC8
DC8
Archived · Original link
Decision
Archived · Original link
Report
Archived · Original link
Correspondence
Archived · Original link
Consultee Comment
Archived · Original link
Consultee Comment
Archived · Original link
Officer report
Archived · Original link
Photographs
Archived · Original link
Correspondence
Archived · Original link
Revised information
Archived · Original link
Revised information
Archived · Original link
Public Comment
Archived · Original link
Revised information
Archived · Original link
Site Notice
Archived · Original link
Consultee Comment
Archived · Original link
Consultee Comment
Archived · Original link

Have your say

Your comment matters. Councils must consider every representation that raises material planning considerations.

Write a comment