← Forest of Dean District Council
P0015/26/FUL
Forest of Dean District Council
Status
Consent
House extension
Received
06 Jan 2026
New homes
0
Full proposal
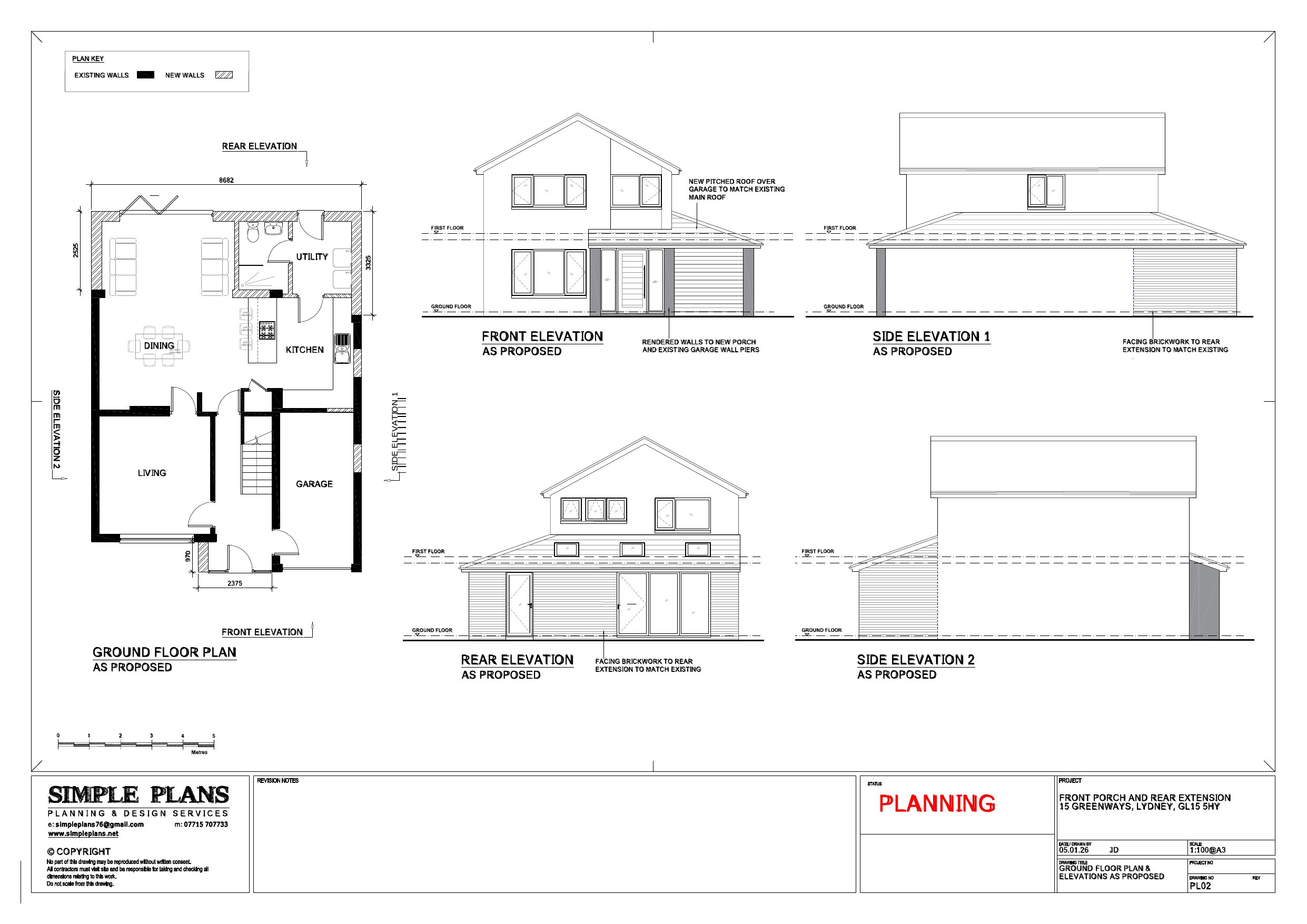
Erection of a front porch, single storey rear extension and replacement roof over integrated garage
Documents
Have your say
Your comment matters. Councils must consider every representation that raises material planning considerations.