← Back to Forest of Dean District Council

Status

Consent
Received 09 Jan 2025
New dwellings n/a

What you can do

Take Action

Make your voice heard. Authorities need to hear from people who support new homes.

Summary

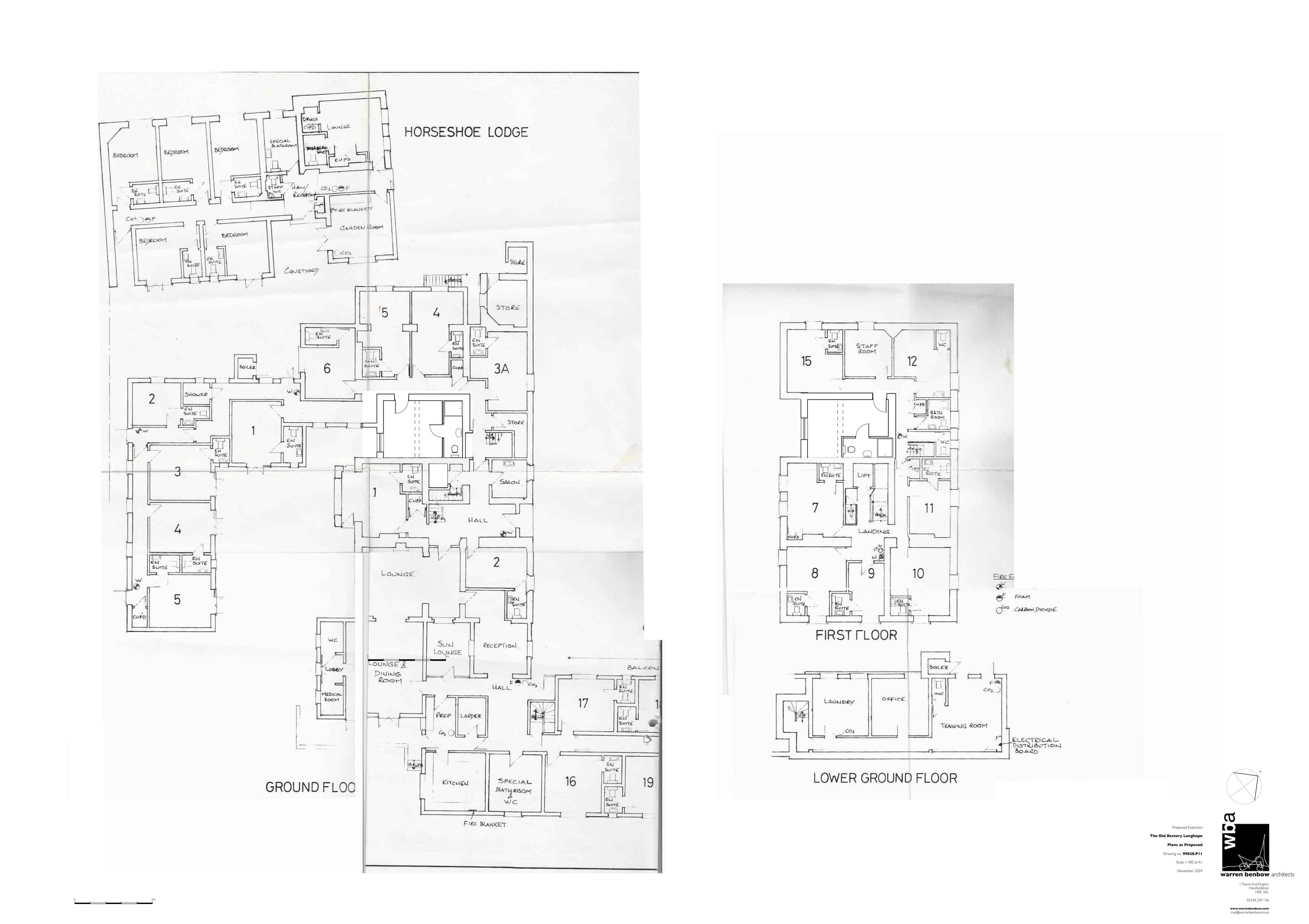
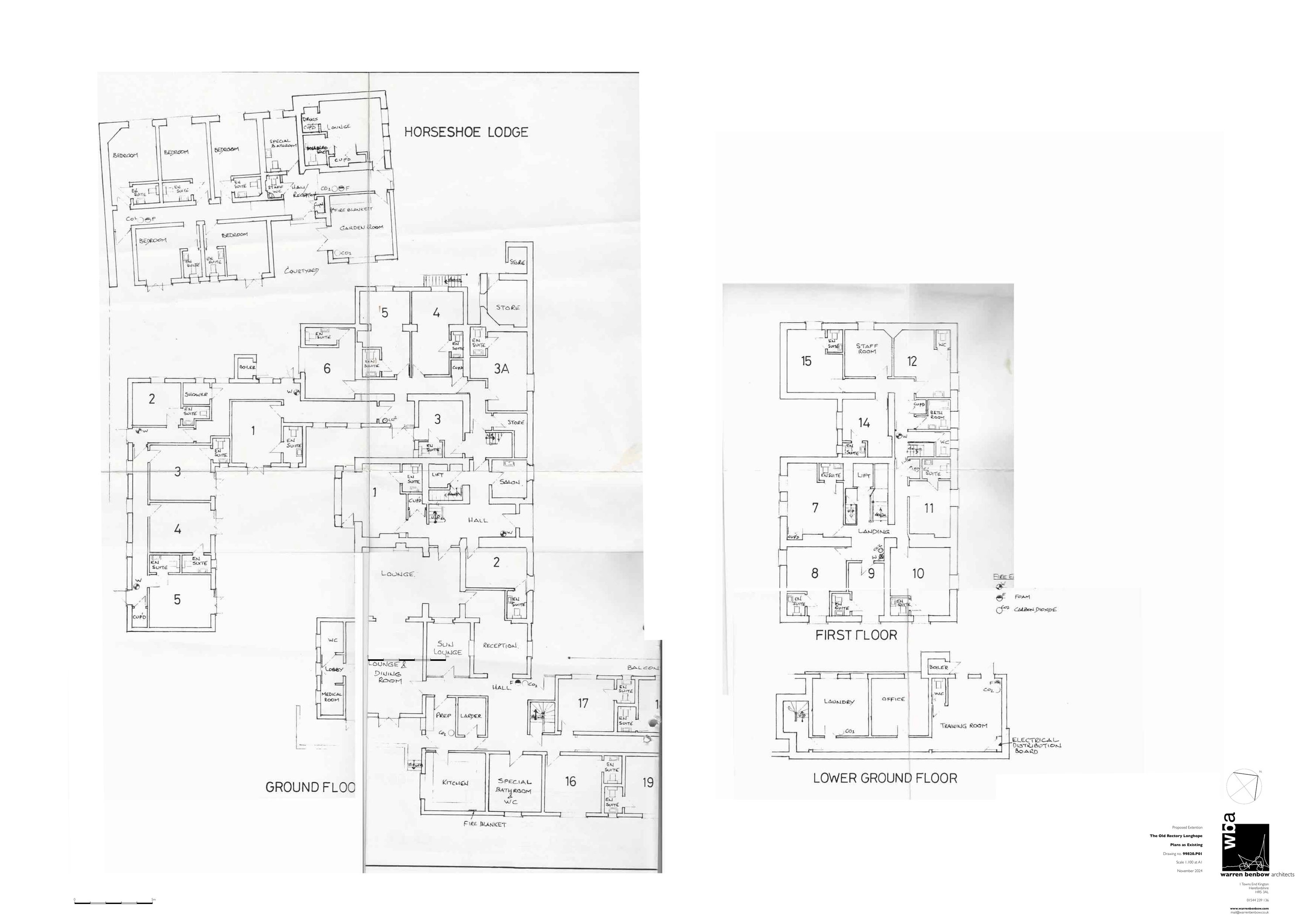
Two-storey extension enlarging two residential rooms.

Full Proposal

Erection of a small two storey extension to enable two residential rooms to be increased in size

Detail pages

Documents

Application Form
Application Form
Not downloaded · Council link
BIODIVERSITY SELF ASSESSMENT
Report
Not downloaded · Council link
BLOCK PLAN
Drawing
Not downloaded · Council link
CONSERVATION OFFICER
Consultee Comment
Not downloaded · Council link
DC8
DC8
Not downloaded · Council link
Decision
Decision
Not downloaded · Council link
DESIGN, ACCESS & HERITAGE STATEMENT
Report
Not downloaded · Council link
EXISTING FLOOR PLANS
Drawing
Not downloaded · Council link
EXISTING SOUTHWEST ELEVATION
Drawing
Not downloaded · Council link
LOCATION PLAN
Drawing
Not downloaded · Council link
Officer report
Officer report
Not downloaded · Council link
PROPOSED FLOOR PLANS
Drawing
Archived copy · Council link
PROPOSED SOUTHWEST ELEVATION
Drawing
Not downloaded · Council link
Site Notice
Site Notice
Not downloaded · Council link