← Back to Forest of Dean District Council
Status
Consent
Received
09 Jan 2025
New dwellings
n/a
What you can do
Take Action
Make your voice heard. Authorities need to hear from people who support new homes.
Summary
Demolish B2 building and erect three Class E research/light-industrial units, with access and landscaping.
Full Proposal
Demolition of existing general industrial (B2) building accommodating two units and erection of three employments units to be used for Class E (ii) the research and development of products or processes; and / or (iii) a light industrial use being any industrial process, being a use, which can be carried out in any residential area without detriment to the amenity of that area by reason of noise, vibration, smell, fumes, smoke, soot, ash, dust or grit purposes only. Provision of vehicular access and parking / manoeuvring area together with the landscaping of the site.
Documents
? SURFACE WATER DRAINAGE MAINTENANCE SCHEDULE RECEIVED 08.04.2025
Additional information
AGENT/OFFICER EMAIL RE CONSULTEE COMMENTS
Correspondence
Application Form
Application Form
APPROPRIATE ASSESSMENT UNDER REGULATION 63 OF THE CONSERVATION OF HABITATS & SPE
Consultee Comment
ARBORICULTURAL REPORT
Report
ATTACHMENT - LAND DRAINAGE OFFICER
Consultee Comment
ATTACHMENT - LAND DRAINAGE OFFICER
Consultee Comment
ATTACHMENT - LAND DRAINAGE OFFICER
Consultee Comment
ATTACHMENT TO GO WITH FLOOD RISK MANAGEMENT OFFICER COMMENTS
Consultee Comment
ATTACHMENT TO GO WITH FLOOD RISK MANAGEMENT OFFICER COMMENTS
Consultee Comment
ATTACHMENT TO GO WITH FLOOD RISK MANAGEMENT OFFICER COMMENTS
Consultee Comment
ATTACHMENT TO GO WITH FLOOD RISK MANAGEMENT OFFICER COMMENTS
Consultee Comment
BAT ACTIVITY REPORT
Report
BIO-DIVERSITY METRIC CALCULATION TOOL RECEIVED 15.05.2025?
Report
BIO-DIVERSITY NET GAIN REPORT
Report
BIODIVERSITY NET GAIN FEASIBILITY REPORT RECEIVED 15.05.202
Report
BIODIVERSITY NET GAIN STATEMENT
Report
BIODIVERSITY SELF ASSESSMENT
Report
BNG CONDITION ASSESSMENT RECEIVED 15.05.2025
Report
DESIGN AND ACCESS STATEMENT
Report
DISTRICT LICENCE REPORT RECEIVED 01.07.2025
Report
DRAINAGE CALCULATIONS RECEIVED 08.04.2025
Additional information
DRAINAGE DOCUMENTATION - STORM NETWORK
Report
E-MAIL CORRESPONDENCE BETWEEN AGENT AND PLANNING OFFICER REGARDING CONTAMINATED
Correspondence
E-MAIL FROM AGENT 05.06.2025
Correspondence
E-MAIL FROM AGENT AGREEING TO FORMAL CHANGE TO DESCRIPTION OF PROPOSED DEVELOPME
Correspondence
E-MAIL FROM AGENT DATED 02.05.2025
Correspondence
E-MAIL FROM AGENT DATED 13.06.2025
Correspondence
E-MAIL FROM AGENT DATED 15/04/2025 AGREEING EXTENSION OF TIME UNTIL 18/07/2025?
Correspondence
E-MAIL FROM AGENT RECEIVED 02.07.2025
Correspondence
E-MAIL FROM AGENT RECEIVED 04.02.2025
Correspondence
E-MAIL FROM AGENT RECEIVED 29.01.2025
Correspondence
E-MAIL FROM ECOLOGIST FOR APPLICANT RECEIVED 15.05.2025
Correspondence
E-MAIL FROM ECOLOGIST TO PLANNING OFFICER 27.03.2025
Correspondence
E-MAIL FROM PLANNING OFFICER TO AGENT 06.02.2025
Refund form
E-MAIL FROM PLANNING OFFICER TO AGENT 11.02.2025
Correspondence
E-MAIL FROM PLANNING OFFICER TO AGENT 19.02.2025?
Correspondence
E-MAIL FROM PLANNING OFFICER TO AGENT 29.04.2025
Correspondence
E-MAIL FROM PLANNING OFFICER TO AGENT 29.04.2025
Correspondence
E-MAIL FROM PLANNING OFFICER TO AGENT REGARDING BNG METRIC 27.03.2025?
Correspondence
ECOLOGY
Consultee Comment
ECOLOGY
Consultee Comment
ECOLOGY LSE
Consultee Comment
EXISTING ELEVATIONS & FLOOR PLANS
Drawing
EXISTING FIRST FLOOR PLAN 05.06.2025
Drawing
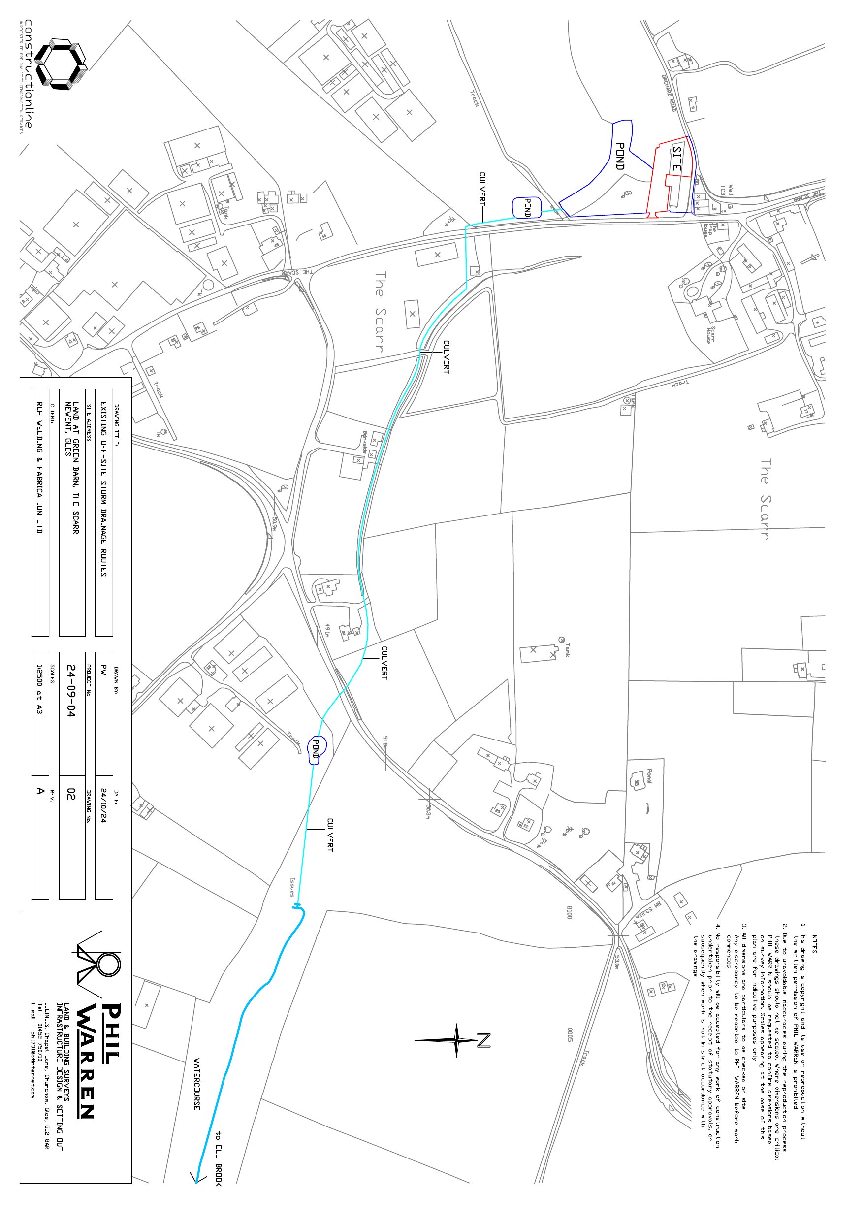
EXISTING OFF SITE STORM DRAINAGE ROUTES
Drawing
EXISTING OFF-SITE STORM DRAINAGE ROUTES DRAWING RECEIVED 08.04.2025
Drawing
FLOOD RISK MANAGEMENT OFFICER
Consultee Comment
FURTHER E-MAIL VIEWS FROM FLOOD RISK MANAGEMENT OFFICER 25.02.2025
Consultee Comment
FURTHER EMAIL VIEW FROM GCC HIGHWAYS RETRACTING PREVIOUSLY EXPRESSED VIEWS
Consultee Comment
FURTHER NEIGHBOUR OBJECTION RECEIVED 26.02.2025?
Public Comment
FURTHER VIEWS FROM ENVIRONMENTAL HEALTH
Consultee Comment
FURTHER VIEWS OF FLOOD RISK MANAGEMENT OFFICER ? NO OBJECTION RECEIVED 28.04.202
Consultee Comment
FURTHER VIEWS OF SUSTAINABILITY (ECOLOGY)
Consultee Comment
FURTHER VIEWS OF SUSTAINABILITY (ECOLOGY) ? NO OBJECTION SUBJECT TO CONDITIONS R
Consultee Comment
GCC (HIGHWAYS) ? NO OBJECTION
Consultee Comment
GCC HIGHWAYS
Consultee Comment
GCC HIGHWAYS
Consultee Comment
HSE PLANNING ADVICE WEB SELFSERVE
Consultee Comment
IMPACT PLAN FOR GCN DISTRICT LICENSING RECEIVED 01.07.2025
Report
LAND DRAINAGE OFFICER
Consultee Comment
NATIONAL GAS TRANSMISSION
Consultee Comment
NATURAL ENGLAND
Consultee Comment
NATURAL ENGLAND - ANNEX A
Public Comment
NATURESPACE BEST PRACTICE PRINCIPLES RECEIVED 01.07.2025
Report
NATURESPACE PART 1 MITIGATION PRINCIPLES RECEIVED 01.07.2025
Report
Officer report
Officer report
PLAN OF SEVERN TRENT WATER ASSETS RECEIVED 21.02.2025
Drawing
PRELIMINARY ECOLOGICAL APPRAISAL
Report
PRELIMINARY ECOLOGICAL APPRAISAL RECEIVED 15.05.2025
Report
PROPOSED ELEVATIONS, FLOOR PLANS & MATERIALS
Drawing
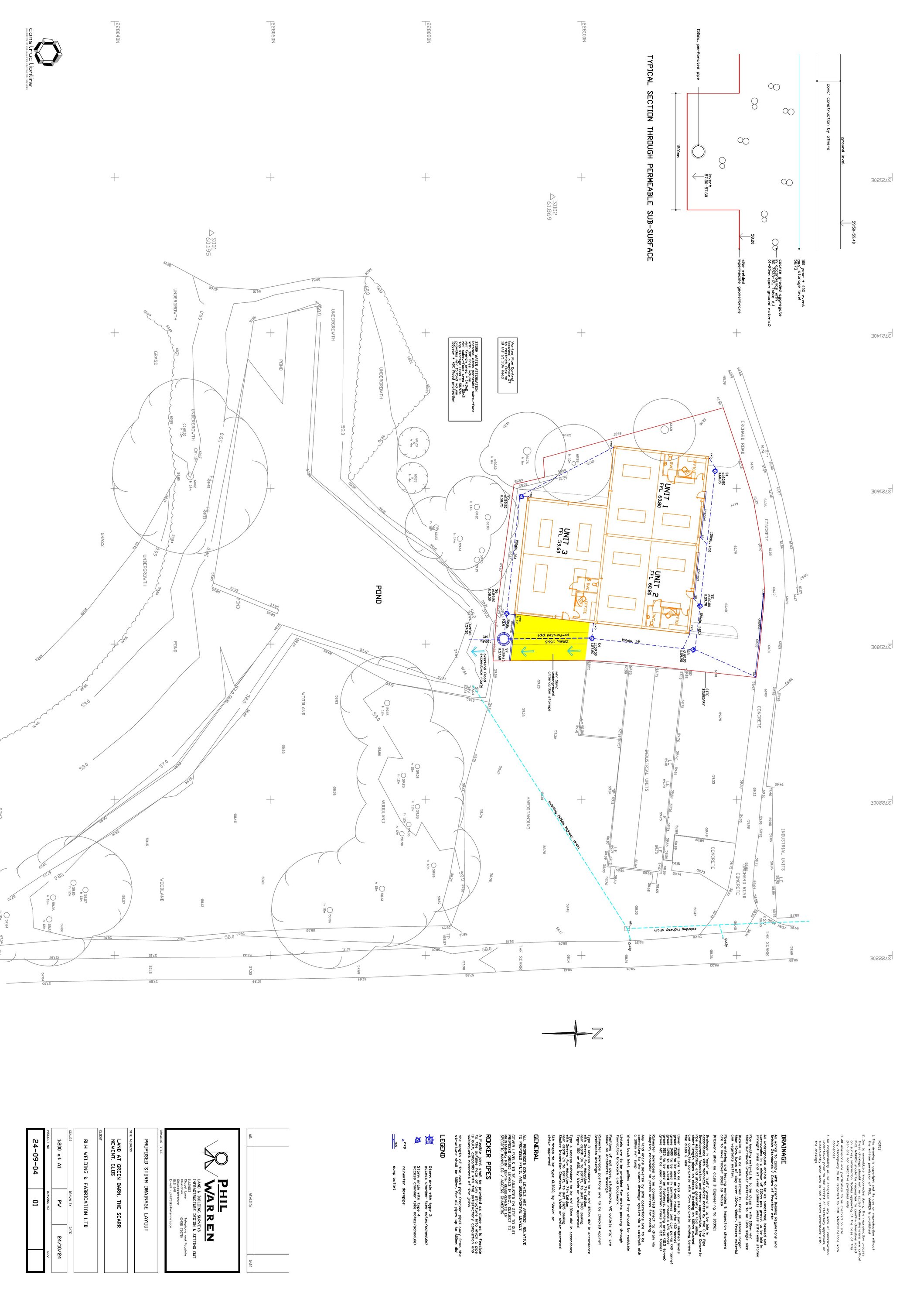
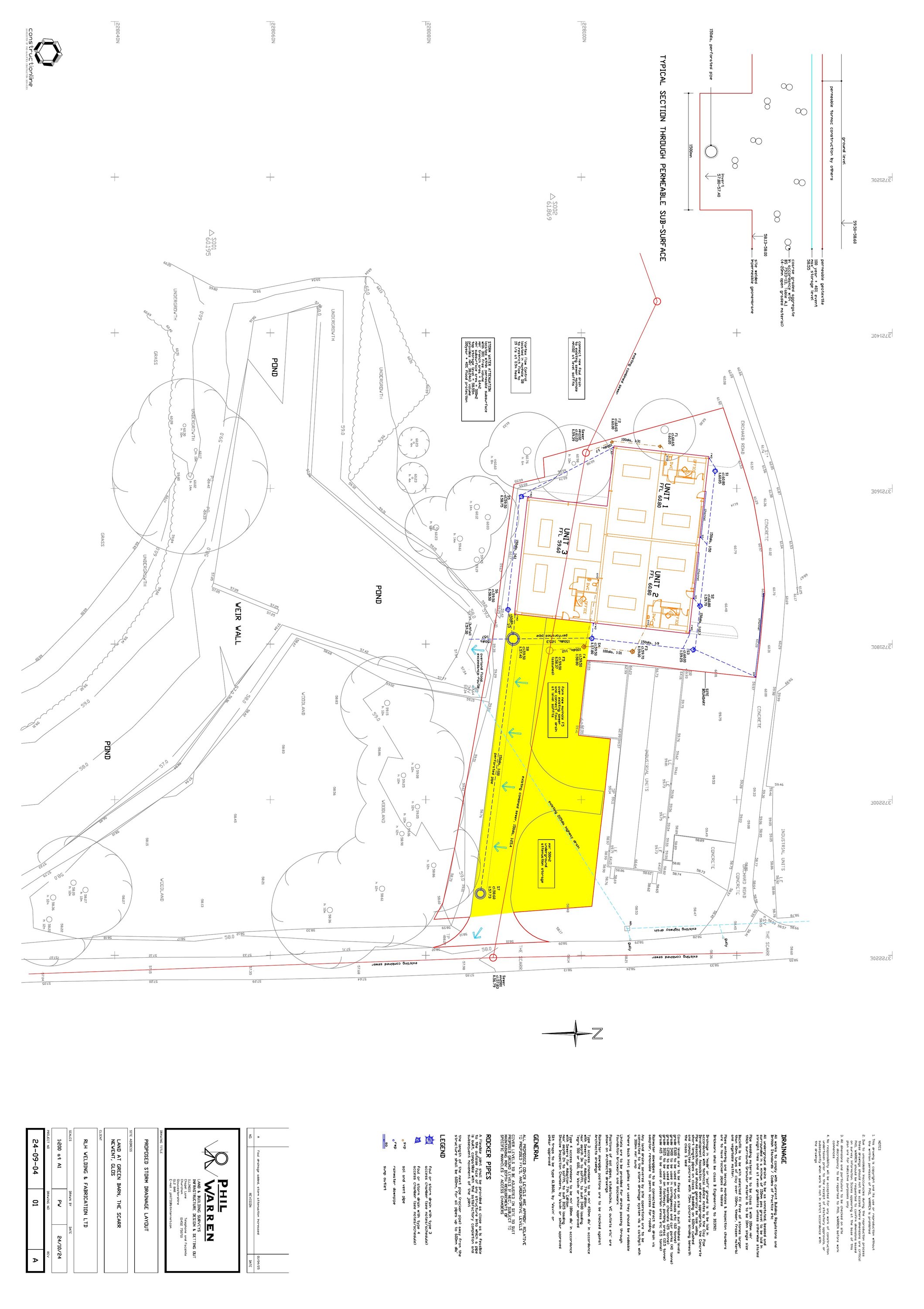
PROPOSED STORM DRAINAGE LAYOUT
Drawing
Public Comment
Public Comment
Public Comment
Public Comment
Public Comment
Public Comment
Public Comment
Public Comment
Public Comment
Public Comment
Public Comment
Public Comment
Public Comment
Public Comment
Public Comment
Public Comment
Public Comment
Public Comment
Public Comment
Public Comment
Public Comment
Public Comment
REVISED PRELIMINARY ECOLOGICAL APPRAISAL
Drawing
REVISED PROPOSAL PLAN RECEIVED 04.02.2025
Revised Plans
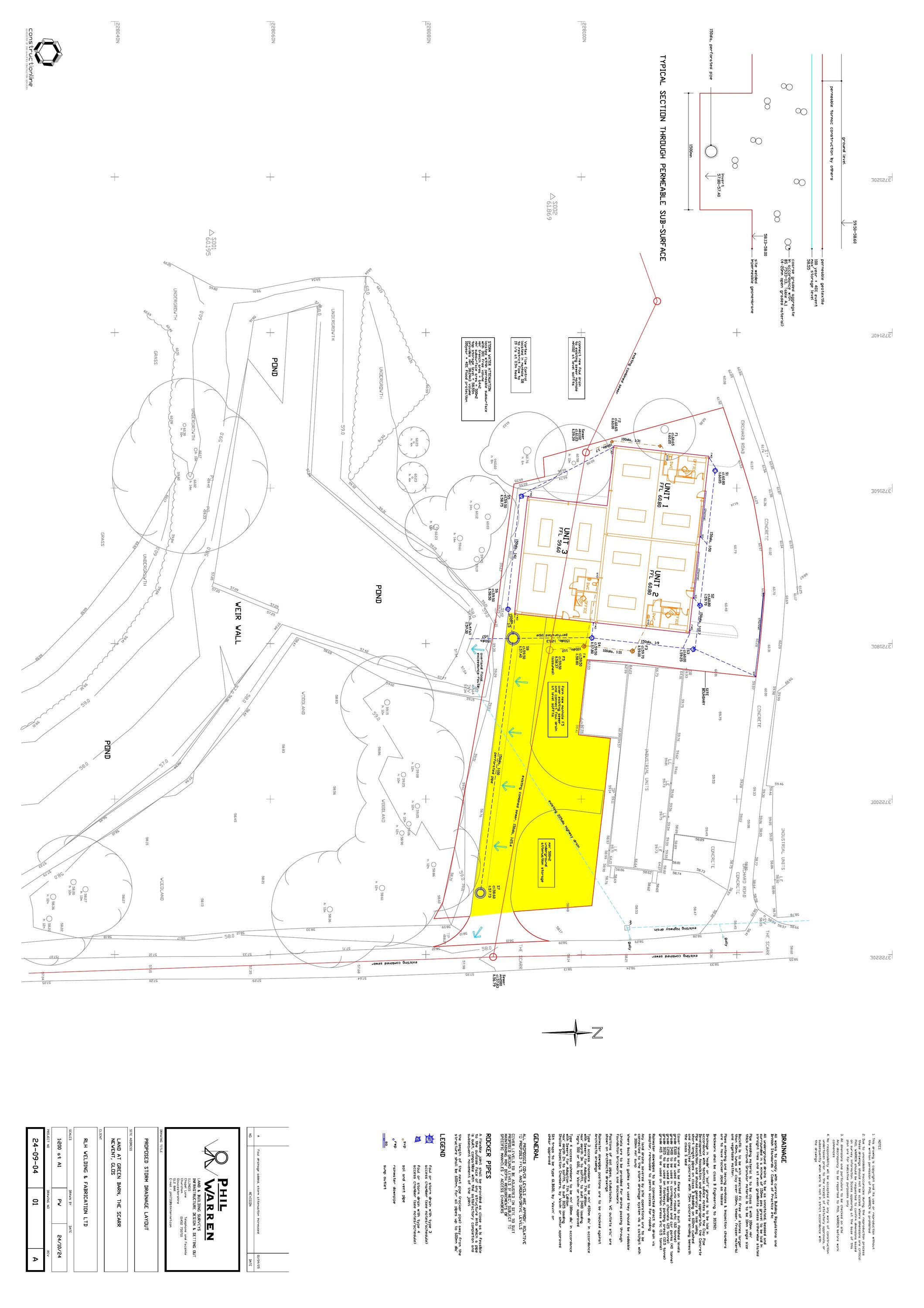
REVISED STORM WATER DRAINAGE LAYOUT DRAWING RECEIVED 08.04.2025
Additional information
SEVERN TRENT
Consultee Comment
SEVERN TRENT FULL AP STANDARD GUIDANCE V10 07 24
Consultee Comment
SUSTAINABILITY - TREES
Consultee Comment
VIEWS FROM NATURAL ENGLAND ? NO OBJECTIONS 04.07.2025
Consultee Comment
VIEWS FROM NATURAL ENGLAND ? NO OBJECTIONS 04.07.2025
Consultee Comment
VIEWS OF NATURESPACE (GREAT CRESTED NEWTS)
Consultee Comment