← Forest of Dean District Council
P0037/25/FUL
Forest of Dean District Council
Status
Consent
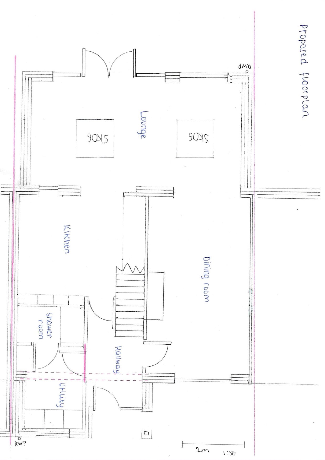
House extension
Received
13 Jan 2025
New homes
0
Full proposal
Erection of single-storey front and rear extension.
Documents
Have your say
Your comment matters. Councils must consider every representation that raises material planning considerations.