← Forest of Dean District Council

Status

Consent House extension
Received
21 Jan 2025
New homes
0

Full proposal

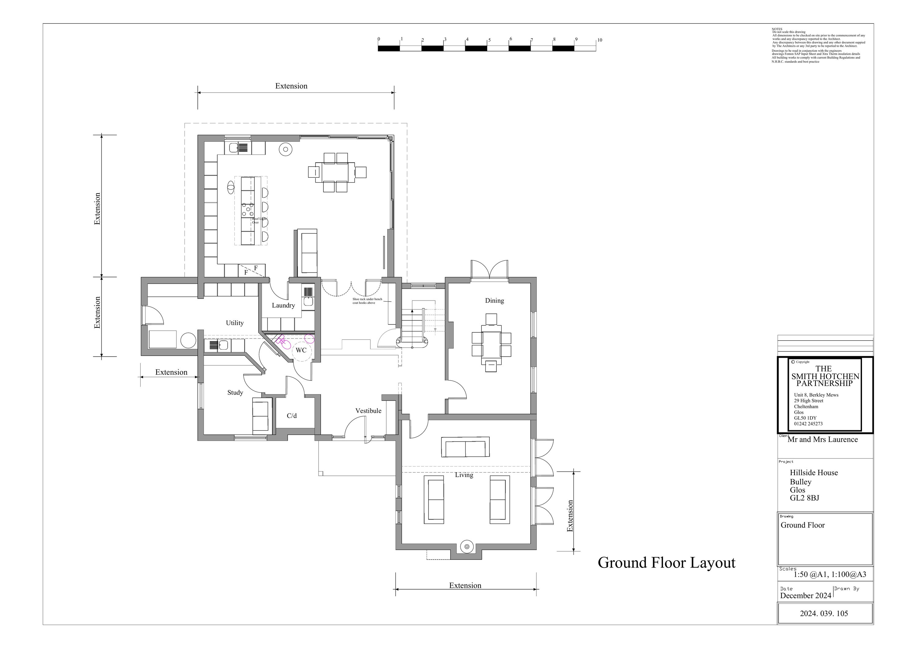
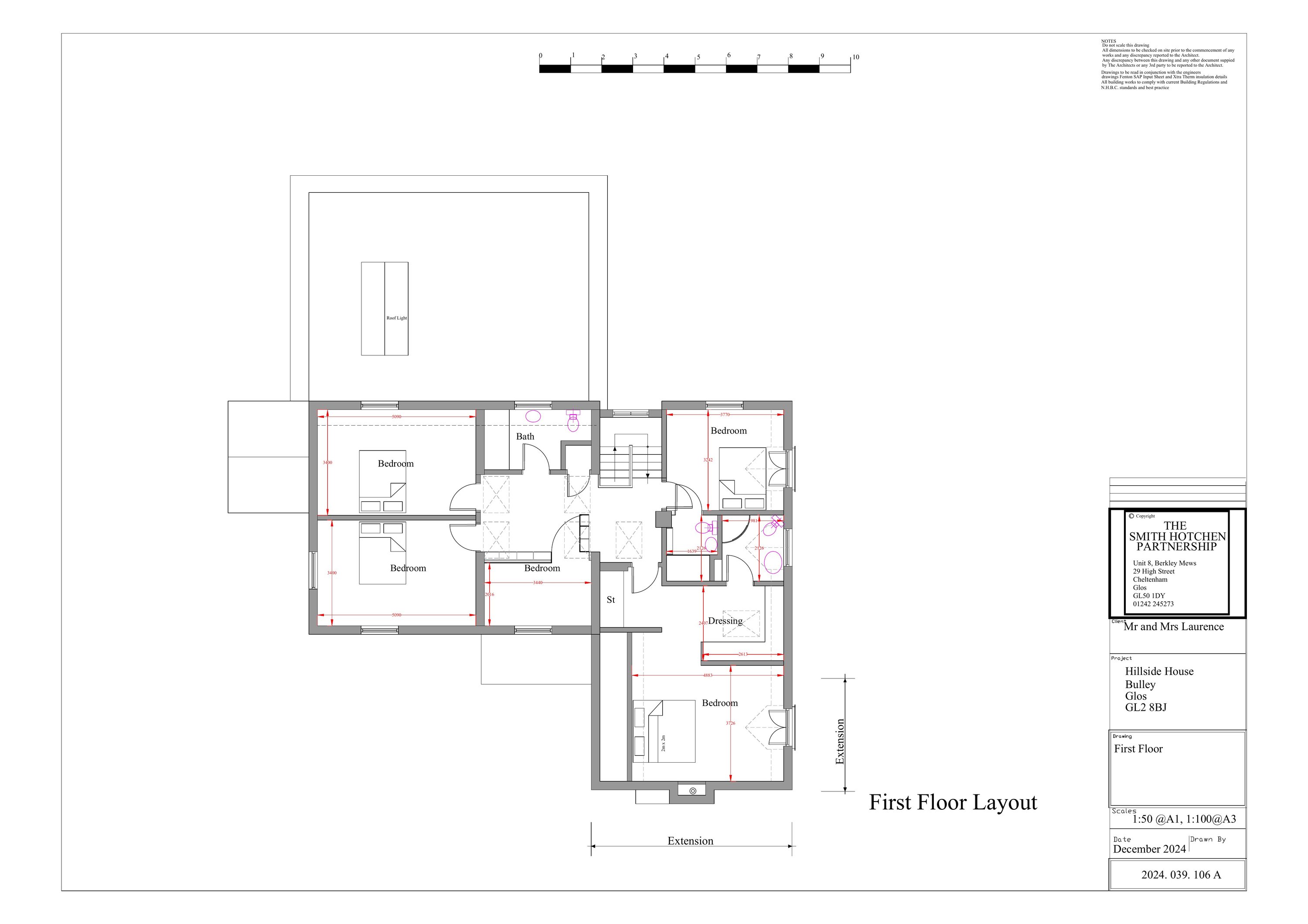
Erection of two storey front, single story side and rear extension with associated works.

Documents

Application Form
Archived · Original link
Decision
Archived · Original link
Drawing
Archived · Original link
Drawing
Archived · Original link
Drawing
Archived · Original link
Drawing
Archived · Original link
Officer report
Archived · Original link
Consultee Comment
Archived · Original link
Consultee Comment
Archived · Original link
Consultee Comment
Archived · Original link
Site Notice
Archived · Original link

Have your say

Your comment matters. Councils must consider every representation that raises material planning considerations.

Write a comment