← Forest of Dean District Council

Status

Consent House extension
Received
22 Jan 2025
New homes
0

Full proposal

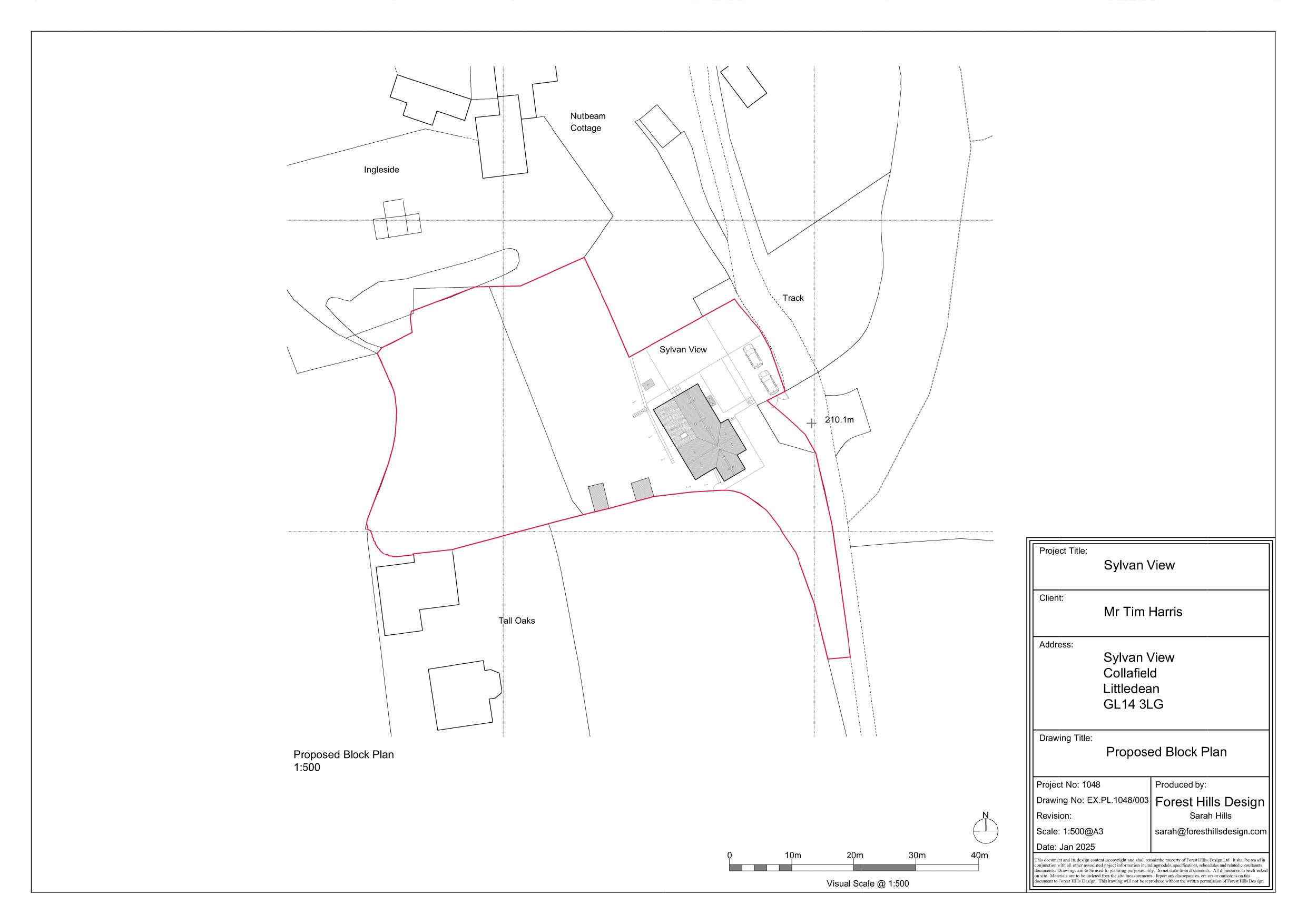
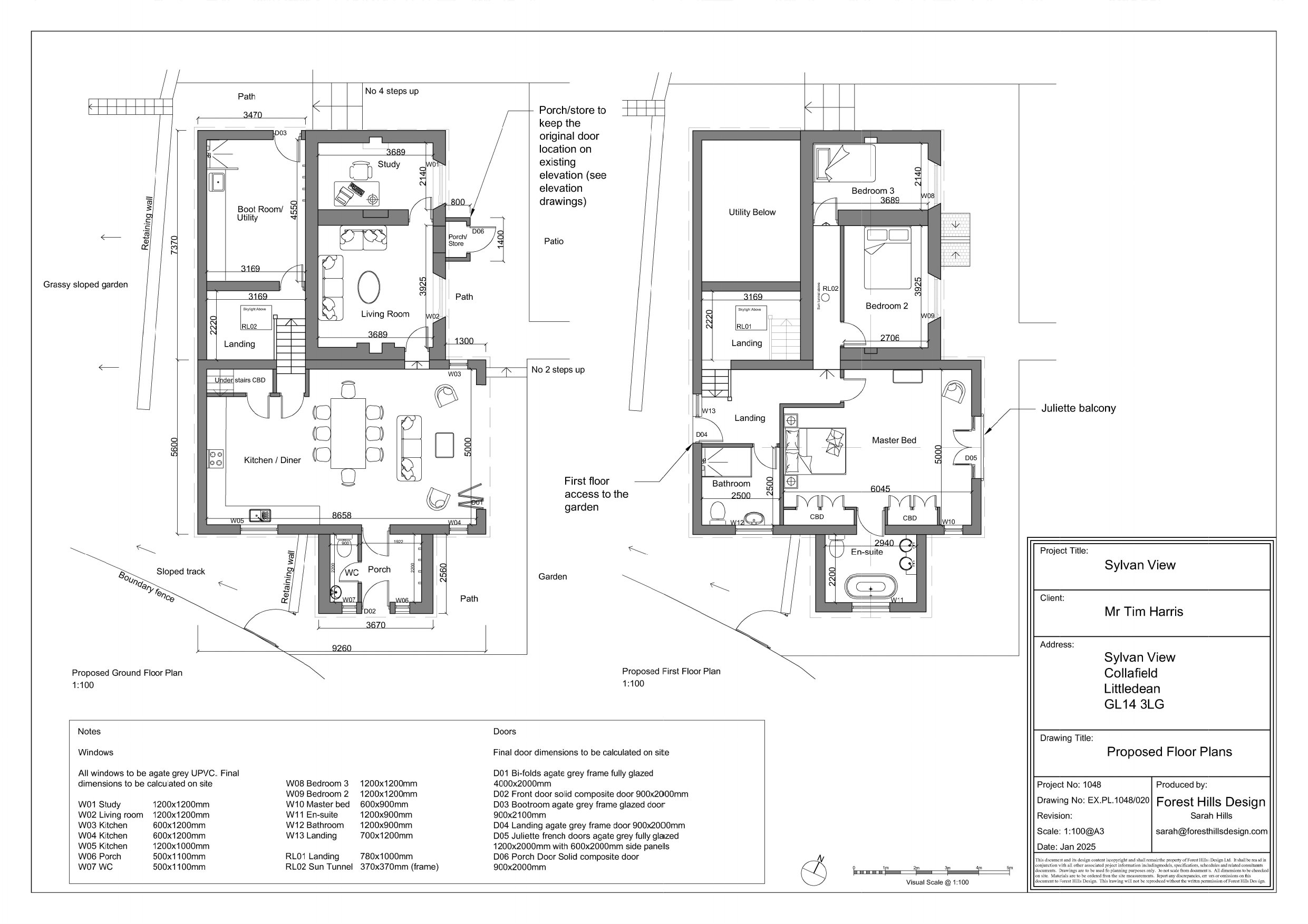
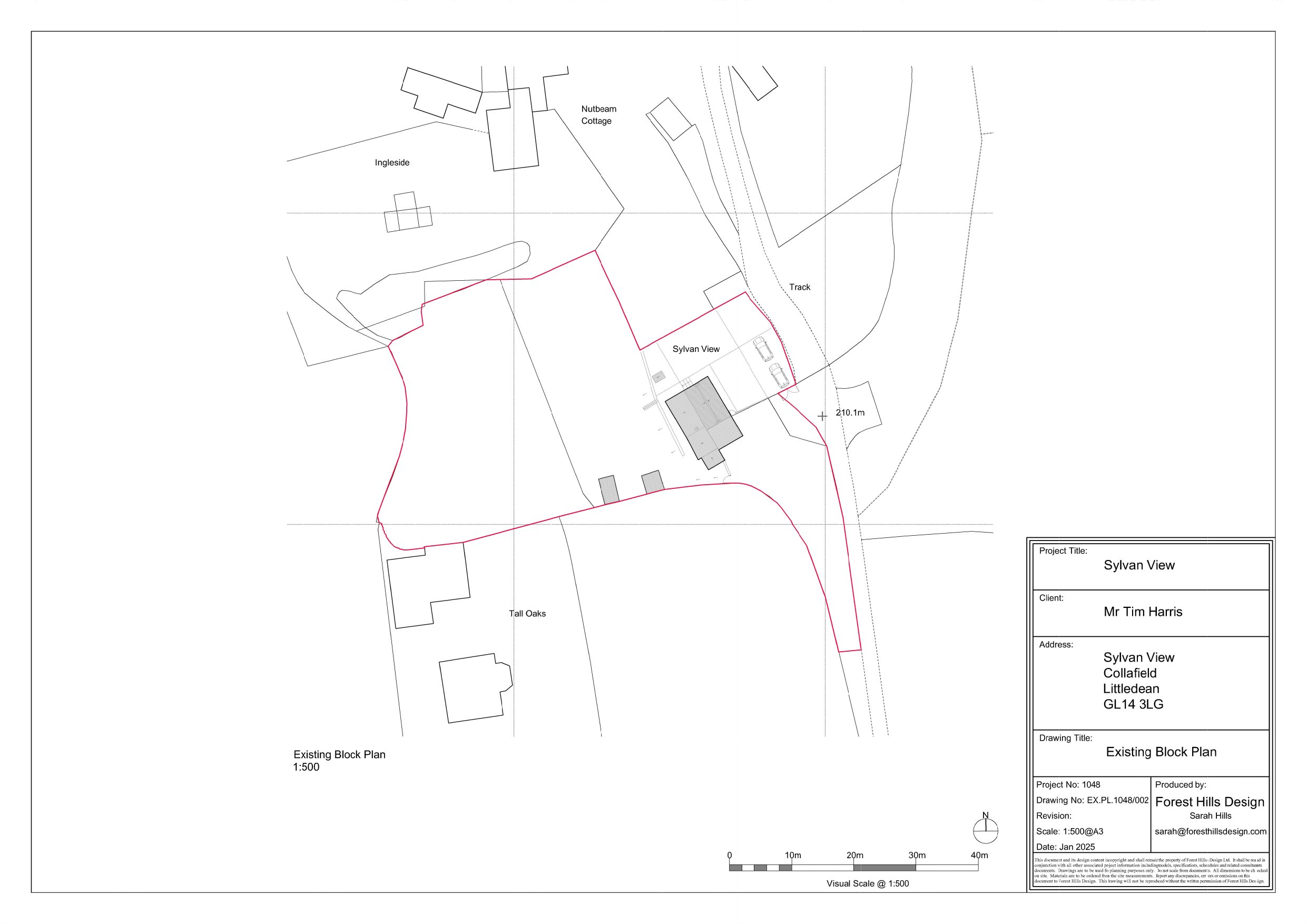
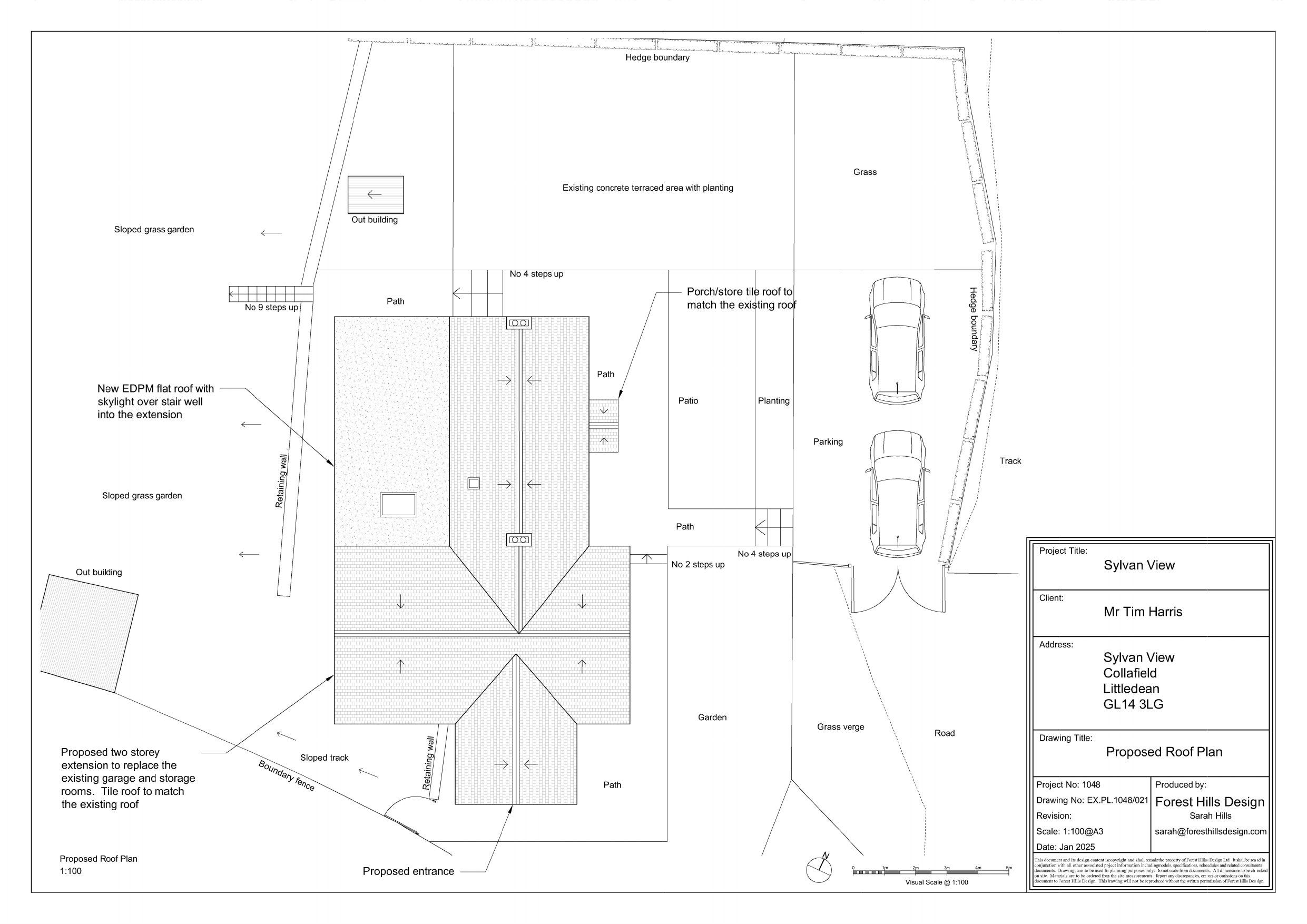
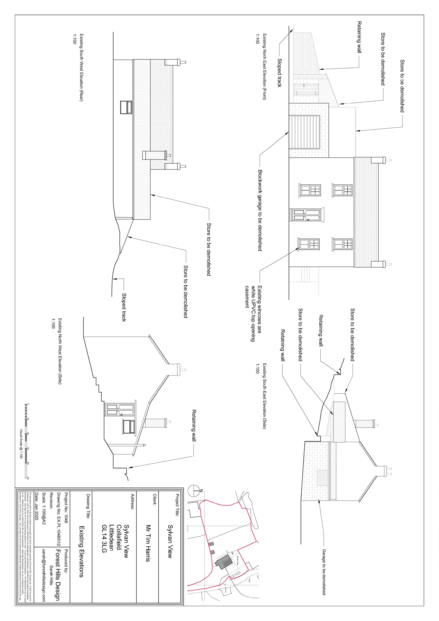
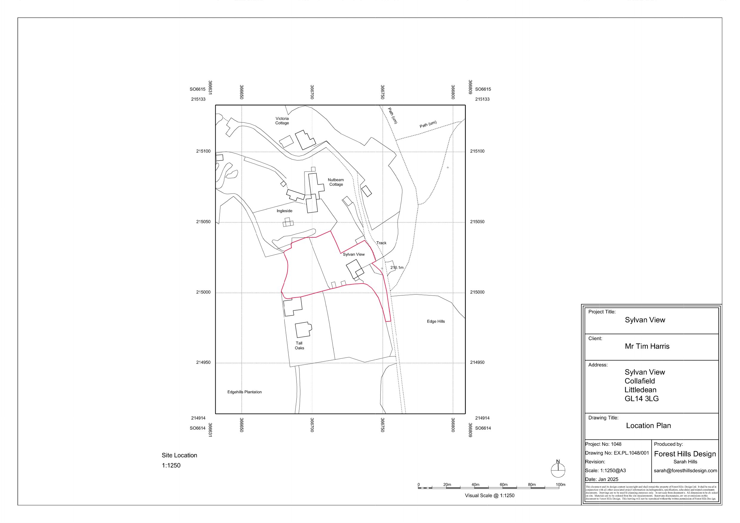
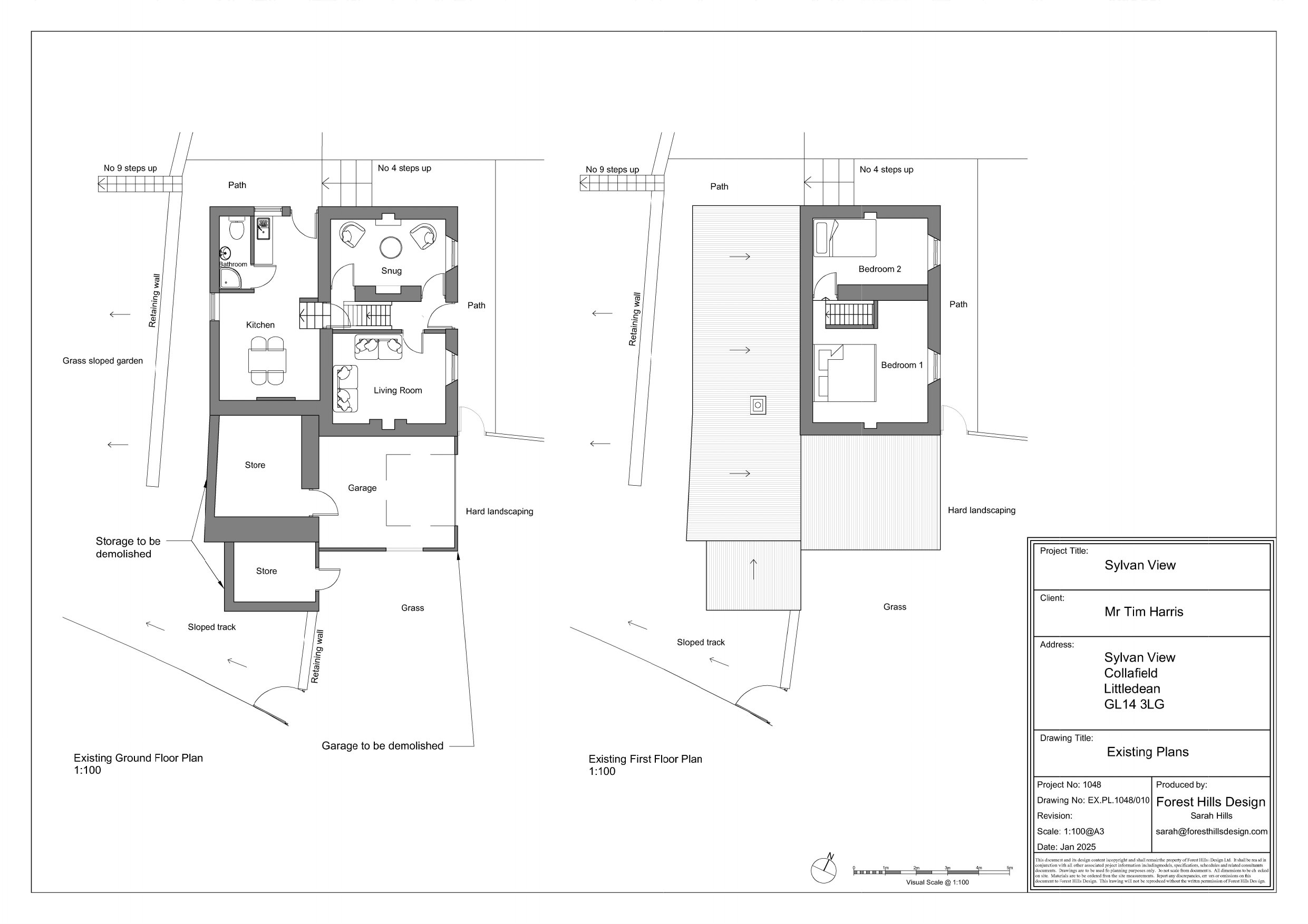
Erection of two-storey side extension, flat roof to replace existing single pitched roof at rear of property and associated works. Demolition of existing garage and storerooms.

Documents

Application Form
Archived · Original link
BIODIVERSITY SELF ASSESSMENT FORM
Report
Not yet archived · Original link
DC8
DC8
Archived · Original link
Decision
Archived · Original link
ECOLOGY
Consultee Comment
Not yet archived · Original link
ECOLOGY - APPROPRIATE ASSESSMENT
Consultee Comment
Not yet archived · Original link
Drawing
Archived · Original link
Drawing
Archived · Original link
Drawing
Archived · Original link
Drawing
Archived · Original link
Correspondence
Archived · Original link
Consultee Comment
Archived · Original link
Drawing
Archived · Original link
Consultee Comment
Archived · Original link
Officer report
Archived · Original link
Drawing
Archived · Original link
Drawing
Archived · Original link
Drawing
Archived · Original link
Drawing
Archived · Original link
Drawing
Archived · Original link
Site Notice
Archived · Original link
Site Notice
Archived · Original link

Have your say

Your comment matters. Councils must consider every representation that raises material planning considerations.

Write a comment