← Forest of Dean District Council
P0095/26/FUL
Forest of Dean District Council
Status
Pending Consideration
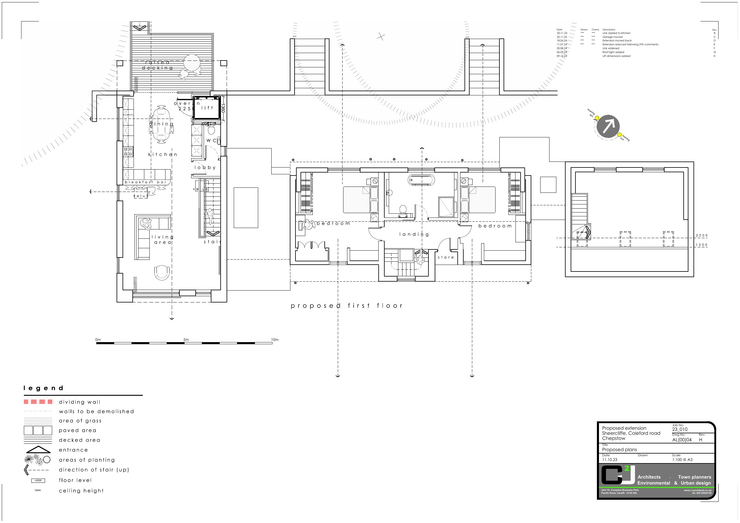
House extension
Received
26 Jan 2026
New homes
0
Full proposal
Erection of a two-storey extension and double garage
Documents
Have your say
Your comment matters. Councils must consider every representation that raises material planning considerations.