← Forest of Dean District Council
P0272/26/FUL
Forest of Dean District Council
Status
Pending Consideration
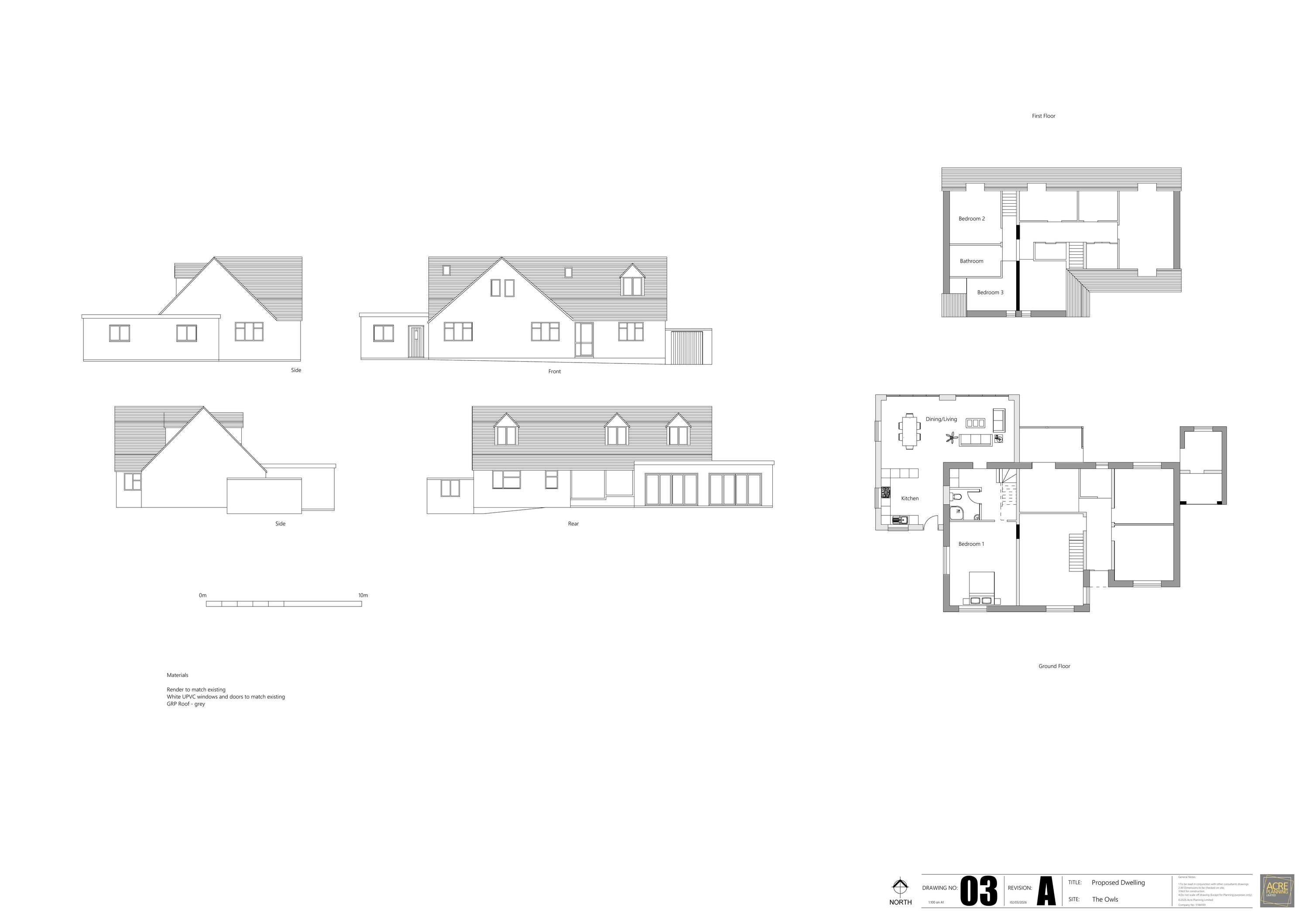
House extension
Received
Last month
New homes
0
Full proposal
Erection of a single-storey side and rear extension. Formation of new vehicular access.
Documents
Have your say
Your comment matters. Councils must consider every representation that raises material planning considerations.