← Forest of Dean District Council

Status

Consent House extension
Received
10 Apr 2025
New homes
0

Summary

Two-storey extension, ground-floor layout alterations and partial demolition of existing dwelling.

Full proposal

Erection of a two storey extension and alteration to Ground floor layout with associated works. Demolition of existing part of dwelling.

Documents

ADDITIONAL INFORMATION
Correspondence
Not yet archived · Original link
AGENT/OFFICER EMAIL - ADDITIONAL ECOLOGICAL INFORMATION
Correspondence
Not yet archived · Original link
AGREEMENT TO EXTENSION OF TIME
Correspondence
Not yet archived · Original link
AGREEMENT TO EXTENSION OF TIME
Correspondence
Not yet archived · Original link
Application Form
Application Form
Not yet archived · Original link
BAT SURVEY - ADDITIONAL ECOLOGICAL INFORMATION
Report
Not yet archived · Original link
BAT SURVEYS & ECOLOGY ASSESSMENT
Report
Not yet archived · Original link
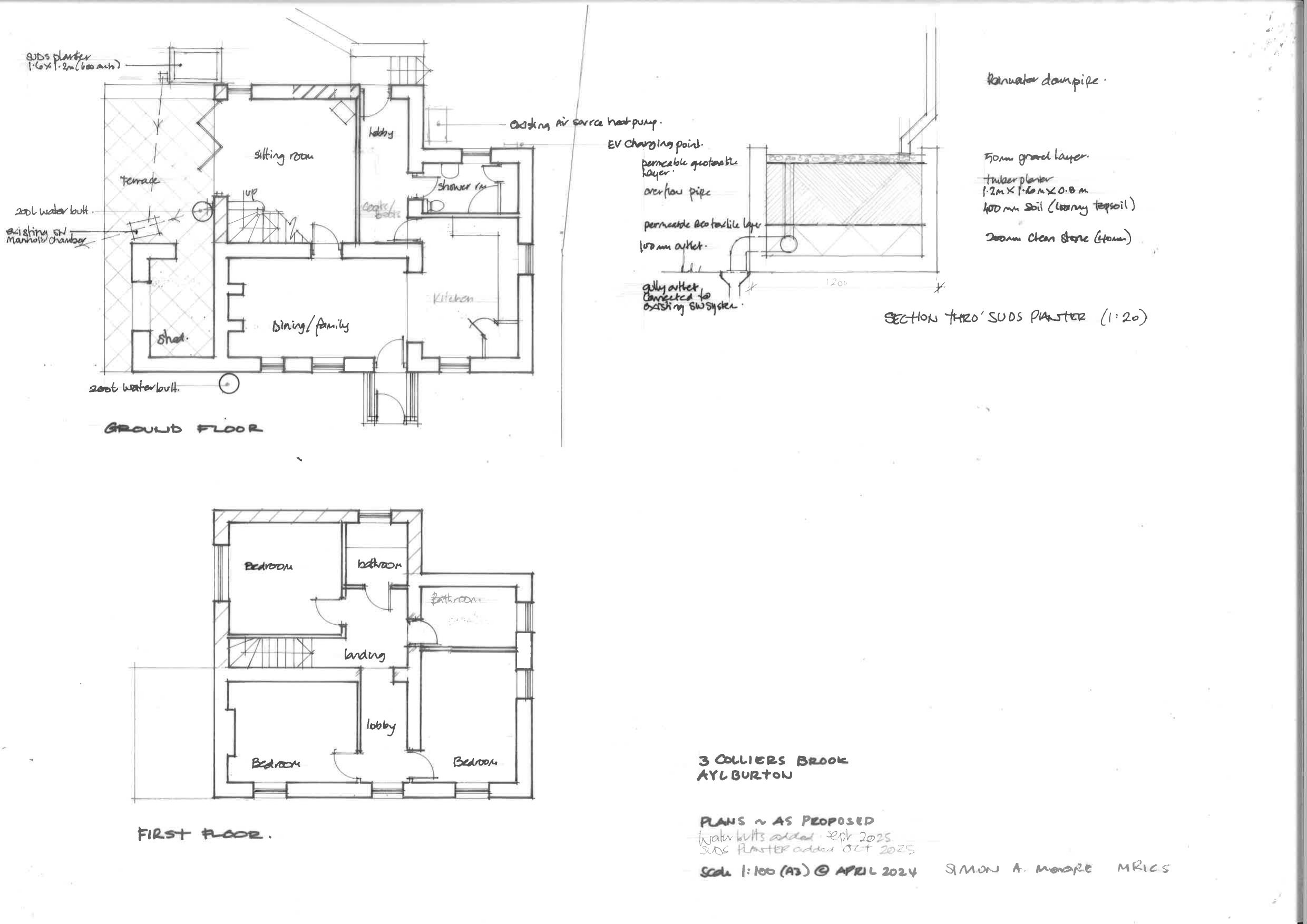
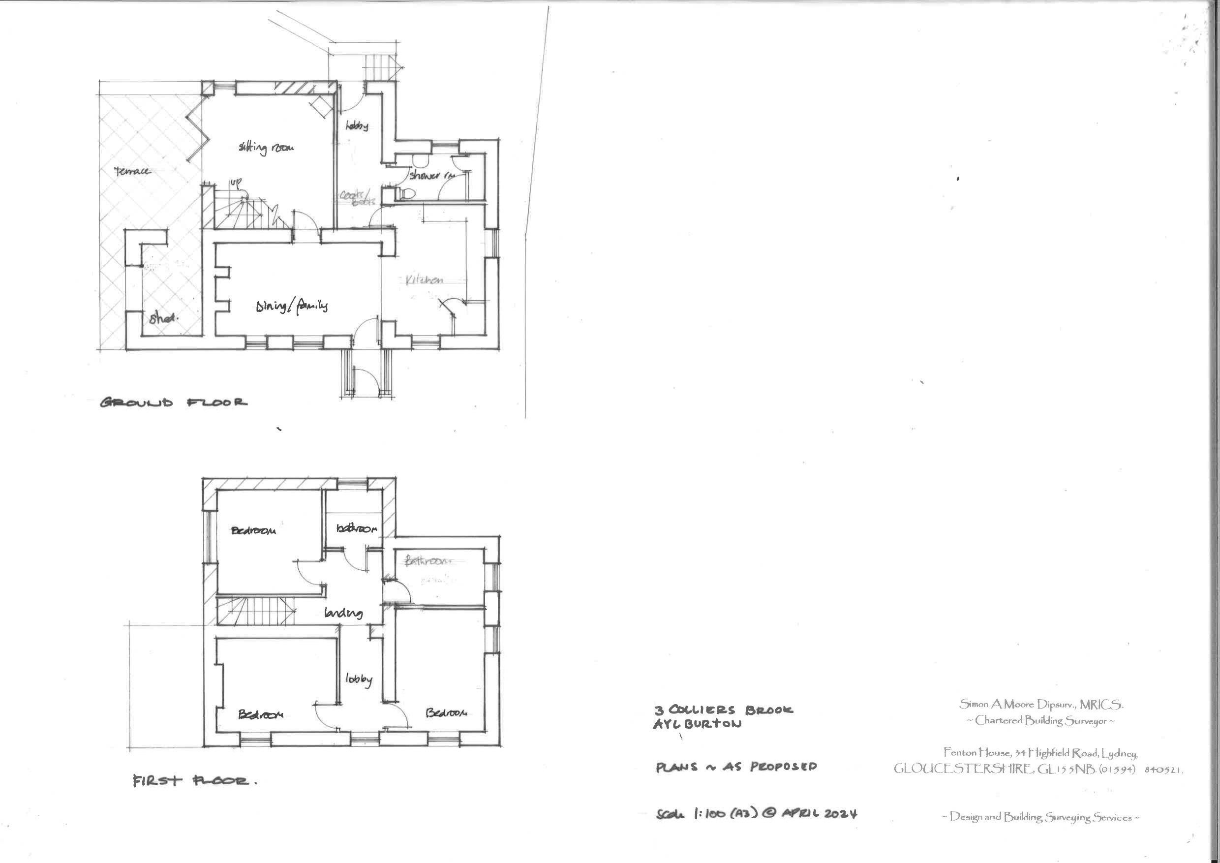
BLOCK PLAN OF THE SITE
Drawing
Not yet archived · Original link
DC8
DC8
Not yet archived · Original link
Decision
Decision
Not yet archived · Original link
DECISION EMAIL
Correspondence
Not yet archived · Original link
DESIGN AND ACCESS STATEMENT
Report
Not yet archived · Original link
ECOLOGY
Consultee Comment
Not yet archived · Original link
ECOLOGY
Consultee Comment
Not yet archived · Original link
ECOLOGY - APPROPRIATE ASSESSMENT
Consultee Comment
Not yet archived · Original link
ECOLOGY - LSE
Consultee Comment
Not yet archived · Original link
EXISTING ELEVATIONS
Drawing
Not yet archived · Original link
EXISTING PLANS
Drawing
Not yet archived · Original link
Drawing
Archived · Original link
EXTENSION OF TIME AGREEMENT
Correspondence
Not yet archived · Original link
FLOOD RISK MANAGEMENT COMMENTS
Consultee Comment
Not yet archived · Original link
FLOOD RISK MANAGEMENT OFFICER
Consultee Comment
Not yet archived · Original link
FURTHER COMMENT FROM FLOOD RISK MANAGEMENT OFFICER
Consultee Comment
Not yet archived · Original link
FURTHER COMMENTS FROM FLOOD RISK MANAGEMENT OFFICER
Consultee Comment
Not yet archived · Original link
HOUSE PROPOSED ELEVATIONS - ADDITIONAL ECOLOGICAL INFORMATION
Drawing
Not yet archived · Original link
LAND DRAINAGE PLAN
Drawing
Not yet archived · Original link
LOCATION PLAN
Drawing
Not yet archived · Original link
NATURAL ENGLAND
Consultee Comment
Not yet archived · Original link
NATURAL ENGLAND ANNEX A
Consultee Comment
Not yet archived · Original link
Officer report
Officer report
Not yet archived · Original link
PARISH COUNCIL
Consultee Comment
Not yet archived · Original link
PROPOSED ELEVATIONS
Drawing
Not yet archived · Original link
Drawing
Archived · Original link
Site Notice
Site Notice
Not yet archived · Original link
Site Notice
Site Notice
Not yet archived · Original link
SUPPORTING INFORMATION
Correspondence
Not yet archived · Original link
WOOD SHED - ADDITIONAL ECOLOGICAL INFORMATION
E mail
Not yet archived · Original link

Have your say

Your comment matters. Councils must consider every representation that raises material planning considerations.

Write a comment