← Forest of Dean District Council

Status

Consent New housing
Received
08 Aug 2025
New homes
1

Full proposal

Erection of detached dwelling with associated landscaping and works. Demolition of 2 no. semi detached buildings.

Documents

Application Form
Application Form
Not yet archived · Original link
BAT EMERGENCE SURVEY REPORT
Report
Not yet archived · Original link
BIODIVERSITY SELF ASSESSMENT FORM
Report
Not yet archived · Original link
COLEFORD TOWN COUNCIL
Consultee Comment
Not yet archived · Original link
CONFIRMATION OF SELF BUILD
Correspondence
Not yet archived · Original link
DC8
DC8
Not yet archived · Original link
Decision
Decision
Not yet archived · Original link
DESIGN, ACCESS & PLANNING STATEMENT
Report
Not yet archived · Original link
ECOLOGY
Consultee Comment
Not yet archived · Original link
ECOLOGY
Consultee Comment
Not yet archived · Original link
ECOLOGY - HABITATS REGULATIONS ASSESSMENT
Consultee Comment
Not yet archived · Original link
EXISTING PLANS AND ELEVATIONS
Drawing
Not yet archived · Original link
IR CAMERA IMAGE
Additional information
Not yet archived · Original link
LOCATION & BLOCK PLAN
Drawing
Not yet archived · Original link
NATURAL ENGLAND
Consultee Comment
Not yet archived · Original link
Officer report
Officer report
Not yet archived · Original link
PRELIMINARY ECOLOGICAL APPRAISAL
Report
Not yet archived · Original link
RE: BAT SURVEY
Correspondence
Not yet archived · Original link
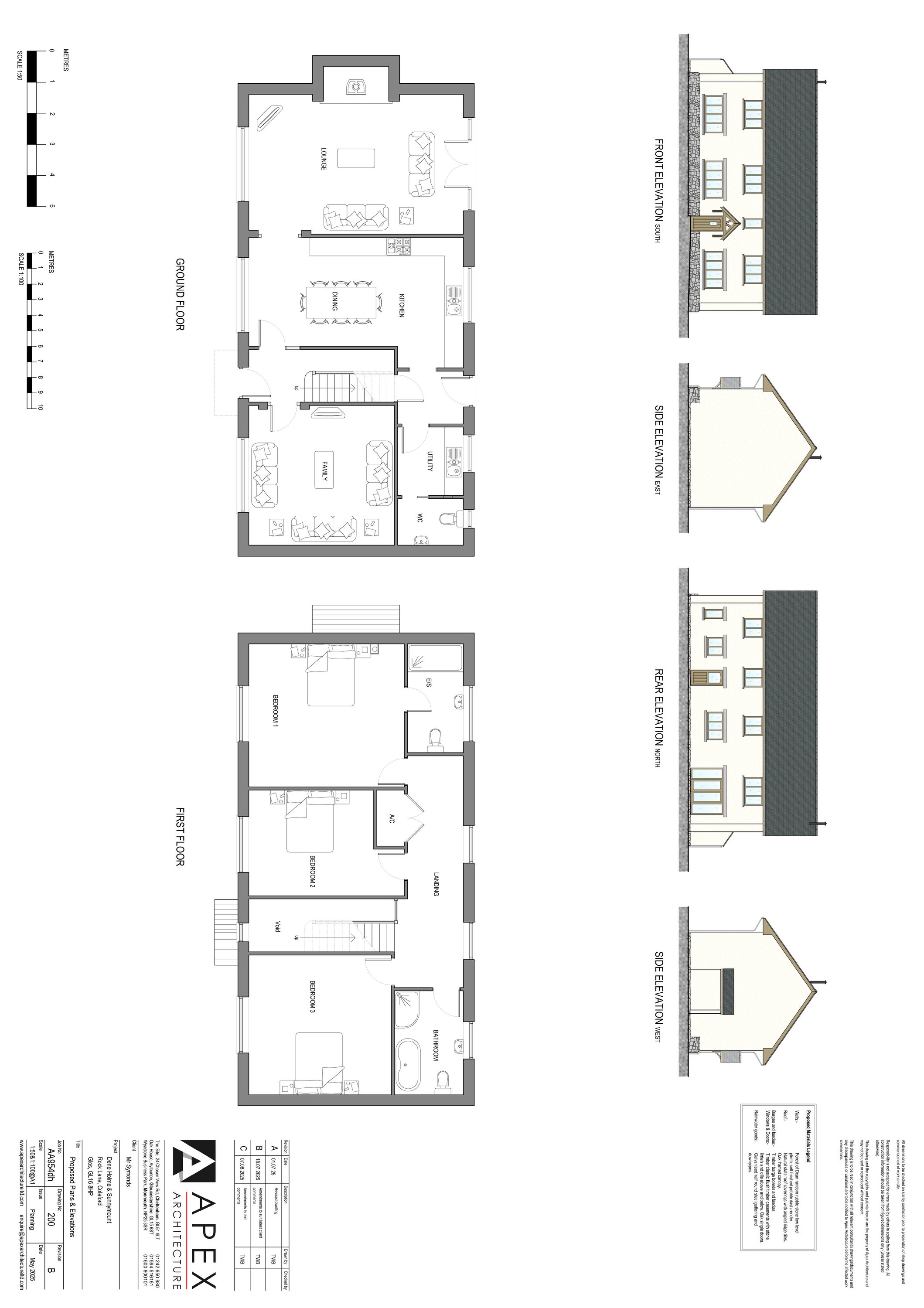
REVISED PROPOSED ELEVATIONS & FLOOR PLANS
Drawing
Not yet archived · Original link
Site Notice
Site Notice
Not yet archived · Original link
SUSTAINABILITY?S RESPONSE TO APPLICANT?S ECOLOGIST
Consultee Comment
Not yet archived · Original link

Have your say

Your comment matters. Councils must consider every representation that raises material planning considerations.

Write a comment