← Forest of Dean District Council
P1525/24/FUL
Forest of Dean District Council
Status
Consent
House extension
Received
18 Dec 2024
New homes
0
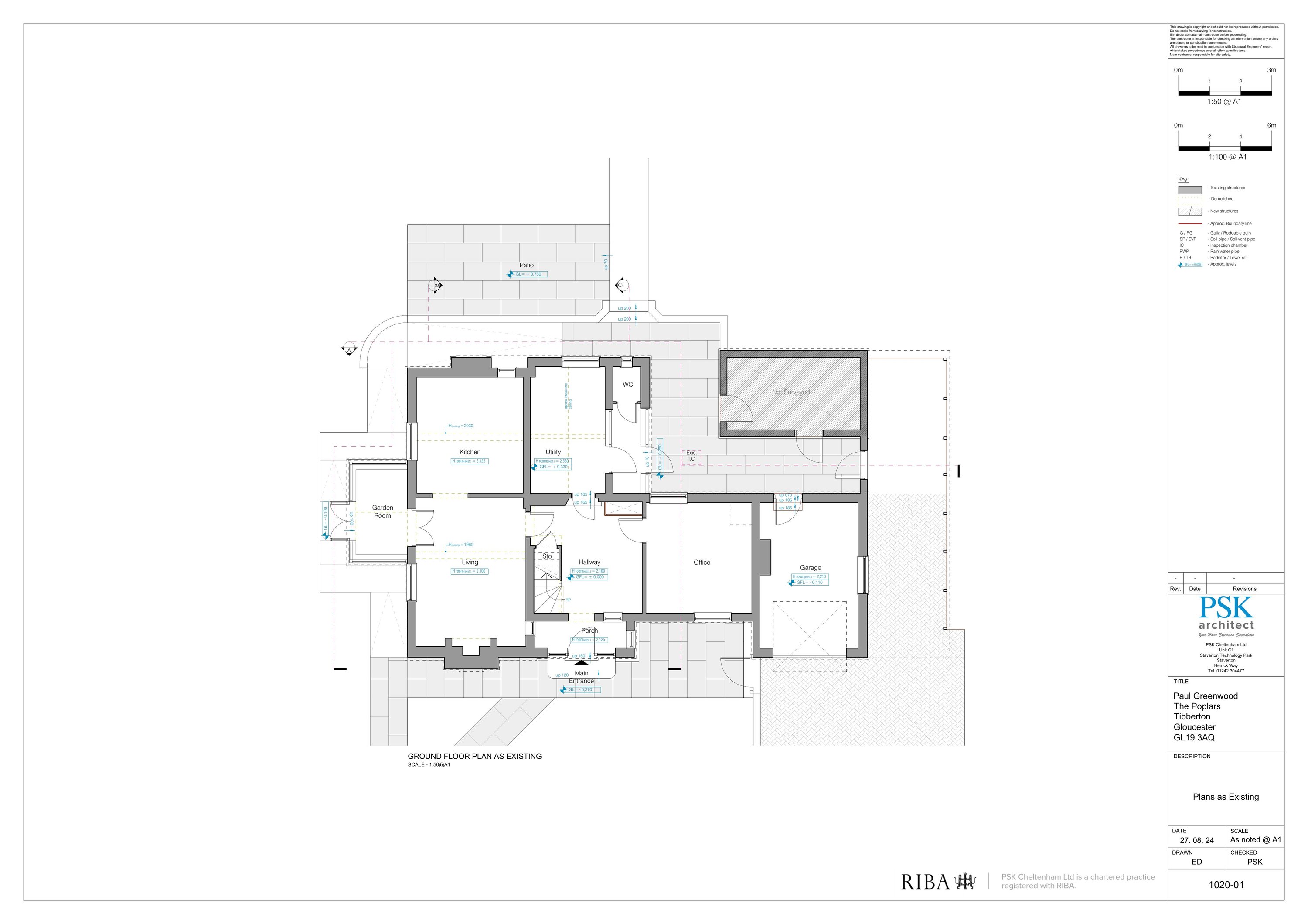
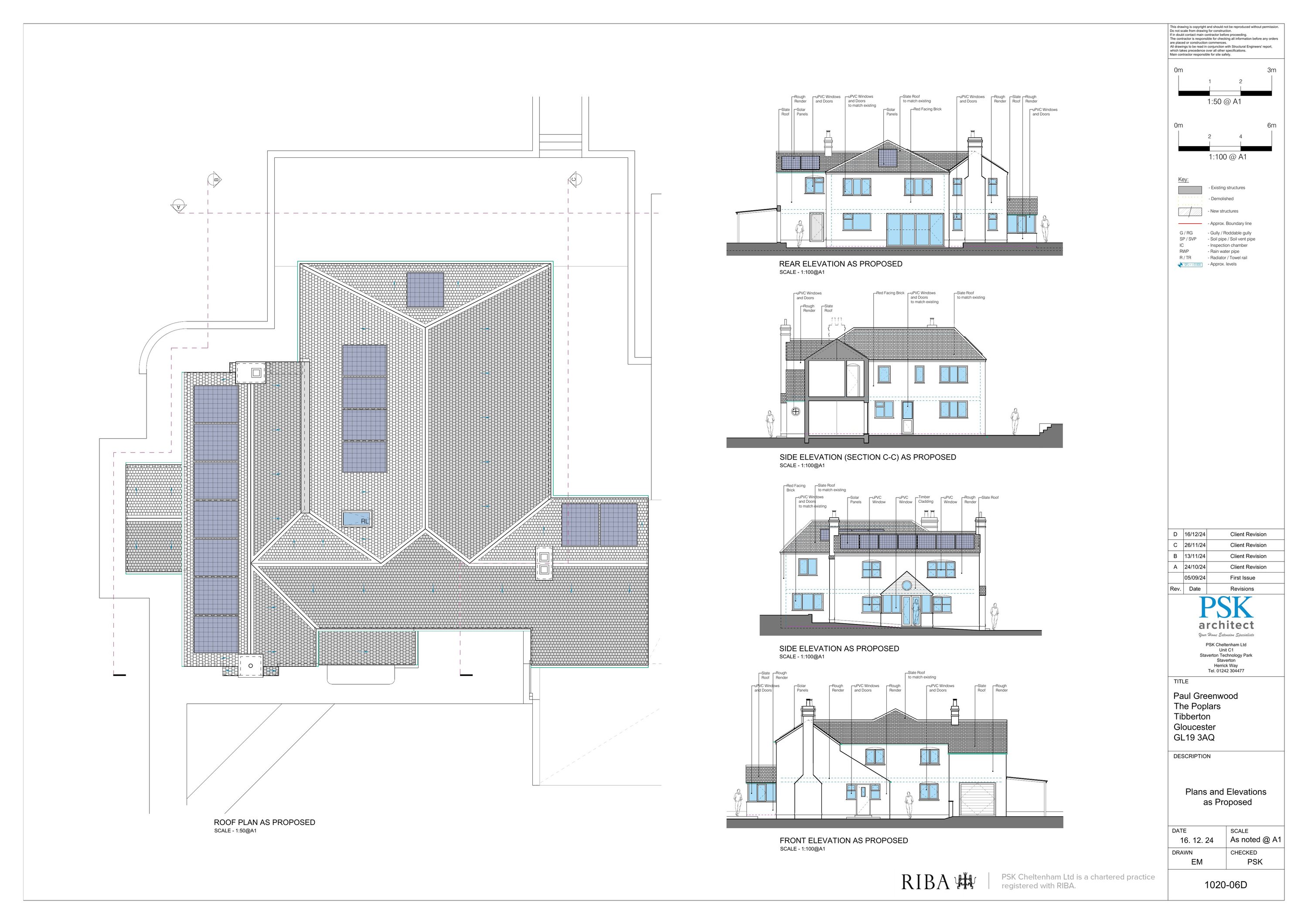
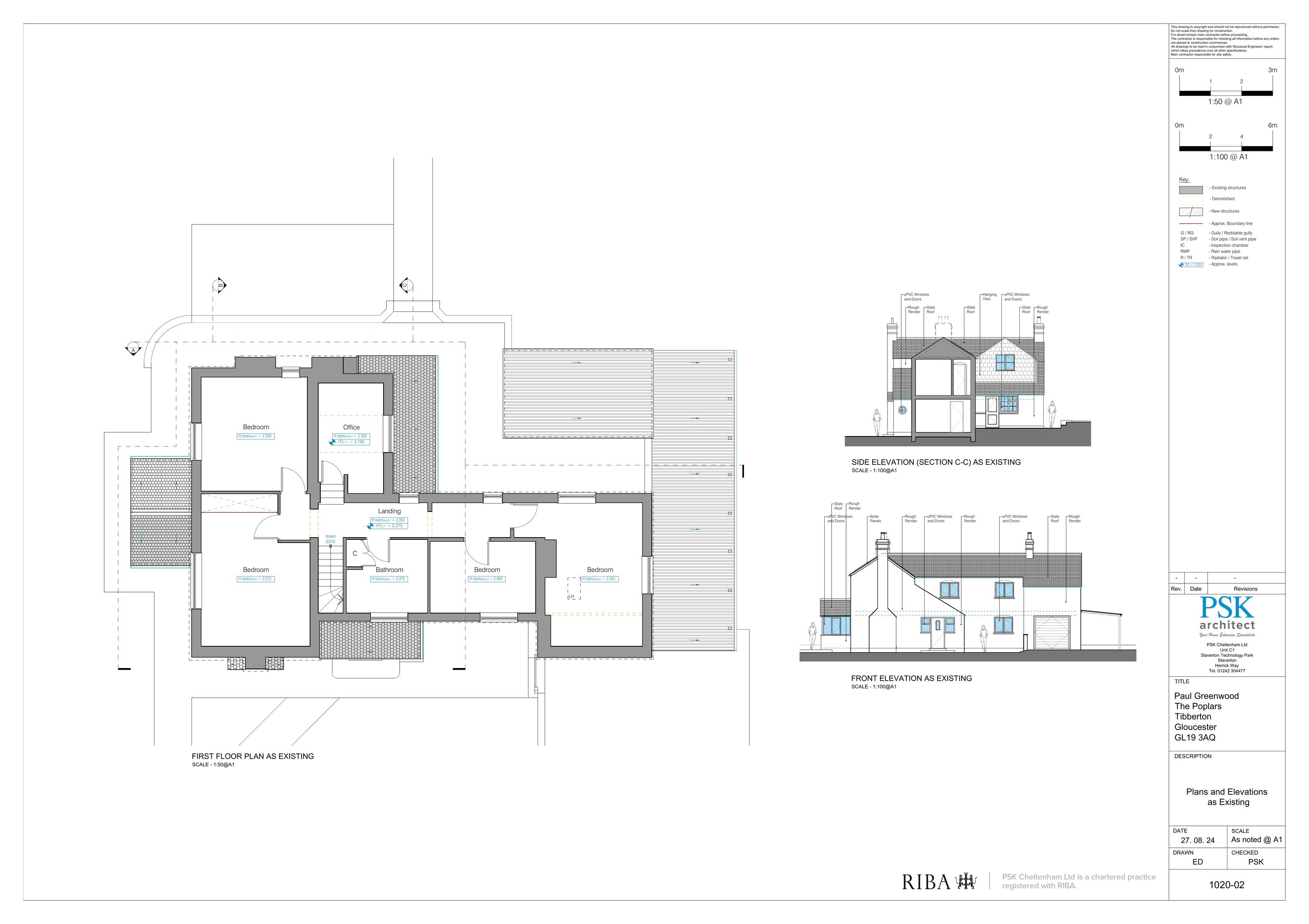
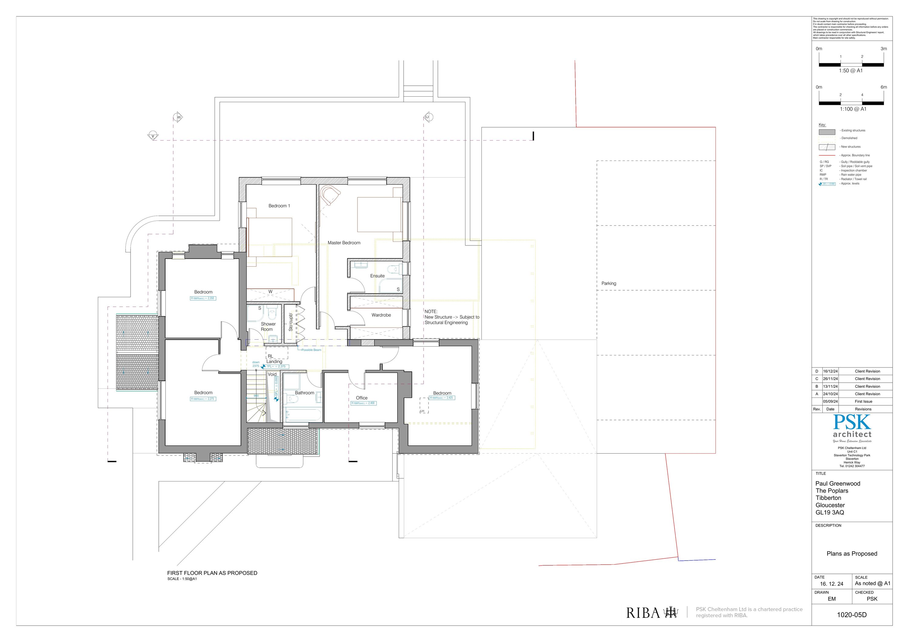
Full proposal
Erection of two-storey rear extension.
Documents
Have your say
Your comment matters. Councils must consider every representation that raises material planning considerations.