← Forest of Dean District Council

Status

Consent New housing
Received
18 Dec 2024
New homes
1

Full proposal

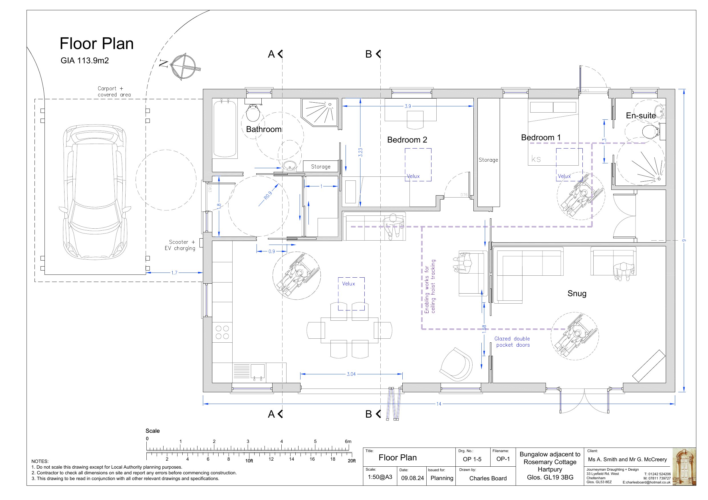
Erection of self-build bungalow.

Documents

Correspondence
Archived · Original link
Application Form
Archived · Original link
Committee Report
Archived · Original link
Consultee Comment
Archived · Original link
Agent letter
Archived · Original link
DC8
DC8
Archived · Original link
Decision
Archived · Original link
Consultee Comment
Archived · Original link
Consultee Comment
Archived · Original link
Report
Archived · Original link
Consultee Comment
Archived · Original link
Committee Report
Archived · Original link
Consultee Comment
Archived · Original link
Consultee Comment
Archived · Original link
Consultee Comment
Archived · Original link
Consultee Comment
Archived · Original link
Consultee Comment
Archived · Original link
Consultee Comment
Archived · Original link
Drawing
Archived · Original link
Drawing
Archived · Original link
Drawing
Archived · Original link
Drawing
Archived · Original link
Drawing
Archived · Original link
Drawing
Archived · Original link
Consultee Comment
Archived · Original link
Site Notice
Archived · Original link
Site Notice
Archived · Original link
Site Notice
Archived · Original link
Site Notice
Archived · Original link
Consultee Comment
Archived · Original link
Consultee Comment
Archived · Original link
Drawing
Archived · Original link
Report
Archived · Original link

Have your say

Your comment matters. Councils must consider every representation that raises material planning considerations.

Write a comment