← Forest of Dean District Council
P1575/25/FUL
Forest of Dean District Council
Status
Pending Consideration
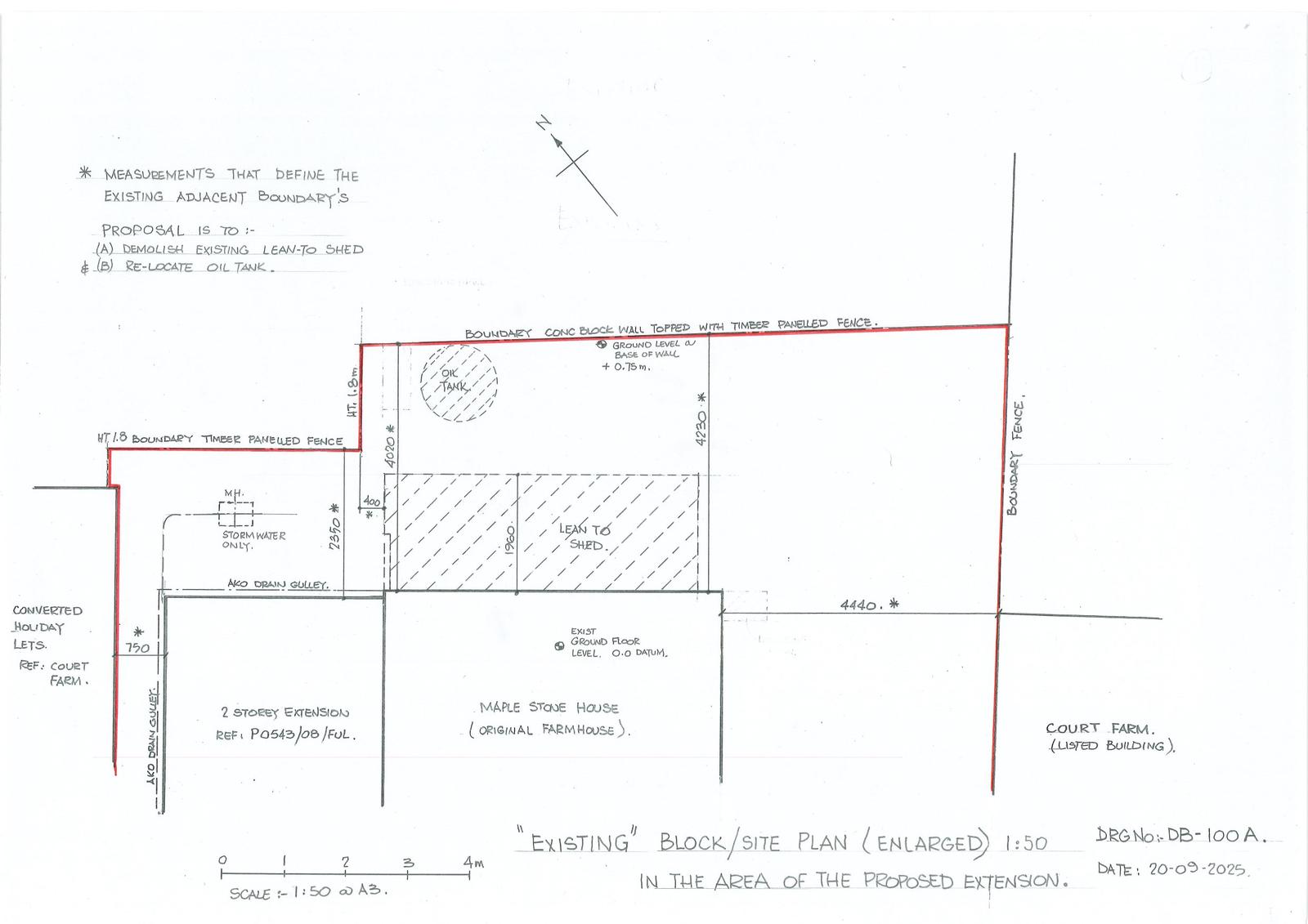
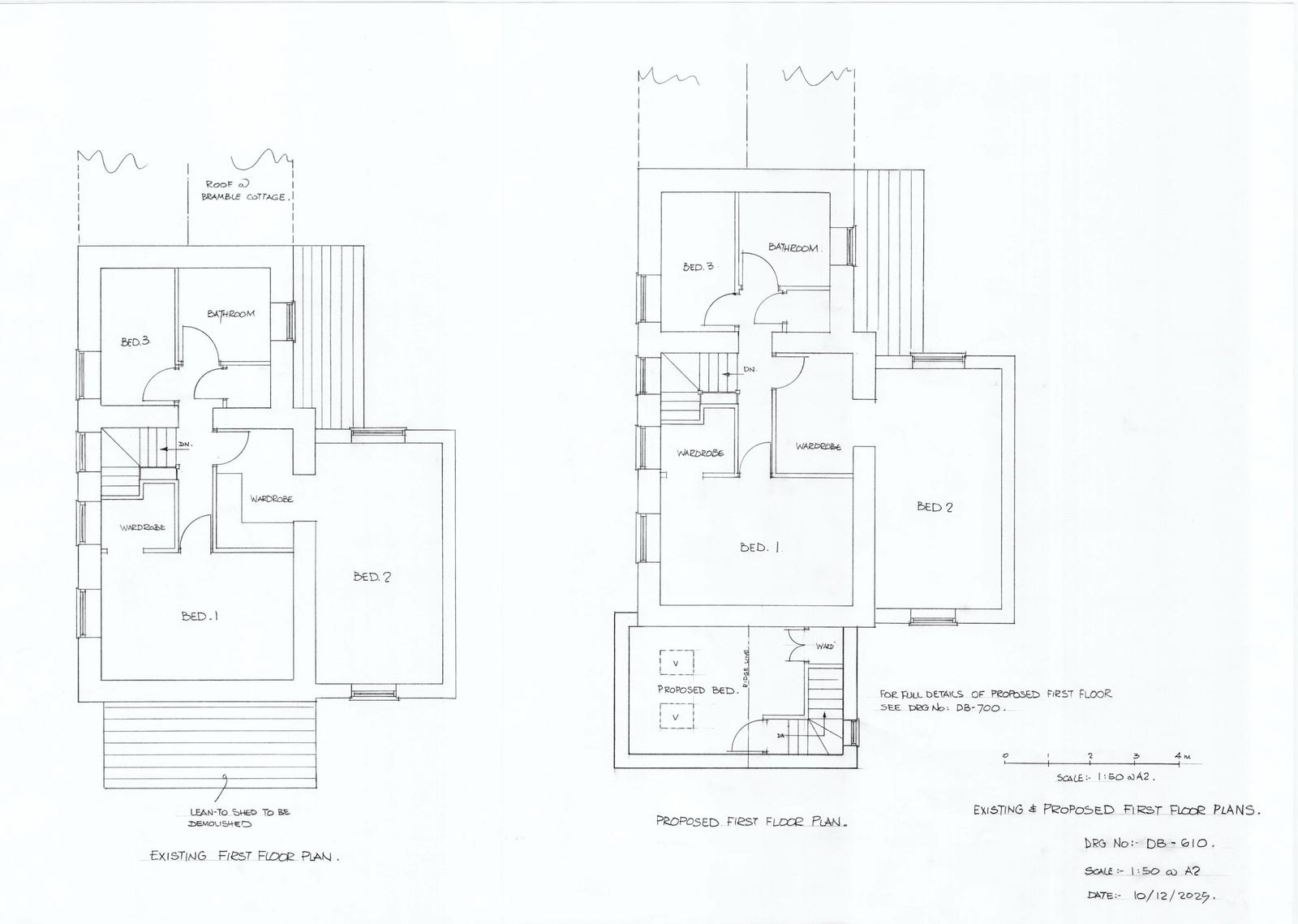
House extension
Received
23 Dec 2025
New homes
0
Full proposal
Erection of a two storey extension with associated works.
Documents
Have your say
Your comment matters. Councils must consider every representation that raises material planning considerations.